クレイシア新宿ノース

クレイシア新宿ノース
築7年以内還元率UP

▶ 契約金のお得さ圧倒的。比べてみれば、REIT FIND

  • ペット可

契約金 初期費用【特別価格】
竣 工 2020年3月
最寄駅 大久保駅徒歩5分
総戸数 40戸

住 所 東京都新宿区北新宿1-30-6
概 要 地上4階 RC造
▶ REIT FIND特典でお得にご契約くださいませ。
1.都内最安値での契約を、即時に提示致します。
2.初期費用のお見積りを、即時に案内致します。
3.内覧・リモート内覧を、即時に提案致します。


■物件名フリガナ
クレイシアシンジュクノース
CRASIA SHINJUKU NORTH

■近隣周辺施設情報
オリンピック北新宿店まで約270m
まいばすけっと北新宿税務署通り店まで約530m
ローソン北新宿一丁目店まで約270m
ローソンストア100北新宿店まで約300m
セブンイレブン北新宿1丁目大久保通り店まで約320m
スギ薬局北新宿3丁目店まで約290m
ココカラファイン大久保駅前店まで約690m
ゲオ北新宿店まで約280m
キッチンオリジン大久保店まで約350m
横尾クリーニング店まで約150m
柏木どんぐり公園まで約520m
CHO東京山手メディカルセンターまで約740m

今月申し込みの方限定キャンペーン

キャンペーン中です。
1.都内最安値での契約は、是非お任せください。
2.初期費用のお見積りは、是非お任せください。
3.内覧・リモート内覧は、是非お任せください。
※諸条件・詳細等は是非お問合せ下さいませ。

空室一覧
チェックした物件はまとめてお問い合わせ、検討中リストに追加できます。

現在公開中の部屋情報がありません。
最新の情報はこちらからお問い合わせください。

物件概要

  • LINE
物件名 クレイシア新宿ノース
所在地 東京都新宿区北新宿1-30-6
最寄駅 JR中央・総武線大久保駅」徒歩5分
JR山手線新大久保駅」徒歩11分
都営大江戸線東中野駅」徒歩15分
東京メトロ丸ノ内線中野坂上駅」徒歩18分
JR山手線新宿駅」徒歩25分
物件特徴 デザイナーズ、分譲賃貸、ペット可
構造規模 地上4階 RC造
総戸数 40戸 築年月 2020年3月
賃料 - 管理費 -
間取り - 専有面積 -
問合番号 1284

■駐車場   ―
■バイク置場 有/月額5,500円
■駐輪場   有/無料
―――――――
■設 計   ―
■施 工   日広建設株式会社
■管理形式  巡回管理
―――――――
■保 険   借家人賠償付き火災保険要加入
■ペット   各部屋毎に異なる
■楽 器   各部屋毎に異なる
■鍵交換代  各部屋毎に異なる
■保証会社  利用必須(※大手法人契約の場合、例外あり)
■保証会社  初回保証委託料/月額賃料等の20%~100%
■保証会社  年間継続料/0.8万円~1.0万円 or
■保証会社  月額保証料賃料等の1%~2%
―――――――
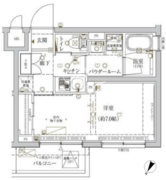
■間取り
□1K~2LDK(25.36㎡~50.73㎡)

■① 駐車場・バイク置場・駐輪場の詳細は、是非お問合せ下さい。
■② 内覧のご希望時は、物件現地待ち合わせ対応をしております。
■③ 物件写真の量と質、情報更新鮮度に特化して運営しています。

建物設備

建物詳細を見る
  • エレベーター
  • オートロック
  • 宅配ボックス
  • TVドアホン
  • 駐車場
  • バイク置き場
  • 敷地内ゴミ置き場
  • 24時間管理
  • 防犯カメラ
  • BS
  • CS
  • CATV
  • インターネット無料

※建物周辺情報はGoogleMapを使用しており、物件表示位置が実際の位置と多少異なる場合がございます。

掲載情報について

  • ※掲載情報が現況と異なる場合は、現況を優先させていただきます。
  • ※各種キャンペーン情報は予告なく変更・終了する場合がございます。事前に必ず募集条件をご確認くださいませ。
  • ※各部屋毎に敷金・礼金・キャンペーンの内容が異なる場合がございます。詳細は各部屋ページをご確認くださいませ。
  • ※分譲マンションの場合、各所有者様毎に室内の内装・設備が変更されている場合がございます。
  • ※分譲マンションの場合、建物自体が許可していても各所有者様毎に室内のペット飼育・SOHO 利用について禁止の場合がございます。
  • ※各詳細については、メールまたはお電話にて、お気軽にお問い合わせくださいませ。
  • 還元キャンペーンバナー
  • ランキングページバナー
「中小企業からニッポンを元気にプロジェクト」公式アンバサダー前田敦子

クレイシア新宿ノースの
お問い合わせはこちらから

お問い合わせ

0120-139-692

電話受付 24時間 年中無休

内覧予約・空室確認・初期費用概算等
是非、お気軽にお問い合わせくださいませ。

〒103-0012 東京都中央区日本橋堀留町 1-8-11 日本橋人形町スクエア 3階
最寄駅:日比谷線・浅草線「人形町駅」徒歩3分サイト運営会社

ご成約済みの部屋一覧

所在階 間取り 面積 賃料 共益費/管理費 敷金/礼金 仲介手数料 詳細
1F 1K 25.36m2 ---円 ---円 ---ヶ月/---ヶ月 ---ヶ月 詳細
1F 1K 25.36m2 ---円 ---円 ---ヶ月/---ヶ月 ---ヶ月 詳細
1F 1K 25.43m2 ---円 ---円 ---ヶ月/---ヶ月 ---ヶ月 詳細
1F 1K 25.68m2 ---円 ---円 ---ヶ月/---ヶ月 ---ヶ月 詳細
1F 1K 25.66m2 ---円 ---円 ---ヶ月/---ヶ月 ---ヶ月 詳細
2F 1K 25.36m2 ---円 ---円 ---ヶ月/---ヶ月 ---ヶ月 詳細
2F 1K 25.39m2 ---円 ---円 ---ヶ月/---ヶ月 ---ヶ月 詳細
2F 1K 25.43m2 ---円 ---円 ---ヶ月/---ヶ月 ---ヶ月 詳細
2F 1K 25.68m2 ---円 ---円 ---ヶ月/---ヶ月 ---ヶ月 詳細
2F 1K 25.36m2 ---円 ---円 ---ヶ月/---ヶ月 ---ヶ月 詳細
2F 1K 25.62m2 ---円 ---円 ---ヶ月/---ヶ月 ---ヶ月 詳細
2F 1K 25.52m2 ---円 ---円 ---ヶ月/---ヶ月 ---ヶ月 詳細
2F 1K 25.36m2 ---円 ---円 ---ヶ月/---ヶ月 ---ヶ月 詳細
2F 1K 25.36m2 ---円 ---円 ---ヶ月/---ヶ月 ---ヶ月 詳細
3F 1K 25.36m2 ---円 ---円 ---ヶ月/---ヶ月 ---ヶ月 詳細
3F 1K 25.39m2 ---円 ---円 ---ヶ月/---ヶ月 ---ヶ月 詳細
3F 1K 25.43m2 ---円 ---円 ---ヶ月/---ヶ月 ---ヶ月 詳細
3F 1K 25.68m2 ---円 ---円 ---ヶ月/---ヶ月 ---ヶ月 詳細
3F 1K 25.36m2 ---円 ---円 ---ヶ月/---ヶ月 ---ヶ月 詳細
3F 1K 25.62m2 ---円 ---円 ---ヶ月/---ヶ月 ---ヶ月 詳細
3F 1K 25.52m2 ---円 ---円 ---ヶ月/---ヶ月 ---ヶ月 詳細
3F 1K 25.36m2 ---円 ---円 ---ヶ月/---ヶ月 ---ヶ月 詳細
3F 1K 25.36m2 ---円 ---円 ---ヶ月/---ヶ月 ---ヶ月 詳細
4F 1K 25.36m2 ---円 ---円 ---ヶ月/---ヶ月 ---ヶ月 詳細
4F 1K 25.39m2 ---円 ---円 ---ヶ月/---ヶ月 ---ヶ月 詳細
4F 1K 25.43m2 ---円 ---円 ---ヶ月/---ヶ月 ---ヶ月 詳細
4F 1K 25.68m2 ---円 ---円 ---ヶ月/---ヶ月 ---ヶ月 詳細
4F 1K 25.36m2 ---円 ---円 ---ヶ月/---ヶ月 ---ヶ月 詳細
4F 1K 25.62m2 ---円 ---円 ---ヶ月/---ヶ月 ---ヶ月 詳細
4F 1K 25.52m2 ---円 ---円 ---ヶ月/---ヶ月 ---ヶ月 詳細
4F 2LDK 50.73m2 ---円 ---円 ---ヶ月/---ヶ月 ---ヶ月 詳細
7F 1K 25.68m2 ---円 ---円 ---ヶ月/---ヶ月 ---ヶ月 詳細

表示

おすすめ物件紹介

おすすめ画像1

エスレジデンス新宿早稲田アヴェリス

■2025年10月竣工■早稲田駅徒歩8分■総戸数53戸■東京都新宿区早稲田鶴巻町569■地上12階 RC造

おすすめ画像2

ザ・グラヴィティ新宿

■2025年10月竣工■西武新宿駅徒歩3分■総戸数67戸■東京都新宿区百人町1-1-7地上5階 RC造■フリーレント1ヶ月

おすすめ画像3

コンフォリア・リヴ北新宿

■2025年2月竣工■東中野駅徒歩9分■総戸数48戸■東京都新宿区北新宿4-13-10■地上13階 RC造■フリーレント1ヶ月

おすすめ画像4

アーバネックス早稲田

■2025年9月竣工■早稲田駅徒歩2分■総戸数38戸■東京都新宿区早稲田町69-1■地上10階 RC造■フリーレント2ヶ月

おすすめ画像5

アクシルコート早稲田

■2025年4月竣工■江戸川橋駅徒歩6分■総戸数55戸■東京都新宿区早稲田鶴巻町566■地上13階 RC造

おすすめ画像6

リビオメゾン新宿ウエスト

■2025年7月竣工■新宿西口駅徒歩4分■総戸数27戸■東京都新宿区西新宿7-14-10■地上14階 RC造■フリーレント1ヶ月

おすすめ画像7

Reframe5早稲田

■2025年7月竣工■早稲田駅徒歩4分■総戸数38戸■東京都新宿区早稲田鶴巻町508-1■地上10階 RC造■フリーレント1ヶ月

おすすめ画像8

モンテヴェルデ神楽坂弐番館

■2025年1月竣工■飯田橋駅徒歩5分■総戸数23戸■東京都新宿区新小川町9-2■地上6階 RC造

おすすめ画像9

ウェルスクエア新宿戸山

■2025年6月竣工■若松河田駅徒歩6分■総戸数27戸■東京都新宿区戸山1-2-14■地上4階 地下1階 RC造

おすすめ画像10

ルミーク早稲田

■2025年6月竣工■早稲田駅徒歩2分■総戸数16戸■東京都新宿区喜久井町50-1■地上7階 地下1階 RC造

おすすめ画像11

ザ・パークハビオ神楽坂レジデンスサウス

■2025年6月竣工■神楽坂駅徒歩8分■総戸数254戸■東京都新宿区東五軒町6-8■地上10階 RC造

おすすめ画像12

ベルファース西早稲田

■2025年3月竣工■西早稲田駅徒歩5分■総戸数35戸■東京都新宿区大久保3-2-2■地上6階 RC造■フリーレント1ヶ月

おすすめ画像13

ロイヤルパークス品川

■2025年1月竣工■品川駅徒歩11分■総戸数458戸■東京都港区港南3-5-21■地上28階 地下1階 RC造

おすすめ画像14

コンフォリア芝浦MOKU

■2024年10月竣工■田町駅徒歩9分■総戸数64戸■東京都港区芝浦4-11-16■地上9階 RC造

おすすめ画像15

ウエリスアーバン水天宮前

■2023年3月竣工■水天宮前駅徒歩9分■総戸数431戸■東京都江東区佐賀2-8-4■地上13階 RC造■フリーレント2ヶ月

おすすめ画像16

コンフォリア新宿イーストサイドタワー

■2011年12月竣工■東新宿駅徒歩2分■総戸数761戸■東京都新宿区新宿6-27-29■地上32階 地下1階 RC造■フリーレント1ヶ月

最近見た物件

すべての最近見た物件を見る
pagetop