ドゥーエ銀座イースト1 2階 成約済み物件 1342-201

ドゥーエ銀座イースト1 成約済み物件 (1342-201)

▶ 契約金のお得さ圧倒的。比べてみれば、REIT FIND

賃料 ---
共益費/管理費 ---円
敷金/礼金 ---ヶ月/---ヶ月
仲介/FR ---ヶ月/---ヶ月
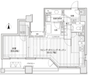
所在階/向き 2階/西
間取/面積 1LDK/40.16m2
入居日 ---
情報更新日 2025年6月4日

部屋設備

建物詳細を見る
  • 独立洗面台
  • 追い焚き
  • シャワートイレ
  • 浴室乾燥機
  • クローゼット
  • システムキッチン
  • ガスコンロ
  • エアコン
  • ダブルロックキー
  • フローリング
  • 角部屋

空室一覧
チェックした物件はまとめてお問い合わせ、検討中リストに追加できます。

現在公開中の部屋情報がありません。
最新の情報はこちらからお問い合わせください。

物件概要

建物詳細を見る
物件名 ドゥーエ銀座イースト1
所在地 東京都中央区3-1-12
最寄駅 東京メトロ有楽町線新富町駅」徒歩4分
東京メトロ日比谷線八丁堀駅」徒歩6分
JR京葉線八丁堀駅」徒歩6分
東京メトロ日比谷線築地駅」徒歩8分
東京メトロ有楽町線月島駅」徒歩13分
物件特徴 REIT系ブランドマンション、デザイナーズ
構造規模 地上12階 SRC造
総戸数 30戸 築年月 2005年5月
賃料 --- 管理費 ---円
敷金/礼金 ---ヶ月/---ヶ月 仲介手数料 ---ヶ月
フリーレント ---ヶ月 更新料 ---ヶ月
所在階/向き 2階/西 間取り 1LDK
専有面積 40.16m2
部屋詳細 LDK10.9帖/洋室5帖
契約形態 普通賃貸借契約 保証会社 利用必須
ペット飼育 不可
SOHO・事務所 不可
入居日

---

取引形態 媒介
問合番号 1342-201 情報更新日 2025年6月4日
キャンペーン情報 キャンペーン詳細内容やお見積り等は、即日ご案内をさせて頂きます
※キャンペーン適用には、制約条件・違約金等はございません

建物設備

建物詳細を見る
  • エレベーター
  • オートロック
  • 宅配ボックス
  • TVドアホン
  • バイク置き場
  • 駐輪場
  • 敷地内ゴミ置き場
  • 内廊下
  • 24時間管理
  • 防犯カメラ
  • BS
  • CS
  • CATV
  • インターネット無料

※建物周辺情報はGoogleMapを使用しており、物件の表示位置が実際の場所と多少異なる場合があります。

掲載情報について

  • ※掲載情報が現況と異なる場合は、現況を優先させていただきます。
  • ※各種キャンペーン情報は予告なく変更・終了する場合がございます。事前に必ず募集条件をご確認くださいませ。
  • ※各部屋毎に敷金・礼金・キャンペーンの内容が異なる場合がございます。詳細は各部屋ページをご確認くださいませ。
  • ※分譲マンションの場合、各所有者様毎に室内の内装・設備が変更されている場合がございます。
  • ※分譲マンションの場合、建物自体が許可していても各所有者様毎に室内のペット飼育・SOHO 利用について禁止の場合がございます。
  • ※各詳細については、メールまたはお電話にて、お気軽にお問い合わせくださいませ。
  • 還元キャンペーンバナー
  • ランキングページバナー
「中小企業からニッポンを元気にプロジェクト」公式アンバサダー前田敦子

ドゥーエ銀座イースト1の
お問い合わせはこちらから

お問い合わせ

0120-139-692

電話受付 24時間 年中無休

内覧予約・空室確認・初期費用概算等
是非、お気軽にお問い合わせくださいませ。

〒103-0012 東京都中央区日本橋堀留町 1-8-11 日本橋人形町スクエア 3階
最寄駅:日比谷線・浅草線「人形町駅」徒歩3分サイト運営会社

おすすめ物件紹介

おすすめ画像1

コンフォリア・リヴ茅場町

■2026年4月竣工■茅場町駅徒歩3分■総戸数28戸■東京都中央区新川1-1-6■地上10階 RC造

おすすめ画像2

コンフォリア・リヴ八丁堀

■2026年2月竣工■八丁堀駅徒歩4分■総戸数53戸■東京都中央区入船2-5-11■地上12階 RC造

おすすめ画像3

アーバネックス日本橋茅場町

■2026年2月竣工■水天宮前駅徒歩4分■総戸数37戸■東京都中央区日本橋蛎殻町1-1-1■地上11階 RC造■フリーレント2ヶ月

おすすめ画像4

アクシルコート日本橋本町

■2026年1月竣工■小伝馬町駅徒歩3分■総戸数150戸■東京都中央区日本橋本町4-12-11■地上12階 RC造

おすすめ画像5

ザ・パークハビオ日本橋茅場町

■2026年2月竣工■茅場町駅徒歩3分■総戸数81戸■東京都中央区日本橋茅場町2-2-5■地上10階 RC造■フリーレント1ヶ月

おすすめ画像6

トラッド日本橋人形町

■2025年7月竣工■人形町駅徒歩2分■総戸数26戸■東京都中央区日本橋人形町1-17-10■地上12階 RC造

おすすめ画像7

デュオフラッツ日本橋水天宮

■2025年8月竣工■水天宮前駅徒歩2分■総戸数34戸■東京都中央区日本橋蛎殻町1-28-3■地上14階 RC造■フリーレント1ヶ月

おすすめ画像8

ザ・パークハビオ日本橋三越前

■2025年3月竣工■人形町駅徒歩5分■総戸数54戸■東京都中央区日本橋堀留町1-1-5■地上10階 RC造

おすすめ画像9

アーバネックス日本橋馬喰町2

■2025年3月竣工■馬喰町駅徒歩1分■総戸数23戸■東京都中央区日本橋馬喰町1-4-3■地上12階 RC造

おすすめ画像10

プライムガーデン銀座八丁堀

■2025年3月竣工■八丁堀駅徒歩4分■総戸数72戸■東京都中央区入船1-4-5■地上12階 RC造■フリーレント1ヶ月

おすすめ画像11

グランパセオ銀座築地

■2024年11月竣工■築地市場駅徒歩5分■総戸数84戸■東京都中央区築地6-23-2■地上12階 RC造■フリーレント2ヶ月

おすすめ画像12

パークアクシス東日本橋

■2024年12月竣工■馬喰横山駅徒歩2分■総戸数144戸■東京都中央区東日本橋3-4-17■地上12階 RC造■フリーレント1ヶ月

おすすめ画像13

ブルックサイドレジデンス木場

■2026年3月竣工■木場駅徒歩9分■総戸数563戸■東京都江東区塩浜2-8-1■地上18階 RC造

おすすめ画像14

ロイヤルパークス有明

■2026年1月竣工■有明テニスの森駅9分■総戸数642戸■東京都江東区有明1-4-43■地上15階 RC造■フリーレント2ヶ月

おすすめ画像15

ウエリスアーバン水天宮前

■2023年3月竣工■水天宮前駅徒歩9分■総戸数431戸■東京都江東区佐賀2-8-4■地上13階 RC造■2026年3月末迄フリーレント

おすすめ画像16

コンフォリア新宿イーストサイドタワー

■2011年12月竣工■東新宿駅徒歩2分■総戸数761戸■東京都新宿区新宿6-27-29■地上32階 地下1階 RC造■フリーレント1ヶ月

pagetop