内覧予約・空室確認・初期費用概算等
								是非、お気軽にお問い合わせくださいませ。
〒103-0012 東京都中央区日本橋堀留町 1-8-11 日本橋人形町スクエア 3階
								最寄駅:日比谷線・浅草線「人形町駅」徒歩3分サイト運営会社
							
 
       
       
       
       
       
       
       
       
       
       
       
       
       
       
      | 物件名 | パークアクシス御成門 | ||
|---|---|---|---|
| 所在地 | 東京都港区西新橋3-20-1 | ||
| 最寄駅 | 都営三田線「御成門駅」徒歩4分 JR山手線「新橋駅」徒歩10分 東京メトロ銀座線「新橋駅」徒歩10分 都営浅草線「新橋駅」徒歩10分 東京メトロ日比谷線「神谷町駅」徒歩10分 | ||
| 物件特徴 | タワーマンション、デザイナーズ、ペット可 | ||
| 構造規模 | 制震構造 地上21階 地下2階 SRC造 | ||
| 総戸数 | 52戸 | 築年月 | 2011年10月 | 
| 賃料 | ---円 | 管理費 | ---円 | 
| 敷金/礼金 | ---ヶ月/---ヶ月 | 仲介手数料 | ---ヶ月 | 
| フリーレント | ---ヶ月 | 更新料 | ---ヶ月 | 
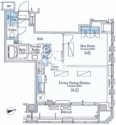
| 所在階/向き | 19階/南東 | 間取り | 1LDK+SIC | 
| 専有面積 | 59.89m2 | ||
| 部屋詳細 | LDK16.2帖/洋室8.8帖 | ||
| 契約形態 | 普通賃貸借契約 | 保証会社 | 利用必須 | 
| ペット飼育 | 可 敷1積増 | SOHO・事務所 | 不可 | 
| 入居日 | --- | 取引形態 | 媒介 | 
| 問合番号 | 14-1902 | 情報更新日 | 2024年11月30日 | 
| キャンペーン情報 | キャンペーン詳細内容やお見積り等は、即日ご案内をさせて頂きます | ||
| ※キャンペーン適用には、制約条件・違約金等はございません | |||
 
       
       
       
       
       
       
       
       
       
       
       
       
       
       
       
      ※建物周辺情報はGoogleMapを使用しており、物件の表示位置が実際の場所と多少異なる場合があります。
 
				■2025年9月竣工■外苑前駅徒歩5分■総戸数20戸■東京都港区南青山2-31-6■地上11階 RC造
 
				■2025年6月竣工■芝浦ふ頭駅徒歩4分■総戸数102戸■東京都港区海岸3-21-35■地上14階 RC造
 
				■2025年7月竣工■白金台駅徒歩6分■総戸数14戸■東京都港区白金2-6-4■地上5階 RC造
 
				■2025年6月竣工■目黒駅徒歩6分■総戸数48戸■東京都港区白金台3-19-5■地上13階 RC造
 
				■2025年2月竣工■芝浦ふ頭駅徒歩8分■総戸数114戸■東京都港区海岸3-3-18■地上11階 RC造■フリーレント1ヶ月
 
				■2024年9月竣工■広尾駅徒歩13分■総戸数39戸■東京都港区南青山7-10-9
■地上14階 RC造
 
				■2024年9月竣工■白金台駅徒歩6分■総戸数14戸■東京都港区白金台1-3-9■地上3階 RC造
 
				■2024年6月■乃木坂駅徒歩10分■総戸数18戸■東京都港区西麻布2-7-4■地上10階 RC造
 
				■2024年4月竣工■外苑前駅徒歩6分■総戸数18戸■東京都港区北青山2-12-38■地上10階 RC造
 
				■2024年3月竣工■外苑前駅徒歩7分■総戸数51戸■東京都港区南青山4-1-10■地上11階 RC造■フリーレント2ヶ月
 
				■2024年4月竣工■表参道駅徒歩4分■総戸数24戸■東京都港区北青山3丁目5-6■地上13階 地下2階 S造
 
				■2023年9月竣工■表参道駅徒歩10分■総戸数51戸■東京都港区南青山7-4-23■地上12階 RC造
 
				■2025年1月竣工■品川駅徒歩11分■総戸数458戸■東京都港区港南3-5-21■地上28階 地下1階 RC造
 
				■2024年10月竣工■田町駅徒歩9分■総戸数64戸■東京都港区芝浦4-11-16■地上9階 RC造
 
				■2023年3月竣工■水天宮前駅徒歩9分■総戸数431戸■東京都江東区佐賀2-8-4■地上13階 RC造
 
				■2011年12月竣工■東新宿駅徒歩2分■総戸数761戸■東京都新宿区新宿6-27-29■地上32階 地下1階 RC造■フリーレント1ヶ月