レジデンス両国駅前 1004|仲介料無料の賃貸情報

NEW
レジデンス両国駅前 1004
還元率UP

▶ 契約金のお得さ圧倒的。比べてみれば、REIT FIND

  • 仲介手数料無料
  • ペット可

部屋設備

建物詳細を見る
  • 独立洗面台
  • シャワートイレ
  • 浴室乾燥機
  • クローゼット
  • システムキッチン
  • ガスコンロ
  • エアコン
  • フローリング
  • 南向き

空室一覧
チェックした物件はまとめてお問い合わせ、検討中リストに追加できます。

物件概要

建物詳細を見る
  • LINE
物件名 レジデンス両国駅前
所在地 東京都墨田区両国4-37-10
最寄駅 JR中央・総武線両国駅」徒歩2分
都営大江戸線両国駅」徒歩2分
都営大江戸線森下駅」徒歩10分
都営新宿線森下駅」徒歩10分
都営浅草線東日本橋駅」徒歩17分
物件特徴 REIT系ブランドマンション、デザイナーズ、ペット可
構造規模 地上14階 地下1階 RC造
総戸数 78戸 築年月 2006年4月
賃料 131,000 管理費 7,000円
敷金/礼金 1ヶ月/1ヶ月 仲介手数料 0ヶ月
フリーレント 0ヶ月 更新料 1ヶ月
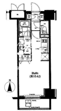
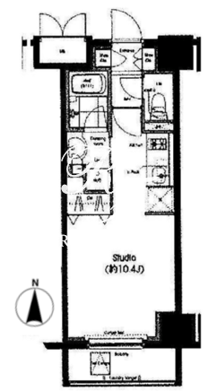
所在階/向き 10階/南 間取り 1K
専有面積 27.03m2
部屋詳細 洋室10.4帖/K2帖
契約形態 普通賃貸借契約 保証会社 利用必須
ペット飼育
敷1積増
SOHO・事務所 不可
入居日

相談

取引形態 媒介
問合番号 2448-1004 情報更新日 2026年4月18日
キャンペーン情報 キャンペーン詳細内容やお見積り等は、即日ご案内をさせて頂きます
※キャンペーン適用には、制約条件・違約金等はございません
※次回更新予定日は、上記の情報更新日から2週間後になります

建物設備

建物詳細を見る
  • エレベーター
  • オートロック
  • 宅配ボックス
  • TVドアホン
  • 駐車場
  • バイク置き場
  • 駐輪場
  • 敷地内ゴミ置き場
  • 24時間管理
  • 防犯カメラ
  • BS
  • CS
  • CATV
  • インターネット

※建物周辺情報はGoogleMapを使用しており、物件の表示位置が実際の場所と多少異なる場合があります。

掲載情報について

  • ※掲載情報が現況と異なる場合は、現況を優先させていただきます。
  • ※各種キャンペーン情報は予告なく変更・終了する場合がございます。事前に必ず募集条件をご確認くださいませ。
  • ※各部屋毎に敷金・礼金・キャンペーンの内容が異なる場合がございます。詳細は各部屋ページをご確認くださいませ。
  • ※分譲マンションの場合、各所有者様毎に室内の内装・設備が変更されている場合がございます。
  • ※分譲マンションの場合、建物自体が許可していても各所有者様毎に室内のペット飼育・SOHO 利用について禁止の場合がございます。
  • ※各詳細については、メールまたはお電話にて、お気軽にお問い合わせくださいませ。
  • 還元キャンペーンバナー
  • ランキングページバナー
「中小企業からニッポンを元気にプロジェクト」公式アンバサダー前田敦子

レジデンス両国駅前1004の
お問い合わせはこちらから

お問い合わせ

0120-139-692

電話受付 24時間 年中無休

内覧予約・空室確認・初期費用概算等
是非、お気軽にお問い合わせくださいませ。

〒103-0012 東京都中央区日本橋堀留町 1-8-11 日本橋人形町スクエア 3階
最寄駅:日比谷線・浅草線「人形町駅」徒歩3分サイト運営会社

おすすめ物件紹介

おすすめ画像1

ドゥーエ両国4

■2026年4月竣工■両国駅徒歩12分■総戸数39戸■東京都墨田区石原4-1-4■地上11階 RC造

おすすめ画像2

シーズンフラッツ押上フィオーレ

■2026年2月竣工■押上駅徒歩4分■総戸数22戸■東京都墨田区業平3-4-15■地上12階 RC造■フリーレント2ヶ月

おすすめ画像3

ACPレジデンス錦糸町

■2026年2月竣工■錦糸町駅徒歩3分■総戸数48戸■東京都墨田区太平3-4-1■地上13階 RC造■フリーレント1ヶ月

おすすめ画像4

ダフィット錦糸町

■2026年2月竣工■錦糸町駅徒歩6分■総戸数90戸■東京都墨田区江東橋4-14-7■地上14階 RC造■フリーレント1ヶ月

おすすめ画像5

ブリリアイスト錦糸公園

■2026年2月竣工■錦糸町駅徒歩5分■総戸数46戸■東京都墨田区錦糸4-2-11■地上14階 RC造

おすすめ画像6

アーバンパーク東向島

■2026年1月竣工■東向島駅徒歩12分■総戸数91戸■東京都墨田区堤通1-18-26■地上5階 RC造■フリーレント1ヶ月

おすすめ画像7

コンフォリア・リヴ両国イースト

■2025年12月竣工■両国駅徒歩5分■総戸数27戸■東京都墨田区亀沢2-23-8■地上7階 RC造

おすすめ画像8

ザ・パークハビオ本所吾妻橋

■2026年2月竣工■本所吾妻橋駅徒歩5分■総戸数29戸■東京都墨田区本所3-23-6■地上11階 RC造

おすすめ画像9

CREATIF押上

■2025年12月竣工■押上駅徒歩8分■総戸数22戸■東京都墨田区向島3-4-4■地上12階 RC造■フリーレント3ヶ月

おすすめ画像10

Kコート押上

■2025年10月竣工■押上駅徒歩5分■総戸数26戸■東京都墨田区押上3-29-13■地上7階 RC造■フリーレント3ヶ月

おすすめ画像11

シーズンフラッツ両国サウス

■2025年11月■両国駅徒歩8分■総戸数74戸■東京都墨田区千歳1-9-4■地上9階 RC造■フリーレント2ヶ月

おすすめ画像12

ベルシードアルファ押上イースト

■2025年10月竣工■小村井駅徒歩2分■総戸数35戸■東京都墨田区立花4-3-12■地上8階 RC造

おすすめ画像13

ブルックサイドレジデンス木場

■2026年3月竣工■木場駅徒歩9分■総戸数563戸■東京都江東区塩浜2-8-1■地上18階 RC造■フリーレント1ヶ月

おすすめ画像14

ロイヤルパークス有明

■2026年1月竣工■有明テニスの森駅9分■総戸数642戸■東京都江東区有明1-4-43■地上15階 RC造■フリーレント3ヶ月

おすすめ画像15

ウエリスアーバン水天宮前

■2023年3月竣工■水天宮前駅徒歩9分■総戸数431戸■東京都江東区佐賀2-8-4■地上13階 RC造

おすすめ画像16

コンフォリア新宿イーストサイドタワー

■2011年12月竣工■東新宿駅徒歩2分■総戸数761戸■東京都新宿区新宿6-27-29■地上32階 地下1階 RC造■フリーレント1ヶ月

最近見た物件

すべての最近見た物件を見る
pagetop