エスタート大井町 テラス402|仲介料無料の賃貸情報

改定
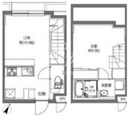
エスタート大井町 テラス402
築5年以内 還元率UP

▶ 契約金のお得さ圧倒的。比べてみれば、REIT FIND

  • 礼金0
  • 仲介手数料無料
  • フリーレント
  • ペット可
賃料 125,000
共益費/管理費 12,000円
敷金/礼金 1ヶ月/0ヶ月
仲介/FR 0ヶ月/0ヶ月
所在階/向き 4階/北東
間取/面積 1R/22.70m2
入居日 1月下旬
情報更新日 2025年12月17日

■604号室対象/実質フリーレント2ヶ月/相談可
■206号室対象/実質フリーレント1ヶ月/相談可
▶ REIT FIND特典でお得にご契約くださいませ。
1.都内最安値での契約を、即時に提示致します。
2.初期費用のお見積りを、即時に案内致します。
3.内覧・リモート内覧を、即時に提案致します。

■311/402号室対象/フリーレント1ヶ月

部屋設備

建物詳細を見る
  • 独立洗面台
  • シャワートイレ
  • 浴室乾燥機
  • クローゼット
  • システムキッチン
  • ガスコンロ
  • エアコン
  • フローリング
  • 角部屋

空室一覧
チェックした物件はまとめてお問い合わせ、検討中リストに追加できます。

物件概要

建物詳細を見る
  • LINE
物件名 エスタート大井町
所在地 東京都品川区東大井3-8-13
最寄駅 京急本線立会川駅」徒歩7分
JR京浜東北線大井町駅」徒歩8分
東急大井町線大井町駅」徒歩8分
りんかい線大井町駅」徒歩8分
京急本線鮫洲駅」徒歩7分
物件特徴 REIT系ブランドマンション、デザイナーズ
構造規模 地上6階 RC造
総戸数 66戸 築年月 2021年10月
賃料 125,000 管理費 12,000円
敷金/礼金 1ヶ月/0ヶ月 仲介手数料 0ヶ月
フリーレント 0ヶ月 更新料 1ヶ月
所在階/向き 4階/北東 間取り 1R
専有面積 22.70m2
部屋詳細 洋室9.8帖
契約形態 普通賃貸借契約 保証会社 利用必須
ペット飼育
敷1積増
SOHO・事務所 不可
入居日

1月下旬

取引形態 媒介
問合番号 3020-テラス402 情報更新日 2025年12月17日
キャンペーン情報 キャンペーン詳細内容やお見積り等は、即日ご案内をさせて頂きます
※キャンペーン適用には、制約条件・違約金等はございません
※次回更新予定日は、上記の情報更新日から2週間後になります

建物設備

建物詳細を見る
  • エレベーター
  • オートロック
  • 宅配ボックス
  • TVドアホン
  • 駐車場
  • 駐輪場
  • 敷地内ゴミ置き場
  • 内廊下
  • 24時間管理
  • 防犯カメラ
  • BS
  • CS
  • CATV
  • インターネット無料

※建物周辺情報はGoogleMapを使用しており、物件の表示位置が実際の場所と多少異なる場合があります。

掲載情報について

  • ※掲載情報が現況と異なる場合は、現況を優先させていただきます。
  • ※各種キャンペーン情報は予告なく変更・終了する場合がございます。事前に必ず募集条件をご確認くださいませ。
  • ※各部屋毎に敷金・礼金・キャンペーンの内容が異なる場合がございます。詳細は各部屋ページをご確認くださいませ。
  • ※分譲マンションの場合、各所有者様毎に室内の内装・設備が変更されている場合がございます。
  • ※分譲マンションの場合、建物自体が許可していても各所有者様毎に室内のペット飼育・SOHO 利用について禁止の場合がございます。
  • ※各詳細については、メールまたはお電話にて、お気軽にお問い合わせくださいませ。
  • 還元キャンペーンバナー
  • ランキングページバナー
「中小企業からニッポンを元気にプロジェクト」公式アンバサダー前田敦子

エスタート大井町テラス402の
お問い合わせはこちらから

お問い合わせ

0120-139-692

電話受付 24時間 年中無休

内覧予約・空室確認・初期費用概算等
是非、お気軽にお問い合わせくださいませ。

〒103-0012 東京都中央区日本橋堀留町 1-8-11 日本橋人形町スクエア 3階
最寄駅:日比谷線・浅草線「人形町駅」徒歩3分サイト運営会社

おすすめ物件紹介

おすすめ画像1

ザ・パークハビオ五反田

■2022年11月竣工■五反田駅徒歩2分■総戸数61戸■東京都品川区西五反田2-17-6■地上14階 RC造

おすすめ画像2

ブランシエスタ品川大井町パークエッジ

■2025年11月竣工■青物横丁駅徒歩5分■総戸数48戸■東京都品川区南品川6-7-16■地上7階 RC造

おすすめ画像3

アルティザ五反田

■2025年11月竣工■不動前駅徒歩9分■総戸数31戸■東京都品川区西五反田3-8-17■上12階 RC造

おすすめ画像4

コンフォリア戸越公園

■2025年7月竣工■戸越駅徒歩10分■総戸数44戸■東京都品川区豊町1-8-3■地上4階 地下1階 RC造

おすすめ画像5

アイフラット品川戸越パークサイド

■2025年10月竣工■戸越公園駅徒歩5分■総戸数44戸■東京都品川区戸越4-4-24■地上7階 RC造

おすすめ画像6

コンフォリア・リヴ南品川

■2025年3月竣工■青物横丁駅徒歩5分■総戸数140戸■東京都品川区南品川3-6-14■地上10階 RC造

おすすめ画像7

アークマーク東大井

■2025年8月竣工■立会川駅徒歩6分■総戸数62戸■東京都品川区東大井3-13-6■地上5階 RC造

おすすめ画像8

シーズンフラッツ大井町

■2025年7月竣工■立会川駅徒歩6分■総戸数69戸■東京都品川区東大井3-16-5■地上14階 RC造■フリーレント2ヶ月

おすすめ画像9

オーガスタレジデンス大森

■2025年8月竣工■大森駅徒歩10分■総戸数84戸■東京都品川区南大井3-1-4■地上9階 RC造

おすすめ画像10

アークマーク南品川

■2025年6月竣工■新馬場駅徒歩4分■総戸数38戸■東京都品川区南品川1-2-22■地上5階 RC造■フリーレント1ヶ月

おすすめ画像11

コンポジット品川戸越

■2025年5月竣工■戸越公園駅徒歩5分■総戸数19戸■東京都品川区豊町4-3-18■地上4階 RC造 ■フリーレント1ヶ月

おすすめ画像12

デュオフラッツ品川戸越

■2025年7月竣工■戸越駅徒歩4分■総戸数23戸■東京都品川区平塚1-20-8■地上13階 RC造■フリーレント1ヶ月

おすすめ画像13

ロイヤルパークス品川

■2025年1月竣工■品川駅徒歩11分■総戸数458戸■東京都港区港南3-5-21■地上28階 地下1階 RC造

おすすめ画像14

コンフォリア芝浦MOKU

■2024年10月竣工■田町駅徒歩9分■総戸数64戸■東京都港区芝浦4-11-16■地上9階 RC造

おすすめ画像15

ウエリスアーバン水天宮前

■2023年3月竣工■水天宮前駅徒歩9分■総戸数431戸■東京都江東区佐賀2-8-4■地上13階 RC造■フリーレント2ヶ月

おすすめ画像16

コンフォリア新宿イーストサイドタワー

■2011年12月竣工■東新宿駅徒歩2分■総戸数761戸■東京都新宿区新宿6-27-29■地上32階 地下1階 RC造■フリーレント1ヶ月

pagetop