ステージファースト東日本橋 7階 成約済み物件 3026-701

ステージファースト東日本橋 成約済み物件 (3026-701)

▶ 契約金のお得さ圧倒的。比べてみれば、REIT FIND

部屋設備

建物詳細を見る
  • 独立洗面台
  • シャワートイレ
  • 浴室乾燥機
  • クローゼット
  • システムキッチン
  • ガスコンロ
  • エアコン
  • フローリング
  • 角部屋
  • 南向き

空室一覧
チェックした物件はまとめてお問い合わせ、検討中リストに追加できます。

現在公開中の部屋情報がありません。
最新の情報はこちらからお問い合わせください。

物件概要

建物詳細を見る
物件名 ステージファースト東日本橋
所在地 東京都中央区東日本橋1-3-15
最寄駅 都営浅草線東日本橋駅」徒歩3分
都営新宿線浜町駅」徒歩4分
都営新宿線馬喰横山駅」徒歩5分
JR総武本線馬喰町駅」徒歩7分
東京メトロ日比谷線人形町駅」徒歩13分
物件特徴 デザイナーズ、分譲賃貸、ペット可
構造規模 地上12階 RC造
総戸数 32戸 築年月 2021年9月
賃料 --- 管理費 ---円
敷金/礼金 ---ヶ月/---ヶ月 仲介手数料 ---ヶ月
フリーレント ---ヶ月 更新料 ---ヶ月
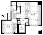
所在階/向き 7階/南西 間取り 1K
専有面積 26.41m2
部屋詳細 洋室6.3帖/K2帖
契約形態 普通賃貸借契約 保証会社 利用必須
ペット飼育 不可
SOHO・事務所 不可
入居日

---

取引形態 媒介
問合番号 3026-701 情報更新日 2022年3月27日
キャンペーン情報 キャンペーン詳細内容やお見積り等は、即日ご案内をさせて頂きます
※キャンペーン適用には、制約条件・違約金等はございません

建物設備

建物詳細を見る
  • エレベーター
  • オートロック
  • 宅配ボックス
  • TVドアホン
  • バイク置き場
  • 駐輪場
  • 敷地内ゴミ置き場
  • 24時間管理
  • 防犯カメラ
  • BS
  • CS
  • CATV
  • インターネット無料
  • 楽器可

※建物周辺情報はGoogleMapを使用しており、物件の表示位置が実際の場所と多少異なる場合があります。

掲載情報について

  • ※掲載情報が現況と異なる場合は、現況を優先させていただきます。
  • ※各種キャンペーン情報は予告なく変更・終了する場合がございます。事前に必ず募集条件をご確認くださいませ。
  • ※各部屋毎に敷金・礼金・キャンペーンの内容が異なる場合がございます。詳細は各部屋ページをご確認くださいませ。
  • ※分譲マンションの場合、各所有者様毎に室内の内装・設備が変更されている場合がございます。
  • ※分譲マンションの場合、建物自体が許可していても各所有者様毎に室内のペット飼育・SOHO 利用について禁止の場合がございます。
  • ※各詳細については、メールまたはお電話にて、お気軽にお問い合わせくださいませ。
  • 還元キャンペーンバナー
  • ランキングページバナー
「中小企業からニッポンを元気にプロジェクト」公式アンバサダー前田敦子

ステージファースト東日本橋の
お問い合わせはこちらから

お問い合わせ

0120-139-692

電話受付 24時間 年中無休

内覧予約・空室確認・初期費用概算等
是非、お気軽にお問い合わせくださいませ。

〒103-0012 東京都中央区日本橋堀留町 1-8-11 日本橋人形町スクエア 3階
最寄駅:日比谷線・浅草線「人形町駅」徒歩3分サイト運営会社

おすすめ物件紹介

おすすめ画像1

コンフォリア・リヴ八丁堀

■2026年2月竣工■八丁堀駅徒歩4分■総戸数53戸■東京都中央区入船2-5-11■地上12階 RC造

おすすめ画像2

アーバネックス日本橋茅場町

■2026年2月竣工■水天宮前駅徒歩4分■総戸数37戸■東京都中央区日本橋蛎殻町1-1-1■地上11階 RC造■フリーレント2ヶ月

おすすめ画像3

アクシルコート日本橋本町

■2026年1月竣工■小伝馬町駅徒歩3分■総戸数150戸■東京都中央区日本橋本町4-12-1■地上12階 RC造

おすすめ画像4

ザ・パークハビオ日本橋茅場町

■2026年2月竣工■茅場町駅徒歩3分■総戸数81戸■東京都中央区日本橋茅場町2-2-5■地上10階 RC造■フリーレント1ヶ月

おすすめ画像5

トラッド日本橋人形町

■2025年7月竣工■人形町駅徒歩2分■総戸数26戸■東京都中央区日本橋人形町1-17-10■地上12階 RC造

おすすめ画像6

デュオフラッツ日本橋水天宮

■2025年8月竣工■水天宮前駅徒歩2分■総戸数34戸■東京都中央区日本橋蛎殻町1-28-3■地上14階 RC造■フリーレント1ヶ月

おすすめ画像7

ザ・パークハビオ日本橋三越前

■2025年3月竣工■人形町駅徒歩5分■総戸数54戸■東京都中央区日本橋堀留町1-1-5■地上10階 RC造

おすすめ画像8

アーバネックス日本橋馬喰町2

■2025年3月竣工■馬喰町駅徒歩1分■総戸数23戸■東京都中央区日本橋馬喰町1-4-3■地上12階 RC造■フリーレント2ヶ月

おすすめ画像9

プライムガーデン銀座八丁堀

■2025年3月竣工■八丁堀駅徒歩4分■総戸数72戸■東京都中央区入船1-4-5■地上12階 RC造■フリーレント1ヶ月

おすすめ画像10

グランパセオ銀座築地

■2024年11月竣工■築地市場駅徒歩5分■総戸数84戸■東京都中央区築地6-23-2■地上12階 RC造■フリーレント2ヶ月

おすすめ画像11

パークアクシス東日本橋

■2024年12月竣工■馬喰横山駅徒歩2分■総戸数144戸■東京都中央区東日本橋3-4-17■地上12階 RC造■フリーレント1ヶ月

おすすめ画像12

イプセ日本橋

■2024年12月竣工■水天宮前駅徒歩3分■総戸数26戸■東京都中央区日本橋蛎殻町1-6-5■地上14階 RC造

おすすめ画像13

ブルックサイドレジデンス木場

■2026年3月竣工■木場駅徒歩9分■総戸数563戸■東京都江東区塩浜2-8-1■地上18階 RC造

おすすめ画像14

ロイヤルパークス有明

■2026年1月竣工■有明テニスの森駅9分■総戸数642戸■東京都江東区有明1-4-43■地上15階 RC造■フリーレント1ヶ月

おすすめ画像15

ウエリスアーバン水天宮前

■2023年3月竣工■水天宮前駅徒歩9分■総戸数431戸■東京都江東区佐賀2-8-4■地上13階 RC造■2026年3月末迄フリーレント

おすすめ画像16

コンフォリア新宿イーストサイドタワー

■2011年12月竣工■東新宿駅徒歩2分■総戸数761戸■東京都新宿区新宿6-27-29■地上32階 地下1階 RC造■フリーレント1ヶ月

最近見た物件

すべての最近見た物件を見る
pagetop