ベルシード門前仲町2 4階 成約済み物件 3494-405

ベルシード門前仲町2 成約済み物件 (3494-405)

▶ 契約金のお得さ圧倒的。比べてみれば、REIT FIND

部屋設備

建物詳細を見る
  • 独立洗面台
  • シャワートイレ
  • 浴室乾燥機
  • システムキッチン
  • ガスコンロ
  • エアコン
  • ウォークインクローゼット
  • フローリング
  • 南向き

空室一覧
チェックした物件はまとめてお問い合わせ、検討中リストに追加できます。

現在公開中の部屋情報がありません。
最新の情報はこちらからお問い合わせください。

物件概要

建物詳細を見る
物件名 ベルシード門前仲町2
所在地 東京都江東区永代2-37-20
最寄駅 東京メトロ東西線門前仲町駅」徒歩5分
都営大江戸線門前仲町駅」徒歩5分
JR京葉線越中島駅」徒歩12分
都営大江戸線清澄白河駅」徒歩15分
東京メトロ半蔵門線清澄白河駅」徒歩15分
物件特徴 デザイナーズ、分譲賃貸、ペット可
構造規模 地上8階 RC造
総戸数 39戸 築年月 2022年5月
賃料 --- 管理費 ---円
敷金/礼金 ---ヶ月/---ヶ月 仲介手数料 ---ヶ月
フリーレント ---ヶ月 更新料 ---ヶ月
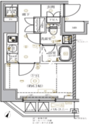
所在階/向き 4階/南東 間取り 1R+WIC
専有面積 26.65m2
部屋詳細 洋室7帖
契約形態 普通賃貸借契約 保証会社 利用必須
ペット飼育
敷1積増
SOHO・事務所 不可
入居日

---

取引形態 媒介
問合番号 3494-405 情報更新日 2025年5月11日
キャンペーン情報 キャンペーン詳細内容やお見積り等は、即日ご案内をさせて頂きます
※キャンペーン適用には、制約条件・違約金等はございません

建物設備

建物詳細を見る
  • エレベーター
  • オートロック
  • 宅配ボックス
  • TVドアホン
  • 駐車場
  • バイク置き場
  • 駐輪場
  • 敷地内ゴミ置き場
  • 内廊下
  • 24時間管理
  • 防犯カメラ
  • BS
  • CS
  • CATV
  • インターネット無料

※建物周辺情報はGoogleMapを使用しており、物件の表示位置が実際の場所と多少異なる場合があります。

掲載情報について

  • ※掲載情報が現況と異なる場合は、現況を優先させていただきます。
  • ※各種キャンペーン情報は予告なく変更・終了する場合がございます。事前に必ず募集条件をご確認くださいませ。
  • ※各部屋毎に敷金・礼金・キャンペーンの内容が異なる場合がございます。詳細は各部屋ページをご確認くださいませ。
  • ※分譲マンションの場合、各所有者様毎に室内の内装・設備が変更されている場合がございます。
  • ※分譲マンションの場合、建物自体が許可していても各所有者様毎に室内のペット飼育・SOHO 利用について禁止の場合がございます。
  • ※各詳細については、メールまたはお電話にて、お気軽にお問い合わせくださいませ。
  • 還元キャンペーンバナー
  • ランキングページバナー
「中小企業からニッポンを元気にプロジェクト」公式アンバサダー前田敦子

ベルシード門前仲町2の
お問い合わせはこちらから

お問い合わせ

0120-139-692

電話受付 24時間 年中無休

内覧予約・空室確認・初期費用概算等
是非、お気軽にお問い合わせくださいませ。

〒103-0012 東京都中央区日本橋堀留町 1-8-11 日本橋人形町スクエア 3階
最寄駅:日比谷線・浅草線「人形町駅」徒歩3分サイト運営会社

おすすめ物件紹介

おすすめ画像1

ルミーク門前仲町

■2026年3月竣工■門前仲町駅徒歩9分■総戸数34戸■東京都江東区冬木21-20■地上10階 RC造

おすすめ画像2

ウエリスアーバン住吉ウエスト

■2026年3月竣工■住吉駅徒歩9分■総戸数57戸■東京都江東区猿江1-1-9■地上10階 RC造■フリーレント1ヶ月

おすすめ画像3

ウエリスアーバン住吉イースト

■2026年3月竣工■住吉駅徒歩8分■総戸数76戸■東京都江東区猿江1-1-11■地上10階 RC造■フリーレント1ヶ月

おすすめ画像4

ブリリアイスト門前仲町

■2026年2月竣工■門前仲町駅徒歩7分■総戸数60戸■東京都江東区深川2-24-4■地上10階 RC造

おすすめ画像5

OAKLANCE森下2

■2026年1月竣工■森下駅徒歩2分■総戸数82戸■東京都江東区新大橋2-10-5■地上15階 RC造■フリーレント1ヶ月

おすすめ画像6

タイズ住吉

■2026年1月竣工■住吉駅徒歩11分■総戸数20戸■東京都江東区海辺14-11■地上5階 地下1階 RC造■フリーレント1ヶ月

おすすめ画像7

クレストコート東陽町

■2026年2月竣工■東陽町駅徒歩5分■総戸数126戸■東京都江東区東陽3-22-34■地上14階 RC造■フリーレント2ヶ月

おすすめ画像8

コンフォリア・リヴ木場イースト2

■2025年11月竣工■木場駅徒歩8分■総戸数22戸■東京都江東区東陽1-29-6■地上8階 RC造

おすすめ画像9

コンフォリア・リヴ木場イースト1

■2025年11月竣工■木場駅徒歩8分■総戸数26戸■東京都江東区東陽1-28-7■地上9階 RC造

おすすめ画像10

パークアクシス新大橋

■2026年1月竣工■森下駅徒歩5分■総戸数33戸■東京都江東区新大橋2-15-6■地上12階 RC造

おすすめ画像11

ガリシア亀戸水神

■2025年11月竣工■亀戸水神駅徒歩2分■総戸数24戸■東京都江東区亀戸8-17-7■地上9階 RC造

おすすめ画像12

ルフォンリヴェント清澄白河

■2025年11月竣工■清澄白河駅徒歩3分■総戸数27戸■東京都江東区三好1-1-1■地上10階 RC造■フリーレント1ヶ月

おすすめ画像13

ブルックサイドレジデンス木場

■2026年3月竣工■木場駅徒歩9分■総戸数563戸■東京都江東区塩浜2-8-1■地上18階 RC造

おすすめ画像14

ロイヤルパークス有明

■2026年1月竣工■有明テニスの森駅9分■総戸数642戸■東京都江東区有明1-4-43■地上15階 RC造■フリーレント2ヶ月

おすすめ画像15

ウエリスアーバン水天宮前

■2023年3月竣工■水天宮前駅徒歩9分■総戸数431戸■東京都江東区佐賀2-8-4■地上13階 RC造■2026年3月末迄フリーレント

おすすめ画像16

コンフォリア新宿イーストサイドタワー

■2011年12月竣工■東新宿駅徒歩2分■総戸数761戸■東京都新宿区新宿6-27-29■地上32階 地下1階 RC造■フリーレント1ヶ月

最近見た物件

すべての最近見た物件を見る
pagetop