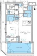
プレディアコート代々木上原 3階 成約済み物件 3663-304

プレディアコート代々木上原 成約済み物件 (3663-304)

▶ 契約金のお得さ圧倒的。比べてみれば、REIT FIND

賃料 ---
共益費/管理費 ---円
敷金/礼金 ---ヶ月/---ヶ月
仲介/FR ---ヶ月/---ヶ月
所在階/向き 3階/北東
間取/面積 1LDK+WIC+SIC/40.21m2
入居日 ---
情報更新日 2025年5月27日

部屋設備

建物詳細を見る
  • 独立洗面台
  • 追い焚き
  • シャワートイレ
  • 浴室乾燥機
  • クローゼット
  • システムキッチン
  • カウンターキッチン
  • ガスコンロ
  • エアコン
  • シューズインクローゼット
  • ウォークインクローゼット
  • フローリング
  • 角部屋
  • 最上階

空室一覧
チェックした物件はまとめてお問い合わせ、検討中リストに追加できます。

物件概要

建物詳細を見る
物件名 プレディアコート代々木上原
所在地 東京都渋谷区大山町41-6
最寄駅 小田急線代々木上原駅」徒歩4分
東京メトロ千代田線代々木上原駅」徒歩4分
小田急線東北沢駅」徒歩9分
京王新線幡ヶ谷駅」徒歩12分
小田急線代々木八幡駅」徒歩14分
物件特徴 REIT系ブランドマンション、デザイナーズ
構造規模 地上3階 RC造
総戸数 24戸 築年月 2022年9月
賃料 --- 管理費 ---円
敷金/礼金 ---ヶ月/---ヶ月 仲介手数料 ---ヶ月
フリーレント ---ヶ月 更新料 ---ヶ月
所在階/向き 3階/北東 間取り 1LDK+WIC+SIC
専有面積 40.21m2
部屋詳細 LDK10.3帖/洋室4帖
契約形態 普通賃貸借契約 保証会社 利用必須
ペット飼育 不可
SOHO・事務所 不可
入居日

---

取引形態 媒介
問合番号 3663-304 情報更新日 2025年5月27日
キャンペーン情報 キャンペーン詳細内容やお見積り等は、即日ご案内をさせて頂きます
※キャンペーン適用には、制約条件・違約金等はございません

建物設備

建物詳細を見る
  • エレベーター
  • オートロック
  • 宅配ボックス
  • TVドアホン
  • バイク置き場
  • 駐輪場
  • 敷地内ゴミ置き場
  • 24時間管理
  • 防犯カメラ
  • BS
  • CS
  • CATV
  • インターネット無料

※建物周辺情報はGoogleMapを使用しており、物件の表示位置が実際の場所と多少異なる場合があります。

掲載情報について

  • ※掲載情報が現況と異なる場合は、現況を優先させていただきます。
  • ※各種キャンペーン情報は予告なく変更・終了する場合がございます。事前に必ず募集条件をご確認くださいませ。
  • ※各部屋毎に敷金・礼金・キャンペーンの内容が異なる場合がございます。詳細は各部屋ページをご確認くださいませ。
  • ※分譲マンションの場合、各所有者様毎に室内の内装・設備が変更されている場合がございます。
  • ※分譲マンションの場合、建物自体が許可していても各所有者様毎に室内のペット飼育・SOHO 利用について禁止の場合がございます。
  • ※各詳細については、メールまたはお電話にて、お気軽にお問い合わせくださいませ。
  • 還元キャンペーンバナー
  • ランキングページバナー
「中小企業からニッポンを元気にプロジェクト」公式アンバサダー前田敦子

プレディアコート代々木上原の
お問い合わせはこちらから

お問い合わせ

0120-139-692

電話受付 24時間 年中無休

内覧予約・空室確認・初期費用概算等
是非、お気軽にお問い合わせくださいませ。

〒103-0012 東京都中央区日本橋堀留町 1-8-11 日本橋人形町スクエア 3階
最寄駅:日比谷線・浅草線「人形町駅」徒歩3分サイト運営会社

おすすめ物件紹介

おすすめ画像1

アーバンパークグラン代官山

■2023年1月竣工■代官山駅徒歩10分■総戸数28戸■東京都渋谷区鉢山町13-18■地上5階 地下1階 RC造

おすすめ画像2

アリビス笹塚

■2025年12月竣工■笹塚駅徒歩10分■総戸数32戸■東京都渋谷区笹塚3-43-8■地上13階 RC造■2026年4月29日迄フリーレント

おすすめ画像3

パークコート恵比寿

■2025年12月竣工■恵比寿駅徒歩2分■総戸数81戸■東京都渋谷区東3-1-1■地上15階 地下1階 RC造

おすすめ画像4

グランパセオ代々木上原2

■2025年8月竣工■東北沢駅徒歩3分■総戸数12戸■東京都渋谷区大山町8-5■地上3階 地下1階 RC造■フリーレント2ヶ月

おすすめ画像5

エネシャル代官山

■2025年1月竣工■代官山駅徒歩3分■総戸数35戸■東京都渋谷区猿楽町11-8■地上10階 RC造

おすすめ画像6

アジールコート松濤

■2025年8月竣工■神泉駅徒歩7分■総戸数51戸■東京都渋谷区松濤2-11-15■地上12階 RC造■フリーレント2ヶ月

おすすめ画像7

アイフラット渋谷西原

■2025年8月竣工■幡ヶ谷駅徒歩2分■総戸数28戸■東京都渋谷区西原2-31-3■地上6階 RC造

おすすめ画像8

コートモデリア広尾Tokyo

■2025年7月竣工■広尾駅徒歩7分■総戸数20戸■東京都渋谷区恵比寿2-20-2■地上5階 地下1階 RC造

おすすめ画像9

グランパセオ広尾

■2025年2月竣工■恵比寿駅徒歩11分■総戸数50戸■東京都渋谷区広尾3-12-39■地上13階 RC造■フリーレント1ヶ月

おすすめ画像10

アイフラット代々木上原

■2025年2月竣工■代々木上原駅徒歩3分■総戸数30戸■東京都渋谷区上原3-44-8■地上8階 RC造

おすすめ画像11

プライムガーデン恵比寿南

■2024年11月竣工■代官山駅徒歩5分■総戸数44戸■東京都渋谷区恵比寿南3-4-13■地上13階 RC造

おすすめ画像12

レーヴシティ千駄ヶ谷

■2024年9月竣工■北参道駅徒歩8分■総戸数31戸■東京都渋谷区千駄ヶ谷2-28-1■地上13階 地下1階 RC造

おすすめ画像13

ブルックサイドレジデンス木場

■2026年3月竣工■木場駅徒歩9分■総戸数563戸■東京都江東区塩浜2-8-1■地上18階 RC造

おすすめ画像14

ロイヤルパークス有明

■2026年1月竣工■有明テニスの森駅9分■総戸数642戸■東京都江東区有明1-4-43■地上15階 RC造■フリーレント2ヶ月

おすすめ画像15

ウエリスアーバン水天宮前

■2023年3月竣工■水天宮前駅徒歩9分■総戸数431戸■東京都江東区佐賀2-8-4■地上13階 RC造■2026年3月末迄フリーレント

おすすめ画像16

コンフォリア新宿イーストサイドタワー

■2011年12月竣工■東新宿駅徒歩2分■総戸数761戸■東京都新宿区新宿6-27-29■地上32階 地下1階 RC造■フリーレント1ヶ月

pagetop