クオリタス浅草橋

クオリタス浅草橋
築5年以内還元率UP

▶ 契約金のお得さ圧倒的。比べてみれば、REIT FIND

  • ペット可

契約金 初期費用【特別価格】
竣 工 2022年8月
最寄駅 浅草橋駅徒歩5分
総戸数 54戸

住 所 東京都台東区浅草橋2-22-4
概 要 地上13階 RC造
■全部屋対象/実質フリーレント0.5ヶ月/相談可
▶ REIT FIND特典でお得にご契約くださいませ。
1.都内最安値での契約を、即時に提示致します。
2.初期費用のお見積りを、即時に案内致します。
3.内覧・リモート内覧を、即時に提案致します。


■物件名フリガナ
クオリタスアサクサバシ
QUALITAS浅草橋

■近隣周辺施設情報
キッチンオリジン浅草橋店まで約230m
バーガーキング浅草橋東口駅前店まで約350m
りそな銀行浅草橋駅前出張所まで約530m
餃子の王将浅草橋駅前店まで約550m
ココスナカムラ鳥越店まで約640m
まいばすけっと浅草橋駅北店まで約70m
セブンイレブン台東浅草橋3丁目東店まで約300m
くらまえ橋郵便局まで約530m
くすりセイジョー浅草橋店まで約350m
肉のハナマサ浅草橋店まで約600m

今月申し込みの方限定キャンペーン

キャンペーン中です。
1.都内最安値での契約は、是非お任せください。
2.初期費用のお見積りは、是非お任せください。
3.内覧・リモート内覧は、是非お任せください。
※諸条件・詳細等は是非お問合せ下さいませ。

空室一覧
チェックした物件はまとめてお問い合わせ、検討中リストに追加できます。

現在公開中の部屋情報がありません。
最新の情報はこちらからお問い合わせください。

物件概要

  • LINE
物件名 クオリタス浅草橋
所在地 東京都台東区浅草橋2-22-4
最寄駅 JR中央・総武線浅草橋駅」徒歩5分
都営浅草線浅草橋駅」徒歩6分
都営浅草線蔵前駅」徒歩9分
JR山手線秋葉原駅」徒歩15分
JR中央・総武線両国駅」徒歩18分
物件特徴 REIT系ブランドマンション、デザイナーズ、ペット可
構造規模 地上13階 RC造
総戸数 54戸 築年月 2022年8月
賃料 - 管理費 -
間取り - 専有面積 -
問合番号 3819

■駐車場   1台(平置式)月額44,000円
■バイク置場 3台/月額5,500円
■駐輪場   52台/月額330円
―――――――
■設 計   株式会社ヒロ・デザイン・オフィス
■施 工   住協建設株式会社東京本店
■管理形式  巡回管理
―――――――
■保 険   借家人賠償付き火災保険要加入
■ペット   相談(敷1積増)
■楽 器   不可
■鍵交換代  初回契約時39,600円(税込)
■保証会社  利用必須(※大手法人契約の場合、例外あり)
■保証会社  初回保証委託料/月額賃料等の20%~100%
■保証会社  年間継続料/0.8万円~1.0万円 or
■保証会社  月額保証料賃料等の1%~2%
―――――――
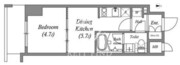
■間取り
□1DK~1LDK(25.14㎡~50.28㎡)

■① 駐車場・バイク置場・駐輪場の詳細は、是非お問合せ下さい。
■② 内覧のご希望時は、物件現地待ち合わせ対応をしております。
■③ 物件写真の量と質、情報更新鮮度に特化して運営しています。

建物設備

建物詳細を見る
  • エレベーター
  • オートロック
  • 宅配ボックス
  • TVドアホン
  • 駐車場
  • バイク置き場
  • 駐輪場
  • 敷地内ゴミ置き場
  • 内廊下
  • 24時間管理
  • 防犯カメラ
  • BS
  • CS
  • CATV
  • インターネット無料

※建物周辺情報はGoogleMapを使用しており、物件表示位置が実際の位置と多少異なる場合がございます。

掲載情報について

  • ※掲載情報が現況と異なる場合は、現況を優先させていただきます。
  • ※各種キャンペーン情報は予告なく変更・終了する場合がございます。事前に必ず募集条件をご確認くださいませ。
  • ※各部屋毎に敷金・礼金・キャンペーンの内容が異なる場合がございます。詳細は各部屋ページをご確認くださいませ。
  • ※分譲マンションの場合、各所有者様毎に室内の内装・設備が変更されている場合がございます。
  • ※分譲マンションの場合、建物自体が許可していても各所有者様毎に室内のペット飼育・SOHO 利用について禁止の場合がございます。
  • ※各詳細については、メールまたはお電話にて、お気軽にお問い合わせくださいませ。
  • 還元キャンペーンバナー
  • ランキングページバナー
「中小企業からニッポンを元気にプロジェクト」公式アンバサダー前田敦子

クオリタス浅草橋の
お問い合わせはこちらから

お問い合わせ

0120-139-692

電話受付 24時間 年中無休

内覧予約・空室確認・初期費用概算等
是非、お気軽にお問い合わせくださいませ。

〒103-0012 東京都中央区日本橋堀留町 1-8-11 日本橋人形町スクエア 3階
最寄駅:日比谷線・浅草線「人形町駅」徒歩3分サイト運営会社

ご成約済みの部屋一覧

所在階 間取り 面積 賃料 共益費/管理費 敷金/礼金 仲介手数料 詳細
2F 1DK 25.98m2 ---円 ---円 ---ヶ月/---ヶ月 ---ヶ月 詳細
2F 1DK 25.14m2 ---円 ---円 ---ヶ月/---ヶ月 ---ヶ月 詳細
2F 1DK 25.14m2 ---円 ---円 ---ヶ月/---ヶ月 ---ヶ月 詳細
2F 1DK 25.20m2 ---円 ---円 ---ヶ月/---ヶ月 ---ヶ月 詳細
2F 1LDK 40.28m2 ---円 ---円 ---ヶ月/---ヶ月 ---ヶ月 詳細
3F 1DK 25.98m2 ---円 ---円 ---ヶ月/---ヶ月 ---ヶ月 詳細
3F 1DK 25.14m2 ---円 ---円 ---ヶ月/---ヶ月 ---ヶ月 詳細
3F 1DK 25.14m2 ---円 ---円 ---ヶ月/---ヶ月 ---ヶ月 詳細
3F 1DK 25.20m2 ---円 ---円 ---ヶ月/---ヶ月 ---ヶ月 詳細
3F 1LDK 40.28m2 ---円 ---円 ---ヶ月/---ヶ月 ---ヶ月 詳細
4F 1DK 25.98m2 ---円 ---円 ---ヶ月/---ヶ月 ---ヶ月 詳細
4F 1DK 25.14m2 ---円 ---円 ---ヶ月/---ヶ月 ---ヶ月 詳細
4F 1DK 25.14m2 ---円 ---円 ---ヶ月/---ヶ月 ---ヶ月 詳細
4F 1DK 25.20m2 ---円 ---円 ---ヶ月/---ヶ月 ---ヶ月 詳細
4F 1LDK 40.28m2 ---円 ---円 ---ヶ月/---ヶ月 ---ヶ月 詳細
5F 1DK 25.98m2 ---円 ---円 ---ヶ月/---ヶ月 ---ヶ月 詳細
5F 1DK 25.14m2 ---円 ---円 ---ヶ月/---ヶ月 ---ヶ月 詳細
5F 1DK 25.14m2 ---円 ---円 ---ヶ月/---ヶ月 ---ヶ月 詳細
5F 1DK 25.20m2 ---円 ---円 ---ヶ月/---ヶ月 ---ヶ月 詳細
5F 1LDK 40.28m2 ---円 ---円 ---ヶ月/---ヶ月 ---ヶ月 詳細
6F 1DK 25.98m2 ---円 ---円 ---ヶ月/---ヶ月 ---ヶ月 詳細
6F 1DK 25.14m2 ---円 ---円 ---ヶ月/---ヶ月 ---ヶ月 詳細
6F 1DK 25.14m2 ---円 ---円 ---ヶ月/---ヶ月 ---ヶ月 詳細
6F 1DK 25.20m2 ---円 ---円 ---ヶ月/---ヶ月 ---ヶ月 詳細
6F 1LDK 40.28m2 ---円 ---円 ---ヶ月/---ヶ月 ---ヶ月 詳細
7F 1DK 25.98m2 ---円 ---円 ---ヶ月/---ヶ月 ---ヶ月 詳細
7F 1DK 25.14m2 ---円 ---円 ---ヶ月/---ヶ月 ---ヶ月 詳細
7F 1DK 25.14m2 ---円 ---円 ---ヶ月/---ヶ月 ---ヶ月 詳細
7F 1DK 25.20m2 ---円 ---円 ---ヶ月/---ヶ月 ---ヶ月 詳細
7F 1LDK 40.28m2 ---円 ---円 ---ヶ月/---ヶ月 ---ヶ月 詳細
8F 1DK 25.98m2 ---円 ---円 ---ヶ月/---ヶ月 ---ヶ月 詳細
8F 1LDK 50.28m2 ---円 ---円 ---ヶ月/---ヶ月 ---ヶ月 詳細
8F 1DK 25.20m2 ---円 ---円 ---ヶ月/---ヶ月 ---ヶ月 詳細
8F 1LDK 40.28m2 ---円 ---円 ---ヶ月/---ヶ月 ---ヶ月 詳細
9F 1DK 25.98m2 ---円 ---円 ---ヶ月/---ヶ月 ---ヶ月 詳細
9F 1LDK 50.28m2 ---円 ---円 ---ヶ月/---ヶ月 ---ヶ月 詳細
9F 1DK 25.20m2 ---円 ---円 ---ヶ月/---ヶ月 ---ヶ月 詳細
9F 1LDK 40.28m2 ---円 ---円 ---ヶ月/---ヶ月 ---ヶ月 詳細
10F 1DK 25.98m2 ---円 ---円 ---ヶ月/---ヶ月 ---ヶ月 詳細
10F 1LDK 50.28m2 ---円 ---円 ---ヶ月/---ヶ月 ---ヶ月 詳細
10F 1DK 25.20m2 ---円 ---円 ---ヶ月/---ヶ月 ---ヶ月 詳細
10F 1LDK 40.28m2 ---円 ---円 ---ヶ月/---ヶ月 ---ヶ月 詳細
11F 1DK 25.98m2 ---円 ---円 ---ヶ月/---ヶ月 ---ヶ月 詳細
11F 1LDK 50.28m2 ---円 ---円 ---ヶ月/---ヶ月 ---ヶ月 詳細
11F 1DK 25.20m2 ---円 ---円 ---ヶ月/---ヶ月 ---ヶ月 詳細
11F 1LDK 40.28m2 ---円 ---円 ---ヶ月/---ヶ月 ---ヶ月 詳細
12F 1DK 25.98m2 ---円 ---円 ---ヶ月/---ヶ月 ---ヶ月 詳細
12F 1LDK 50.28m2 ---円 ---円 ---ヶ月/---ヶ月 ---ヶ月 詳細
12F 1DK 25.20m2 ---円 ---円 ---ヶ月/---ヶ月 ---ヶ月 詳細
12F 1LDK 40.28m2 ---円 ---円 ---ヶ月/---ヶ月 ---ヶ月 詳細
13F 1DK 25.98m2 ---円 ---円 ---ヶ月/---ヶ月 ---ヶ月 詳細
13F 1LDK 50.28m2 ---円 ---円 ---ヶ月/---ヶ月 ---ヶ月 詳細
13F 1DK 25.20m2 ---円 ---円 ---ヶ月/---ヶ月 ---ヶ月 詳細
13F 1LDK 40.28m2 ---円 ---円 ---ヶ月/---ヶ月 ---ヶ月 詳細

表示

おすすめ物件紹介

おすすめ画像1

アーバネックス浅草橋Front

■2026年3月竣工■浅草橋駅徒歩1分■総戸数39戸■東京都台東区柳橋1-13-6■地上15階 RC造■フリーレント1ヶ月

おすすめ画像2

シーズンフラッツ浅草六丁目

■2025年12月竣工■浅草駅徒歩7分■総戸数48戸■東京都台東区浅草6-1-1■地上13階 RC造■フリーレント1ヶ月

おすすめ画像3

nido元浅草

■2025年10月竣工■田原町駅徒歩6分■総戸数24戸■東京都台東区元浅草4-2-13■地上13階 RC造■フリーレント1ヶ月

おすすめ画像4

ブリリアイスト浅草

■2025年12月竣工■浅草駅徒歩1分■総戸数68戸■東京都台東区西浅草2-27-12■地上15階 RC造■フリーレント1ヶ月

おすすめ画像5

ルミークアン北上野

■2025年12月竣工■入谷駅徒歩2分■総戸数35戸■東京都台東区北上野2-29-7■地上14階 RC造■フリーレント1ヶ月

おすすめ画像6

グランカーサ千駄木

■2025年11月竣工■千駄木駅徒歩6分■総戸数25戸■東京都台東区谷中2-7-14■地上4階 RC造

おすすめ画像7

グランカーサ上野松が谷

■2025年10月竣工■稲荷町駅徒歩8分■総戸数26戸■東京都台東区松が谷2-8-14■地上10階 RC造■フリーレント1ヶ月

おすすめ画像8

ジオエント上野稲荷町

■2025年10月竣工■稲荷町駅徒歩7分■総戸数48戸■東京都台東区松が谷1-7-7■地上14階 RC造■フリーレント2ヶ月

おすすめ画像9

シーズンフラッツ新御徒町イースト

■2025年9月竣工■新御徒町駅徒歩1分■総戸数33戸■東京都台東区元浅草1-4-4■地上12階 RC造■フリーレント2ヶ月

おすすめ画像10

ブランシエスタ浅草蔵前

■2025年11月竣工■蔵前駅徒歩3分■総戸数116戸■東京都台東区駒形1-4-17■地上15階 RC造■フリーレント1ヶ月

おすすめ画像11

ルフォンプログレ上野御徒町

■2025年9月竣工■新御徒町駅徒歩5分■総戸数49戸■東京都台東区台東3-23-11■地上15階 RC造■フリーレント1ヶ月

おすすめ画像12

nido三ノ輪

■2025年8月竣工■三ノ輪駅徒歩5分■総戸数29戸■東京都台東区三ノ輪1-14-5■地上11階 RC造

おすすめ画像13

ブルックサイドレジデンス木場

■2026年3月竣工■木場駅徒歩9分■総戸数563戸■東京都江東区塩浜2-8-1■地上18階 RC造

おすすめ画像14

ロイヤルパークス有明

■2026年1月竣工■有明テニスの森駅9分■総戸数642戸■東京都江東区有明1-4-43■地上15階 RC造■フリーレント1ヶ月

おすすめ画像15

ウエリスアーバン水天宮前

■2023年3月竣工■水天宮前駅徒歩9分■総戸数431戸■東京都江東区佐賀2-8-4■地上13階 RC造■2026年3月末迄フリーレント

おすすめ画像16

コンフォリア新宿イーストサイドタワー

■2011年12月竣工■東新宿駅徒歩2分■総戸数761戸■東京都新宿区新宿6-27-29■地上32階 地下1階 RC造■フリーレント1ヶ月

最近見た物件

すべての最近見た物件を見る
pagetop