レジディア池袋 4階 成約済み物件 3988-406

レジディア池袋 成約済み物件 (3988-406)

▶ 契約金のお得さ圧倒的。比べてみれば、REIT FIND

部屋設備

建物詳細を見る
  • 独立洗面台
  • 追い焚き
  • シャワートイレ
  • 浴室乾燥機
  • クローゼット
  • システムキッチン
  • IHコンロ
  • エアコン
  • フローリング

空室一覧
チェックした物件はまとめてお問い合わせ、検討中リストに追加できます。

物件概要

建物詳細を見る
物件名 レジディア池袋
所在地 東京都豊島区池袋2-24-20
最寄駅 東京メトロ有楽町線要町駅」徒歩6分
JR山手線池袋駅」徒歩10分
東京メトロ丸ノ内線池袋駅」徒歩10分
西武池袋線池袋駅」徒歩10分
東武東上線池袋駅」徒歩10分
物件特徴 REIT系ブランドマンション、デザイナーズ
構造規模 地上5階 RC造
総戸数 60戸 築年月 2005年4月
賃料 --- 管理費 ---円
敷金/礼金 ---ヶ月/---ヶ月 仲介手数料 ---ヶ月
フリーレント ---ヶ月 更新料 ---ヶ月
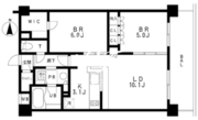
所在階/向き 4階/東 間取り 2LDK+WIC
専有面積 54.19m2
部屋詳細 LDK13.2帖/洋室6帖/洋室5帖
契約形態 普通賃貸借契約 保証会社 利用必須
ペット飼育 不可
SOHO・事務所 不可
入居日

---

取引形態 媒介
問合番号 3988-406 情報更新日 2023年2月9日
キャンペーン情報 キャンペーン詳細内容やお見積り等は、即日ご案内をさせて頂きます
※キャンペーン適用には、制約条件・違約金等はございません

建物設備

建物詳細を見る
  • エレベーター
  • オートロック
  • 宅配ボックス
  • TVドアホン
  • 駐車場
  • 大型駐車場
  • バイク置き場
  • 駐輪場
  • 敷地内ゴミ置き場
  • 内廊下
  • 防犯カメラ
  • BS
  • CS
  • CATV
  • インターネット

※建物周辺情報はGoogleMapを使用しており、物件の表示位置が実際の場所と多少異なる場合があります。

掲載情報について

  • ※掲載情報が現況と異なる場合は、現況を優先させていただきます。
  • ※各種キャンペーン情報は予告なく変更・終了する場合がございます。事前に必ず募集条件をご確認くださいませ。
  • ※各部屋毎に敷金・礼金・キャンペーンの内容が異なる場合がございます。詳細は各部屋ページをご確認くださいませ。
  • ※分譲マンションの場合、各所有者様毎に室内の内装・設備が変更されている場合がございます。
  • ※分譲マンションの場合、建物自体が許可していても各所有者様毎に室内のペット飼育・SOHO 利用について禁止の場合がございます。
  • ※各詳細については、メールまたはお電話にて、お気軽にお問い合わせくださいませ。
  • 還元キャンペーンバナー
  • ランキングページバナー
「中小企業からニッポンを元気にプロジェクト」公式アンバサダー前田敦子

レジディア池袋の
お問い合わせはこちらから

お問い合わせ

0120-139-692

電話受付 24時間 年中無休

内覧予約・空室確認・初期費用概算等
是非、お気軽にお問い合わせくださいませ。

〒103-0012 東京都中央区日本橋堀留町 1-8-11 日本橋人形町スクエア 3階
最寄駅:日比谷線・浅草線「人形町駅」徒歩3分サイト運営会社

おすすめ物件紹介

おすすめ画像1

コスモグラシア大塚

■2026年3月竣工■大塚駅徒歩3分■総戸数36戸■東京都豊島区北大塚2-11-10■地上13階 RC造■フリーレント1ヶ月

おすすめ画像2

パークアクシス池袋イースト

■2026年2月竣工■池袋駅徒歩7分■総戸数77戸■東京都豊島区東池袋3-13-5■地上12階 RC造■フリーレント1ヶ月

おすすめ画像3

プラティーク目白

■2025年11月竣工■椎名町駅徒歩4分■総戸数22戸■東京都豊島区目白4-29-11■地上8階 RC造■フリーレント2ヶ月

おすすめ画像4

ライブフラット巣鴨

■2025年8月竣工■新庚申塚駅徒歩4分■総戸数14戸■東京都豊島区巣鴨5-25-1■地上4階 RC造

おすすめ画像5

シーフォルムネクスト池袋ウエスト

■2026年1月竣工■要町駅徒歩3分■総戸数23戸■東京都豊島区要町1-17-13■地上5階 RC造■フリーレント2ヶ月

おすすめ画像6

シティハウス巣鴨

■2024年12月竣工■巣鴨駅徒歩4分■総戸数63戸■東京都豊島区巣鴨1-23-7■地上14階 RC造

おすすめ画像7

ルフォンリヴェント池袋

■2025年12月竣工■池袋駅徒歩5分■総戸数26戸■東京都豊島区池袋2-51-7■地上14階 RC造

おすすめ画像8

トラディス大塚

■2025年11月竣工■巣鴨新田駅徒歩5分■総戸数29戸■東京都豊島区北大塚3-17-8■地上8階 RC造

おすすめ画像9

アークマーク池袋本町

■2025年9月竣工■北池袋駅徒歩7分■総戸数60戸■東京都豊島区池袋本町2-17-19■地上8階 RC造

おすすめ画像10

コートレジデンス南大塚

■2025年9月竣工■大塚駅徒歩5分■総戸数103戸■東京都豊島区南大塚2-39-5■地上14階 RC造

おすすめ画像11

グランパセオ池袋

■2025年4月竣工■雑司ヶ谷駅徒歩2分■総戸数14戸■東京都豊島区南池袋2-3-2■地上5階 RC造■フリーレント2ヶ月

おすすめ画像12

ザ・ゲートハウス雑司が谷

■2025年3月竣工■雑司が谷駅徒歩2分■総戸数68戸■東京都豊島区雑司が谷3-3-4■地上14階 地下1階 RC造■フリーレント1ヶ月

おすすめ画像13

ブルックサイドレジデンス木場

■2026年3月竣工■木場駅徒歩9分■総戸数563戸■東京都江東区塩浜2-8-1■地上18階 RC造

おすすめ画像14

ロイヤルパークス有明

■2026年1月竣工■有明テニスの森駅9分■総戸数642戸■東京都江東区有明1-4-43■地上15階 RC造■フリーレント2ヶ月

おすすめ画像15

ウエリスアーバン水天宮前

■2023年3月竣工■水天宮前駅徒歩9分■総戸数431戸■東京都江東区佐賀2-8-4■地上13階 RC造■2026年3月末迄フリーレント

おすすめ画像16

コンフォリア新宿イーストサイドタワー

■2011年12月竣工■東新宿駅徒歩2分■総戸数761戸■東京都新宿区新宿6-27-29■地上32階 地下1階 RC造■フリーレント1ヶ月

最近見た物件

すべての最近見た物件を見る
pagetop