シーフォルム浅草 9階 成約済み物件 5351-901

シーフォルム浅草 成約済み物件 (5351-901)

▶ 契約金のお得さ圧倒的。比べてみれば、REIT FIND

部屋設備

建物詳細を見る
  • 独立洗面台
  • 追い焚き
  • シャワートイレ
  • 浴室乾燥機
  • クローゼット
  • システムキッチン
  • ガスコンロ
  • エアコン
  • フローリング

空室一覧
チェックした物件はまとめてお問い合わせ、検討中リストに追加できます。

現在公開中の部屋情報がありません。
最新の情報はこちらからお問い合わせください。

物件概要

建物詳細を見る
物件名 シーフォルム浅草
所在地 東京都台東区千束1-11-10
最寄駅 つくばエクスプレス浅草駅」徒歩6分
東京メトロ日比谷線入谷駅」徒歩9分
東京メトロ銀座線田原町駅」徒歩15分
東京メトロ銀座線浅草駅」徒歩18分
都営浅草線浅草駅」徒歩18分
物件特徴 デザイナーズ、分譲賃貸、ペット可
構造規模 地上11階 RC造
総戸数 27戸 築年月 2018年2月
賃料 --- 管理費 ---円
敷金/礼金 ---ヶ月/---ヶ月 仲介手数料 ---ヶ月
フリーレント ---ヶ月 更新料 ---ヶ月
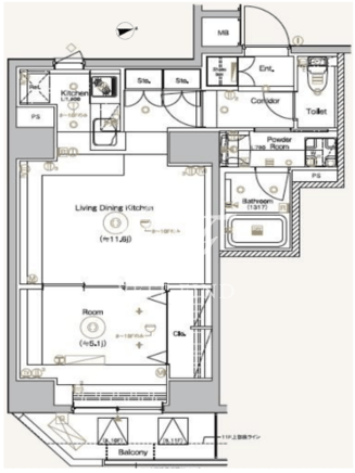
所在階/向き 9階/東 間取り 1LDK
専有面積 41.87m2
部屋詳細 LDK11.6帖/洋室5.1帖
契約形態 普通賃貸借契約 保証会社 利用必須
ペット飼育 不可
SOHO・事務所 不可
入居日

---

取引形態 媒介
問合番号 5351-901 情報更新日 2026年2月20日
キャンペーン情報 キャンペーン詳細内容やお見積り等は、即日ご案内をさせて頂きます
※キャンペーン適用には、制約条件・違約金等はございません

建物設備

建物詳細を見る
  • エレベーター
  • オートロック
  • 宅配ボックス
  • TVドアホン
  • バイク置き場
  • 駐輪場
  • 敷地内ゴミ置き場
  • 24時間管理
  • 防犯カメラ
  • BS
  • CS
  • CATV
  • インターネット

※建物周辺情報はGoogleMapを使用しており、物件の表示位置が実際の場所と多少異なる場合があります。

掲載情報について

  • ※掲載情報が現況と異なる場合は、現況を優先させていただきます。
  • ※各種キャンペーン情報は予告なく変更・終了する場合がございます。事前に必ず募集条件をご確認くださいませ。
  • ※各部屋毎に敷金・礼金・キャンペーンの内容が異なる場合がございます。詳細は各部屋ページをご確認くださいませ。
  • ※分譲マンションの場合、各所有者様毎に室内の内装・設備が変更されている場合がございます。
  • ※分譲マンションの場合、建物自体が許可していても各所有者様毎に室内のペット飼育・SOHO 利用について禁止の場合がございます。
  • ※各詳細については、メールまたはお電話にて、お気軽にお問い合わせくださいませ。
  • 還元キャンペーンバナー
  • ランキングページバナー
「中小企業からニッポンを元気にプロジェクト」公式アンバサダー前田敦子

シーフォルム浅草の
お問い合わせはこちらから

お問い合わせ

0120-139-692

電話受付 24時間 年中無休

内覧予約・空室確認・初期費用概算等
是非、お気軽にお問い合わせくださいませ。

〒103-0012 東京都中央区日本橋堀留町 1-8-11 日本橋人形町スクエア 3階
最寄駅:日比谷線・浅草線「人形町駅」徒歩3分サイト運営会社

おすすめ物件紹介

おすすめ画像1

リビオメゾン浅草雷門

■2026年3月竣工■浅草駅徒歩3分■総戸数42戸■東京都台東区雷門2-15-1■地上15階 RC造■フリーレント2ヶ月

おすすめ画像2

アーバネックス上野

■2026年4月竣工■稲荷町駅徒歩3分■総戸数48戸■東京都台東区東上野3-5-11■地上13階 RC造■フリーレント1ヶ月

おすすめ画像3

アーバネックス浅草橋フロント

■2026年3月竣工■浅草橋駅徒歩1分■総戸数39戸■東京都台東区柳橋1-13-6■地上15階 RC造■フリーレント1ヶ月

おすすめ画像4

シーズンフラッツ浅草六丁目

■2025年12月竣工■浅草駅徒歩7分■総戸数48戸■東京都台東区浅草6-1-1■地上13階 RC造■フリーレント2ヶ月

おすすめ画像5

nido元浅草

■2025年10月竣工■田原町駅徒歩6分■総戸数24戸■東京都台東区元浅草4-2-13■地上13階 RC造■フリーレント1ヶ月

おすすめ画像6

ブリリアイスト浅草

■2025年12月竣工■浅草駅徒歩1分■総戸数68戸■東京都台東区西浅草2-27-12■地上15階 RC造■フリーレント1ヶ月

おすすめ画像7

ルミークアン北上野

■2025年12月竣工■入谷駅徒歩2分■総戸数35戸■東京都台東区北上野2-29-7■地上14階 RC造■フリーレント1ヶ月

おすすめ画像8

グランカーサ千駄木

■2025年11月竣工■千駄木駅徒歩6分■総戸数25戸■東京都台東区谷中2-7-14■地上4階 RC造

おすすめ画像9

グランカーサ上野松が谷

■2025年10月竣工■稲荷町駅徒歩8分■総戸数26戸■東京都台東区松が谷2-8-14■地上10階 RC造■フリーレント1ヶ月

おすすめ画像10

ジオエント上野稲荷町

■2025年10月竣工■稲荷町駅徒歩7分■総戸数48戸■東京都台東区松が谷1-7-7■地上14階 RC造■フリーレント2ヶ月

おすすめ画像11

シーズンフラッツ新御徒町イースト

■2025年9月竣工■新御徒町駅徒歩1分■総戸数33戸■東京都台東区元浅草1-4-4■地上12階 RC造■フリーレント2ヶ月

おすすめ画像12

ブランシエスタ浅草蔵前

■2025年11月竣工■蔵前駅徒歩3分■総戸数116戸■東京都台東区駒形1-4-17■地上15階 RC造■フリーレント1ヶ月

おすすめ画像13

ブルックサイドレジデンス木場

■2026年3月竣工■木場駅徒歩9分■総戸数563戸■東京都江東区塩浜2-8-1■地上18階 RC造

おすすめ画像14

ロイヤルパークス有明

■2026年1月竣工■有明テニスの森駅9分■総戸数642戸■東京都江東区有明1-4-43■地上15階 RC造■フリーレント2ヶ月

おすすめ画像15

ウエリスアーバン水天宮前

■2023年3月竣工■水天宮前駅徒歩9分■総戸数431戸■東京都江東区佐賀2-8-4■地上13階 RC造■2026年3月末迄フリーレント

おすすめ画像16

コンフォリア新宿イーストサイドタワー

■2011年12月竣工■東新宿駅徒歩2分■総戸数761戸■東京都新宿区新宿6-27-29■地上32階 地下1階 RC造■フリーレント1ヶ月

pagetop