リーブルグラント西新宿 10階 成約済み物件 543-W-1008

リーブルグラント西新宿 成約済み物件 (543-W-1008)

▶ 契約金のお得さ圧倒的。比べてみれば、REIT FIND

賃料 ---
共益費/管理費 ---円
敷金/礼金 ---ヶ月/---ヶ月
仲介/FR ---ヶ月/---ヶ月
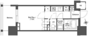
所在階/向き 10階/東
間取/面積 1K/25.37m2
入居日 ---
情報更新日 2025年4月17日

1.都内最安値での契約を、即時に提示致します。
2.初期費用のお見積りを、即時に案内致します。
3.内覧・リモート内覧を、即時に提案致します。
■全部屋対象/仲介手数料半額

部屋設備

建物詳細を見る
  • 独立洗面台
  • 追い焚き
  • シャワートイレ
  • 浴室乾燥機
  • クローゼット
  • システムキッチン
  • カウンターキッチン
  • ガスコンロ
  • エアコン
  • フローリング

空室一覧
チェックした物件はまとめてお問い合わせ、検討中リストに追加できます。

物件概要

建物詳細を見る
物件名 リーブルグラント西新宿
所在地 東京都新宿区西新宿8-8-16
最寄駅 東京メトロ丸ノ内線西新宿駅」徒歩5分
西武新宿線西武新宿駅」徒歩7分
都営大江戸線都庁前駅」徒歩8分
JR中央・総武線大久保駅」徒歩8分
JR山手線新宿駅」徒歩13分
物件特徴 REIT系ブランドマンション、デザイナーズ
構造規模 地上14階 地下1階 RC造
総戸数 198戸 築年月 2020年2月
賃料 --- 管理費 ---円
敷金/礼金 ---ヶ月/---ヶ月 仲介手数料 ---ヶ月
フリーレント ---ヶ月 更新料 ---ヶ月
所在階/向き 10階/東 間取り 1K
専有面積 25.37m2
部屋詳細 洋室7帖/K2帖
契約形態 普通賃貸借契約 保証会社 利用必須
ペット飼育 不可
SOHO・事務所 不可
入居日

---

取引形態 媒介
問合番号 543-W-1008 情報更新日 2025年4月17日
キャンペーン情報 キャンペーン詳細内容やお見積り等は、即日ご案内をさせて頂きます
※キャンペーン適用には、制約条件・違約金等はございません

建物設備

建物詳細を見る
  • エレベーター
  • オートロック
  • 宅配ボックス
  • TVドアホン
  • 駐車場
  • 大型駐車場
  • バイク置き場
  • 駐輪場
  • ラウンジ
  • 敷地内ゴミ置き場
  • 内廊下
  • 24時間管理
  • 防犯カメラ
  • BS
  • CS
  • CATV
  • インターネット無料

※建物周辺情報はGoogleMapを使用しており、物件の表示位置が実際の場所と多少異なる場合があります。

掲載情報について

  • ※掲載情報が現況と異なる場合は、現況を優先させていただきます。
  • ※各種キャンペーン情報は予告なく変更・終了する場合がございます。事前に必ず募集条件をご確認くださいませ。
  • ※各部屋毎に敷金・礼金・キャンペーンの内容が異なる場合がございます。詳細は各部屋ページをご確認くださいませ。
  • ※分譲マンションの場合、各所有者様毎に室内の内装・設備が変更されている場合がございます。
  • ※分譲マンションの場合、建物自体が許可していても各所有者様毎に室内のペット飼育・SOHO 利用について禁止の場合がございます。
  • ※各詳細については、メールまたはお電話にて、お気軽にお問い合わせくださいませ。
  • 還元キャンペーンバナー
  • ランキングページバナー
「中小企業からニッポンを元気にプロジェクト」公式アンバサダー前田敦子

リーブルグラント西新宿の
お問い合わせはこちらから

お問い合わせ

0120-139-692

電話受付 24時間 年中無休

内覧予約・空室確認・初期費用概算等
是非、お気軽にお問い合わせくださいませ。

〒103-0012 東京都中央区日本橋堀留町 1-8-11 日本橋人形町スクエア 3階
最寄駅:日比谷線・浅草線「人形町駅」徒歩3分サイト運営会社

おすすめ物件紹介

おすすめ画像1

ルフォンプログレ高田馬場ノース

■2026年5月竣工■下落合駅徒歩5分■総戸数105戸■東京都新宿区高田馬場3-41-1■地上5階 RC造

おすすめ画像2

アグライア新宿横寺町

■2026年2月竣工■牛込神楽坂駅徒歩2分■総戸数33戸■東京都新宿区横寺町37-15■地上3階 地下1階 RC造■フリーレント1ヶ月

おすすめ画像3

コスモグラシア新宿西早稲田

■2026年3月竣工■早稲田駅徒歩6分■総戸数31戸■東京都新宿区西早稲田1-4-14■地上12階 RC造■フリーレント1ヶ月

おすすめ画像4

ルフォンプログレ北新宿

■2026年3月竣工■大久保駅徒歩3分■総戸数104戸■東京都新宿区北新宿1-8-2■地上14階 RC造■フリーレント1ヶ月

おすすめ画像5

ジオエント早稲田

■2026年2月竣工■江戸川橋駅徒歩8分■総戸数28戸■東京都新宿区早稲田鶴巻町562-3■地上8階 RC造■フリーレント1ヶ月

おすすめ画像6

グローリオシェルト新宿山吹町

■2025年11月竣工■江戸川橋駅徒歩5分■総戸数14戸■東京都新宿区山吹町353-24■地上6階 RC造

おすすめ画像7

エスレジデンス新宿早稲田アヴェリス

■2025年10月竣工■早稲田駅徒歩8分■総戸数53戸■東京都新宿区早稲田鶴巻町569■地上12階 RC造

おすすめ画像8

ザ・グラヴィティ新宿

■2025年10月竣工■西武新宿駅徒歩3分■総戸数67戸■東京都新宿区百人町1-1-7地上5階 RC造■フリーレント1ヶ月

おすすめ画像9

コンフォリア・リヴ北新宿

■2025年2月竣工■東中野駅徒歩9分■総戸数48戸■東京都新宿区北新宿4-13-10■地上13階 RC造

おすすめ画像10

アーバネックス早稲田

■2025年9月竣工■早稲田駅徒歩2分■総戸数38戸■東京都新宿区早稲田町69-1■地上10階 RC造

おすすめ画像11

アクシルコート早稲田

■2025年4月竣工■江戸川橋駅徒歩6分■総戸数55戸■東京都新宿区早稲田鶴巻町566■地上13階 RC造

おすすめ画像12

リビオメゾン新宿ウエスト

■2025年7月竣工■新宿西口駅徒歩4分■総戸数27戸■東京都新宿区西新宿7-14-10■地上14階 RC造

おすすめ画像13

ブルックサイドレジデンス木場

■2026年3月竣工■木場駅徒歩9分■総戸数563戸■東京都江東区塩浜2-8-1■地上18階 RC造

おすすめ画像14

ロイヤルパークス有明

■2026年1月竣工■有明テニスの森駅9分■総戸数642戸■東京都江東区有明1-4-43■地上15階 RC造■フリーレント2ヶ月

おすすめ画像15

ウエリスアーバン水天宮前

■2023年3月竣工■水天宮前駅徒歩9分■総戸数431戸■東京都江東区佐賀2-8-4■地上13階 RC造■2026年3月末迄フリーレント

おすすめ画像16

コンフォリア新宿イーストサイドタワー

■2011年12月竣工■東新宿駅徒歩2分■総戸数761戸■東京都新宿区新宿6-27-29■地上32階 地下1階 RC造■フリーレント1ヶ月

pagetop