グランデュオ西荻窪2|仲介料無料

グランデュオ西荻窪2
築3年以内還元率UP

▶ 契約金のお得さ圧倒的。比べてみれば、REIT FIND

  • 礼金0
  • 仲介手数料無料
  • ペット可

契約金 初期費用【特別価格】
竣 工 2024年3月
最寄駅 西荻窪駅徒歩10分
総戸数 13戸

住 所 東京都杉並区西荻北2-37-33
概 要 地上3階 地下1階 RC造
▶ REIT FIND特典でお得にご契約くださいませ。
1.都内最安値での契約を、即時に提示致します。
2.初期費用のお見積りを、即時に案内致します。
3.内覧・リモート内覧を、即時に提案致します。


■物件名フリガナ
グランデュオニシオギクボⅡ
GranDuo 西荻窪Ⅱ

■近隣周辺施設情報
ライフ西荻窪店まで約350m
まいばすけっと西荻北5丁目店まで約500m
クイーンズ伊勢丹杉並桃井店まで約500m
サミットストア西荻窪駅南店まで約800m
ダイソー西荻南店まで約750m
中里医院まで約130m
荻窪病院まで約1100m
警視庁荻窪警察署まで約700m
西荻窪郵便局まで約450m
杉並区立西荻図書館まで約270m
杉並区立関根文化公園まで約220m
杉並区立桃井第一小学校まで約850m
東京女子大学まで約1400m

今月申し込みの方限定キャンペーン

礼金0仲介手数料無料キャンペーン中です。
1.都内最安値での契約は、是非お任せください。
2.初期費用のお見積りは、是非お任せください。
3.内覧・リモート内覧は、是非お任せください。
※諸条件・詳細等は是非お問合せ下さいませ。

空室一覧
チェックした物件はまとめてお問い合わせ、検討中リストに追加できます。

物件概要

  • LINE
物件名 グランデュオ西荻窪2
所在地 東京都杉並区西荻北2-37-33
最寄駅 JR中央・総武線西荻窪駅」徒歩10分
JR中央線(快速)西荻窪駅」徒歩10分
JR中央・総武線荻窪駅」徒歩23分
JR中央線(快速)荻窪駅」徒歩23分
西武新宿線上井草駅」徒歩29分
物件特徴 REIT系ブランドマンション、デザイナーズ、ペット可
構造規模 地上3階 地下1階 RC造
総戸数 13戸 築年月 2024年3月
賃料 230,000円 - 265,000円 管理費 15,000円 - 15,000円
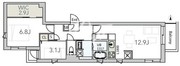
間取り 2LDK - 2LDK 専有面積 47.70m2 - 56.92m2
問合番号 5787

■駐車場   ―
■バイク置場 ―
■駐輪場   13台
―――――――
■設 計   株式会社安達建築設計事務所
■施 工   ―
■管理形式  巡回管理
―――――――
■保 険   借家人賠償付き火災保険要加入
■ペット   相談(敷1積増)
■楽 器   不可
■鍵交換代  初回契約時24,200円(税込)
■保証会社  利用必須(※大手法人契約の場合、例外あり)
■保証会社  初回保証委託料/月額賃料等の20%~100%
■保証会社  年間継続料/0.8万円~1.0万円 or
■保証会社  月額保証料賃料等の1%~2%
―――――――
■間取り
□1K~2LDK(29.73㎡~65.92㎡)

■① 駐車場・バイク置場・駐輪場の詳細は、是非お問合せ下さい。
■② 内覧のご希望時は、物件現地待ち合わせ対応をしております。
■③ 物件写真の量と質、情報更新鮮度に特化して運営しています。

建物設備

建物詳細を見る
  • エレベーター
  • オートロック
  • 宅配ボックス
  • TVドアホン
  • 駐輪場
  • 敷地内ゴミ置き場
  • 24時間管理
  • 防犯カメラ
  • BS
  • CS
  • CATV
  • インターネット無料

※建物周辺情報はGoogleMapを使用しており、物件表示位置が実際の位置と多少異なる場合がございます。

掲載情報について

  • ※掲載情報が現況と異なる場合は、現況を優先させていただきます。
  • ※各種キャンペーン情報は予告なく変更・終了する場合がございます。事前に必ず募集条件をご確認くださいませ。
  • ※各部屋毎に敷金・礼金・キャンペーンの内容が異なる場合がございます。詳細は各部屋ページをご確認くださいませ。
  • ※分譲マンションの場合、各所有者様毎に室内の内装・設備が変更されている場合がございます。
  • ※分譲マンションの場合、建物自体が許可していても各所有者様毎に室内のペット飼育・SOHO 利用について禁止の場合がございます。
  • ※各詳細については、メールまたはお電話にて、お気軽にお問い合わせくださいませ。
  • 還元キャンペーンバナー
  • ランキングページバナー
「中小企業からニッポンを元気にプロジェクト」公式アンバサダー前田敦子

グランデュオ西荻窪2の
お問い合わせはこちらから

お問い合わせ

0120-139-692

電話受付 24時間 年中無休

内覧予約・空室確認・初期費用概算等
是非、お気軽にお問い合わせくださいませ。

〒103-0012 東京都中央区日本橋堀留町 1-8-11 日本橋人形町スクエア 3階
最寄駅:日比谷線・浅草線「人形町駅」徒歩3分サイト運営会社

ご成約済みの部屋一覧

所在階 間取り 面積 賃料 共益費/管理費 敷金/礼金 仲介手数料 詳細
B1F 1K 29.73m2 ---円 ---円 ---ヶ月/---ヶ月 ---ヶ月 詳細
B1F 1SLDK 40.32m2 ---円 ---円 ---ヶ月/---ヶ月 ---ヶ月 詳細
B1F 2LDK 49.92m2 ---円 ---円 ---ヶ月/---ヶ月 ---ヶ月 詳細
1F 1SLDK 40.32m2 ---円 ---円 ---ヶ月/---ヶ月 ---ヶ月 詳細
1F 2LDK 49.92m2 ---円 ---円 ---ヶ月/---ヶ月 ---ヶ月 詳細
1F 2LDK 65.92m2 ---円 ---円 ---ヶ月/---ヶ月 ---ヶ月 詳細
2F 1LDK 36.00m2 ---円 ---円 ---ヶ月/---ヶ月 ---ヶ月 詳細
2F 1SLDK 40.32m2 ---円 ---円 ---ヶ月/---ヶ月 ---ヶ月 詳細
2F 2LDK 49.92m2 ---円 ---円 ---ヶ月/---ヶ月 ---ヶ月 詳細
2F 1LDK 37.42m2 ---円 ---円 ---ヶ月/---ヶ月 ---ヶ月 詳細
3F 2LDK 60.54m2 ---円 ---円 ---ヶ月/---ヶ月 ---ヶ月 詳細

表示

おすすめ物件紹介

おすすめ画像1

プレミアムキューブ東高円寺DEUX

■2026年2月竣工■東高円寺駅徒歩7分■総戸数44戸■東京都杉並区和田3-1-19■地上4階 RC造

おすすめ画像2

テラ蚕糸の森

■2026年2月竣工■東高円寺駅徒歩1分■総戸数99戸■東京都杉並区和田3-56-11■地上11階 RC造

おすすめ画像3

フォンス・ルーキス イズミ

■2025年10月竣工■南町駅徒歩10分■総戸数14戸■東京都杉並区和泉1-34-21■地上5階 RC造

おすすめ画像4

ネオアーバンレジデンス方南町

■2025年10月竣工■方南町駅徒歩4分■総戸数16戸■東京都杉並区方南2-20-10■地上4階 RC造■フリーレント1ヶ月

おすすめ画像5

イプセ東高円寺

■2025年3月竣工■東高円寺駅徒歩7分■総戸数38戸■東京都杉並区和田1-71-18■地上5階 RC造

おすすめ画像6

FAM ogikubo

■2024年12月竣工■荻窪駅徒歩8分■総戸数20戸■東京都杉並区清水1-15-4■地上5階 RC造

おすすめ画像7

アジールコート方南町テラス

■2025年1月竣工■方南町駅徒歩12分■総戸数36戸■東京都杉並区堀ノ内2-18-18■地上5階 RC造

おすすめ画像8

ウェルスクエア中野富士見町

■2024年12月竣工■中野富士見町駅徒歩5分■総戸数33戸■東京都杉並区和田1-6-1■地上5階 RC造

おすすめ画像9

アーバンパーク方南町2

■2024年8月竣工■方南町駅徒歩7分■総戸数44戸■東京都杉並区堀ノ内2-11-26■地上5階 RC造

おすすめ画像10

パークグレイス荻窪

■2025年1月竣工■荻窪駅徒歩8分■総戸数40戸■東京都杉並区荻窪2-43-25■地上3階 RC造

おすすめ画像11

テラス杉並方南町

■2024年10月竣工■方南町駅徒歩6分■総戸数85戸■東京都杉並区堀ノ内2-11-6■地上5階 RC造■フリーレント1ヶ月

おすすめ画像12

ブルックサイドレジデンス木場

■2026年3月竣工■木場駅徒歩9分■総戸数563戸■東京都江東区塩浜2-8-1■地上18階 RC造

おすすめ画像13

ロイヤルパークス有明

■2026年1月竣工■有明テニスの森駅9分■総戸数642戸■東京都江東区有明1-4-43■地上15階 RC造■フリーレント2ヶ月

おすすめ画像14

ウエリスアーバン水天宮前

■2023年3月竣工■水天宮前駅徒歩9分■総戸数431戸■東京都江東区佐賀2-8-4■地上13階 RC造■2026年3月末迄フリーレント

おすすめ画像15

コンフォリア新宿イーストサイドタワー

■2011年12月竣工■東新宿駅徒歩2分■総戸数761戸■東京都新宿区新宿6-27-29■地上32階 地下1階 RC造■フリーレント1ヶ月

pagetop