クレアトーレ日暮里

クレアトーレ日暮里
築3年以内還元率UP

▶ 契約金のお得さ圧倒的。比べてみれば、REIT FIND

契約金 初期費用【特別価格】
竣 工 2024年5月
最寄駅 鶯谷駅徒歩10分
総戸数 16戸

住 所 東京都荒川区東日暮里4-10-10
概 要 地上6階 RC造
▶ REIT FIND特典でお得にご契約くださいませ。
1.都内最安値での契約を、即時に提示致します。
2.初期費用のお見積りを、即時に案内致します。
3.内覧・リモート内覧を、即時に提案致します。


■物件名フリガナ
クレアトーレニッポリ

■近隣周辺施設情報
ローソン東日暮里3丁目店まで約190m
いなげや荒川東日暮里店まで約450m
ライフ東日暮里店まで約500m
ドラッグセイムス東日暮里店まで約350m
Hanamasa Plus+根岸店まで約700m
荒川区役所まで約1200m
上野恩賜公園まで約1500m
日暮里公園まで約350m
東京都立竹台高等学校まで約600m
東日暮里二郵便局まで約450m
台東根岸二郵便局まで約600m
みずほ銀行日暮里駅前出張所まで約1100m
三菱UFJ銀行日暮里支店日暮里尾久橋通り出張所まで約1000m

今月申し込みの方限定キャンペーン

キャンペーン中です。
1.都内最安値での契約は、是非お任せください。
2.初期費用のお見積りは、是非お任せください。
3.内覧・リモート内覧は、是非お任せください。
※諸条件・詳細等は是非お問合せ下さいませ。

空室一覧
チェックした物件はまとめてお問い合わせ、検討中リストに追加できます。

現在公開中の部屋情報がありません。
最新の情報はこちらからお問い合わせください。

物件概要

  • LINE
物件名 クレアトーレ日暮里
所在地 東京都荒川区東日暮里4-10-10
最寄駅 JR山手線鶯谷駅」徒歩10分
JR京浜東北線鶯谷駅」徒歩10分
JR山手線日暮里駅」徒歩11分
JR常磐線(上野~取手)日暮里駅」徒歩11分
日暮里・舎人ライナー日暮里駅」徒歩11分
物件特徴 REIT系ブランドマンション、デザイナーズ
構造規模 地上6階 RC造
総戸数 16戸 築年月 2024年5月
賃料 - 管理費 -
間取り - 専有面積 -
問合番号 5899

■駐車場   ―
■バイク置場 ―
■駐輪場   有
―――――――
■設 計   三和建設株式会社東京本店一級建築士事務所
■施 工   三和建設株式会社
■管理形式  巡回管理
―――――――
■保 険   借家人賠償付き火災保険要加入
■ペット   不可
■楽 器   不可
■鍵交換代  不要 
■保証会社  利用必須(※大手法人契約の場合、例外あり)
■保証会社  初回保証委託料/月額賃料等の20%~100%
■保証会社  年間継続料/0.8万円~1.0万円 or
■保証会社  月額保証料賃料等の1%~2%
―――――――
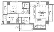
■間取り
□1R~3LDK(31.04㎡~76.56㎡)

■① 駐車場・バイク置場・駐輪場の詳細は、是非お問合せ下さい。
■② 内覧のご希望時は、物件現地待ち合わせ対応をしております。
■③ 物件写真の量と質、情報更新鮮度に特化して運営しています。

建物設備

建物詳細を見る
  • エレベーター
  • オートロック
  • 宅配ボックス
  • TVドアホン
  • 駐輪場
  • 敷地内ゴミ置き場
  • 内廊下
  • 24時間管理
  • 防犯カメラ
  • BS
  • CS
  • CATV
  • インターネット無料

※建物周辺情報はGoogleMapを使用しており、物件表示位置が実際の位置と多少異なる場合がございます。

掲載情報について

  • ※掲載情報が現況と異なる場合は、現況を優先させていただきます。
  • ※各種キャンペーン情報は予告なく変更・終了する場合がございます。事前に必ず募集条件をご確認くださいませ。
  • ※各部屋毎に敷金・礼金・キャンペーンの内容が異なる場合がございます。詳細は各部屋ページをご確認くださいませ。
  • ※分譲マンションの場合、各所有者様毎に室内の内装・設備が変更されている場合がございます。
  • ※分譲マンションの場合、建物自体が許可していても各所有者様毎に室内のペット飼育・SOHO 利用について禁止の場合がございます。
  • ※各詳細については、メールまたはお電話にて、お気軽にお問い合わせくださいませ。
  • 還元キャンペーンバナー
  • ランキングページバナー
「中小企業からニッポンを元気にプロジェクト」公式アンバサダー前田敦子

クレアトーレ日暮里の
お問い合わせはこちらから

お問い合わせ

0120-139-692

電話受付 24時間 年中無休

内覧予約・空室確認・初期費用概算等
是非、お気軽にお問い合わせくださいませ。

〒103-0012 東京都中央区日本橋堀留町 1-8-11 日本橋人形町スクエア 3階
最寄駅:日比谷線・浅草線「人形町駅」徒歩3分サイト運営会社

ご成約済みの部屋一覧

所在階 間取り 面積 賃料 共益費/管理費 敷金/礼金 仲介手数料 詳細
1F 1R 37.04m2 ---円 ---円 ---ヶ月/---ヶ月 ---ヶ月 詳細
1F 1R 31.82m2 ---円 ---円 ---ヶ月/---ヶ月 ---ヶ月 詳細
2F 1R 37.04m2 ---円 ---円 ---ヶ月/---ヶ月 ---ヶ月 詳細
2F 1R 31.82m2 ---円 ---円 ---ヶ月/---ヶ月 ---ヶ月 詳細
2F 1R 31.82m2 ---円 ---円 ---ヶ月/---ヶ月 ---ヶ月 詳細
2F 1R 31.82m2 ---円 ---円 ---ヶ月/---ヶ月 ---ヶ月 詳細
3F 1R 37.04m2 ---円 ---円 ---ヶ月/---ヶ月 ---ヶ月 詳細
3F 1R 31.82m2 ---円 ---円 ---ヶ月/---ヶ月 ---ヶ月 詳細
3F 1R 31.82m2 ---円 ---円 ---ヶ月/---ヶ月 ---ヶ月 詳細
3F 1LDK 44.63m2 ---円 ---円 ---ヶ月/---ヶ月 ---ヶ月 詳細
4F 2LDK 69.04m2 ---円 ---円 ---ヶ月/---ヶ月 ---ヶ月 詳細
4F 3LDK 76.56m2 ---円 ---円 ---ヶ月/---ヶ月 ---ヶ月 詳細
5F 2LDK 69.04m2 ---円 ---円 ---ヶ月/---ヶ月 ---ヶ月 詳細
5F 3LDK 76.56m2 ---円 ---円 ---ヶ月/---ヶ月 ---ヶ月 詳細
6F 2LDK 69.04m2 ---円 ---円 ---ヶ月/---ヶ月 ---ヶ月 詳細
6F 3LDK 76.56m2 ---円 ---円 ---ヶ月/---ヶ月 ---ヶ月 詳細

表示

おすすめ物件紹介

おすすめ画像1

リテラス三ノ輪ウエスト

■2025年12月竣工■三ノ輪駅徒歩3分■総戸数40戸■東京都荒川区東日暮里1-25-4■地上8階 RC造■フリーレント1ヶ月

おすすめ画像2

アルコバレーノ南千住

■2025年9月竣工■南千住駅徒歩5分■総戸数104戸■東京都荒川区南千住2-26-8■地上15階 RC造■フリーレント1ヶ月

おすすめ画像3

アルファレジデンシア南千住

■2025年10月竣工■三ノ輪橋駅徒歩5分■総戸数119戸■東京都荒川区南千住1-59-7■地上15階 RC造

おすすめ画像4

グランカーサ尾久

■2025年10月竣工■荒川車庫前駅徒歩2分■総戸数40戸■東京都荒川区西尾久7-49-1■地上7階 RC造

おすすめ画像5

オアーゼ日暮里レジデンス

■2026年1月竣工■日暮里駅徒歩6分■総戸数304戸■東京都荒川区西日暮里2-33-8■地上13階 RC造

おすすめ画像6

クラリティア西日暮里

■2025年10月竣工■西日暮里駅徒歩6分■総戸数28戸■東京都荒川区西日暮里6-53-12■地上15階 RC造■フリーレント1ヶ月

おすすめ画像7

アーバンパーク日暮里2

■2025年9月竣工■日暮里駅徒歩7分■総戸数30戸■東京都荒川区東日暮里5-23-10■地上11階 RC造■フリーレント1ヶ月

おすすめ画像8

アトリオフラッツ日暮里

■2025年7月竣工■鶯谷駅徒歩6分■総戸数13戸■東京都荒川区東日暮里4-35-6■地上5階 RC造■フリーレント2ヶ月

おすすめ画像9

リテラス西日暮里

■2024年12月竣工■西日暮里駅徒歩2分■総戸数49戸■東京都荒川区西日暮里5-18-10■地上14階 RC造■フリーレント2ヶ月

おすすめ画像10

BPRレジデンス東日暮里

■2025年7月竣工■三ノ輪駅徒歩9分■総戸数36戸■東京都荒川区東日暮里2-27-11■地上10階 RC造■フリーレント1ヶ月

おすすめ画像11

グランカーサ町屋2

■2025年6月竣工■町屋駅前徒歩3分■総戸数41戸■東京都荒川区町屋1-4-3■地上11階 RC造

おすすめ画像12

アジールコート町屋

■2025年5月竣工■町屋駅徒歩3分■総戸数48戸■東京都荒川区町屋1-18-2■地上15階 RC造■フリーレント2ヶ月

おすすめ画像13

ブルックサイドレジデンス木場

■2026年3月竣工■木場駅徒歩9分■総戸数563戸■東京都江東区塩浜2-8-1■地上18階 RC造

おすすめ画像14

ロイヤルパークス有明

■2026年1月竣工■有明テニスの森駅9分■総戸数642戸■東京都江東区有明1-4-43■地上15階 RC造■フリーレント1ヶ月

おすすめ画像15

ウエリスアーバン水天宮前

■2023年3月竣工■水天宮前駅徒歩9分■総戸数431戸■東京都江東区佐賀2-8-4■地上13階 RC造■2026年3月末迄フリーレント

おすすめ画像16

コンフォリア新宿イーストサイドタワー

■2011年12月竣工■東新宿駅徒歩2分■総戸数761戸■東京都新宿区新宿6-27-29■地上32階 地下1階 RC造■フリーレント1ヶ月

最近見た物件

すべての最近見た物件を見る
pagetop