シーフォルム西巣鴨 3階 成約済み物件 6410-309

シーフォルム西巣鴨 成約済み物件 (6410-309)

▶ 契約金のお得さ圧倒的。比べてみれば、REIT FIND

賃料 ---
共益費/管理費 ---円
敷金/礼金 ---ヶ月/---ヶ月
仲介/FR ---ヶ月/---ヶ月
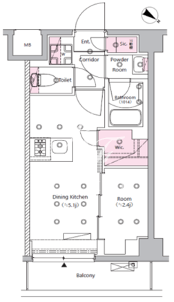
所在階/向き 3階/北
間取/面積 1DK+WIC+SIC/25.63m2
入居日 ---
情報更新日 2025年3月6日

部屋設備

建物詳細を見る
  • 独立洗面台
  • 追い焚き
  • シャワートイレ
  • 浴室乾燥機
  • クローゼット
  • システムキッチン
  • カウンターキッチン
  • ガスコンロ
  • エアコン
  • シューズインクローゼット
  • ウォークインクローゼット
  • フローリング
  • 専用庭

空室一覧
チェックした物件はまとめてお問い合わせ、検討中リストに追加できます。

現在公開中の部屋情報がありません。
最新の情報はこちらからお問い合わせください。

物件概要

建物詳細を見る
物件名 シーフォルム西巣鴨
所在地 東京都北区滝野川3-43-12
最寄駅 都営三田線西巣鴨駅」徒歩7分
都営三田線新板橋駅」徒歩9分
JR埼京線板橋駅」徒歩12分
都電荒川線西ヶ原四丁目駅」徒歩12分
都電荒川線新庚申塚駅」徒歩13分
物件特徴 REIT系ブランドマンション、デザイナーズ、ペット可
構造規模 地上5階 RC造
総戸数 45戸 築年月 2024年12月
賃料 --- 管理費 ---円
敷金/礼金 ---ヶ月/---ヶ月 仲介手数料 ---ヶ月
フリーレント ---ヶ月 更新料 ---ヶ月
所在階/向き 3階/北 間取り 1DK+WIC+SIC
専有面積 25.63m2
部屋詳細 DK5.1帖/洋室2.4帖
契約形態 普通賃貸借契約 保証会社 利用必須
ペット飼育
SOHO・事務所 不可
入居日

---

取引形態 媒介
問合番号 6410-309 情報更新日 2025年3月6日
キャンペーン情報 キャンペーン詳細内容やお見積り等は、即日ご案内をさせて頂きます
※キャンペーン適用には、制約条件・違約金等はございません

建物設備

建物詳細を見る
  • エレベーター
  • オートロック
  • 宅配ボックス
  • TVドアホン
  • ペット足洗い場
  • 駐車場
  • 駐輪場
  • 敷地内ゴミ置き場
  • 内廊下
  • 24時間管理
  • 防犯カメラ
  • BS
  • CS
  • CATV
  • インターネット無料

※建物周辺情報はGoogleMapを使用しており、物件の表示位置が実際の場所と多少異なる場合があります。

掲載情報について

  • ※掲載情報が現況と異なる場合は、現況を優先させていただきます。
  • ※各種キャンペーン情報は予告なく変更・終了する場合がございます。事前に必ず募集条件をご確認くださいませ。
  • ※各部屋毎に敷金・礼金・キャンペーンの内容が異なる場合がございます。詳細は各部屋ページをご確認くださいませ。
  • ※分譲マンションの場合、各所有者様毎に室内の内装・設備が変更されている場合がございます。
  • ※分譲マンションの場合、建物自体が許可していても各所有者様毎に室内のペット飼育・SOHO 利用について禁止の場合がございます。
  • ※各詳細については、メールまたはお電話にて、お気軽にお問い合わせくださいませ。
  • 還元キャンペーンバナー
  • ランキングページバナー
「中小企業からニッポンを元気にプロジェクト」公式アンバサダー前田敦子

シーフォルム西巣鴨の
お問い合わせはこちらから

お問い合わせ

0120-139-692

電話受付 24時間 年中無休

内覧予約・空室確認・初期費用概算等
是非、お気軽にお問い合わせくださいませ。

〒103-0012 東京都中央区日本橋堀留町 1-8-11 日本橋人形町スクエア 3階
最寄駅:日比谷線・浅草線「人形町駅」徒歩3分サイト運営会社

おすすめ物件紹介

おすすめ画像1

ロイヤルパークス赤羽ノース

■2025年9月旬竣工■志茂駅徒歩8分■総戸数474戸■東京都北区神谷3-15-5■地上10階 RC造■フリーレント2ヶ月

おすすめ画像2

ネオアーバンレジデンス駒込

■2025年7月竣工■駒込駅徒歩6分■総戸数23戸■東京都北区西ケ原1-6-6■地上12階 RC造■フリーレント1ヶ月

おすすめ画像3

アリビス東京尾久

■2025年7月竣工■尾久駅徒歩1分■総戸数55戸■東京都北区昭和町2-7-1■地上14階 RC造

おすすめ画像4

テラス駒込サウス

■2025年6月竣工■駒込駅徒歩4分■総戸数33戸■東京都北区中里1-1-8■地上12階 RC造■フリーレント1ヶ月

おすすめ画像5

ロイヤルパークス赤羽サウス

■2025年2月竣工■志茂駅徒歩10分■総戸数46戸■東京都北区神谷3-22-1■地上7階 RC造■フリーレント2ヶ月

おすすめ画像6

シーズンフラッツ東十条

■2025年1月竣工■東十条駅徒歩3分■総戸数39戸■東京都北区東十条2-15-11■地上14階 RC造■フリーレント2ヶ月

おすすめ画像7

グランパセオ田端2

■2024年12月竣工■赤土小学校前駅徒歩7分■総戸数54戸■東京都北区田端新町3-6-11■地上12階 RC造■フリーレント2ヶ月

おすすめ画像8

サンセゾンI

■1998年2月竣工■志茂駅徒歩3分■総戸数74戸■東京都北区志茂4-39-5■地上5階 地下1階 RC造■フリーレント1ヶ月

おすすめ画像9

RJRプレシア東十条ガーデン

■2025年2月竣工■東十条駅徒歩4分■総戸数279戸■東京都北区東十条3-3-1■地上14階 RC造

おすすめ画像10

コンシェリア駒込ヒルトップスクエア

■2024年8月竣工■駒込駅徒歩8分■総戸数28戸■東京都北区中里3-11-12■地上7階 RC造

おすすめ画像11

オープンブルーム王子

■2024年8月竣工■梶原駅徒歩4分■総戸数41戸■東京都北区堀船2-9-16■地上10階 RC造■フリーレント1ヶ月

おすすめ画像12

シーズンフラッツ中十条

■2024年7月竣工■東十条駅徒歩7分■総戸数26戸■東京都北区中十条1-12-9■地上8階 RC造■フリーレント2ヶ月

おすすめ画像13

ロイヤルパークス品川

■2025年1月竣工■品川駅徒歩11分■総戸数458戸■東京都港区港南3-5-21■地上28階 地下1階 RC造■フリーレント2.5ヶ月

おすすめ画像14

コンフォリア芝浦MOKU

■2024年10月竣工■田町駅徒歩9分■総戸数64戸■東京都港区芝浦4-11-16■地上9階 RC造

おすすめ画像15

ウエリスアーバン水天宮前

■2023年3月竣工■水天宮前駅徒歩9分■総戸数431戸■東京都江東区佐賀2-8-4■地上13階 RC造

おすすめ画像16

コンフォリア新宿イーストサイドタワー

■2011年12月竣工■東新宿駅徒歩2分■総戸数761戸■東京都新宿区新宿6-27-29■地上32階 地下1階 RC造■フリーレント1ヶ月

最近見た物件

すべての最近見た物件を見る
pagetop