内覧予約・空室確認・初期費用概算等
								是非、お気軽にお問い合わせくださいませ。
〒103-0012 東京都中央区日本橋堀留町 1-8-11 日本橋人形町スクエア 3階
								最寄駅:日比谷線・浅草線「人形町駅」徒歩3分サイト運営会社
							
| 賃料 | ---円 | 
|---|---|
| 共益費/管理費 | ---円 | 
| 敷金/礼金 | ---ヶ月/---ヶ月 | 
| 仲介/FR | ---ヶ月/---ヶ月 | 
| 所在階/向き | 3階/東 | 
| 間取/面積 | 1DK/28.11m2 | 
| 入居日 | --- | 
| 情報更新日 | 2025年3月17日 | 
■101/401号室対象
■実質フリーレント3ヶ月/相談可
▶ REIT FIND特典でお得にご契約くださいませ。
1.都内最安値での契約を、即時に提示致します。
2.初期費用のお見積りを、即時に案内致します。
3.内覧・リモート内覧を、即時に提案致します。
 
       
       
       
       
       
       
       
       
      | 物件名 | セジョリ東陽町2 | ||
|---|---|---|---|
| 所在地 | 東京都江東区千石2-3-33 | ||
| 最寄駅 | 東京メトロ東西線「東陽町駅」徒歩11分 都営新宿線「住吉駅」徒歩15分 東京メトロ東西線「木場駅」徒歩19分 東京メトロ半蔵門線「清澄白河駅」徒歩26分 都営大江戸線「門前仲町駅」徒歩30分 | ||
| 物件特徴 | デザイナーズ、分譲賃貸、ペット可 | ||
| 構造規模 | 地上4階 RC造 | ||
| 総戸数 | 39戸 | 築年月 | 2025年2月 | 
| 賃料 | ---円 | 管理費 | ---円 | 
| 敷金/礼金 | ---ヶ月/---ヶ月 | 仲介手数料 | ---ヶ月 | 
| フリーレント | ---ヶ月 | 更新料 | ---ヶ月 | 
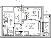
| 所在階/向き | 3階/東 | 間取り | 1DK | 
| 専有面積 | 28.11m2 | ||
| 部屋詳細 | DK7.4帖/洋室4.3帖 | ||
| 契約形態 | 普通賃貸借契約 | 保証会社 | 利用必須 | 
| ペット飼育 | 可 敷1積増 | SOHO・事務所 | 不可 | 
| 入居日 | --- | 取引形態 | 媒介 | 
| 問合番号 | 6909-311 | 情報更新日 | 2025年3月17日 | 
| キャンペーン情報 | キャンペーン詳細内容やお見積り等は、即日ご案内をさせて頂きます | ||
| ※キャンペーン適用には、制約条件・違約金等はございません | |||
 
       
       
       
       
       
       
       
       
       
       
       
       
       
       
      ※建物周辺情報はGoogleMapを使用しており、物件の表示位置が実際の場所と多少異なる場合があります。
 
				■2025年9月竣工■菊川駅徒歩4分■総戸数36戸■東京都江東区森下4-10-5■地上10階 RC造
 
				■2025年10月竣工■亀戸水神駅徒歩7分■総戸数22戸■東京都江東区亀戸4-43-4■地上8階 RC造
 
				■2025年11月竣工■大島駅徒歩7分■総戸数71戸■東京都江東区大島8-24-1■地上6階 RC造
 
				■2025年9月竣工■亀戸駅徒歩5分■総戸数30戸■東京都江東区亀戸2-35-10■地上11階 RC造
 
				■2025年10月竣工■木場駅徒歩6分■総戸数129戸■東京都江東区木場6-15-6■地上11階 RC造
 
				■2025年7月竣工■押上駅徒歩13分■総戸数32戸■東京都江東区亀戸3-19-2■地上6階 RC造
 
				■2025年7月竣工■亀戸駅徒歩6分■総戸数34戸■東京都江東区亀戸6-43-4■地上5階 RC造
 
				■2025年7月竣工■森下駅徒歩3分■総戸数34戸■東京都江東区森下2-31-11■地上8階 RC造
 
				■2025年8月竣工■森下駅徒歩5分■総戸数37戸■東京都江東区森下3-6-7■地上10階 RC造
 
				■2025年5月竣工■清澄白河駅徒歩6分■総戸数15戸■東京都江東区平野1-2-8■地上4階 RC造■フリーレント1ヶ月
 
				■2025年8月■大島駅徒歩5分■総戸数32戸■東京都江東区大島6-3-12■地上9階 RC造
 
				■2025年5月竣工■門前仲町駅徒歩5分■総戸数26戸■東京都江東区深川1-5-12■地上10階 RC造
 
				■2025年1月竣工■品川駅徒歩11分■総戸数458戸■東京都港区港南3-5-21■地上28階 地下1階 RC造
 
				■2024年10月竣工■田町駅徒歩9分■総戸数64戸■東京都港区芝浦4-11-16■地上9階 RC造
 
				■2023年3月竣工■水天宮前駅徒歩9分■総戸数431戸■東京都江東区佐賀2-8-4■地上13階 RC造
 
				■2011年12月竣工■東新宿駅徒歩2分■総戸数761戸■東京都新宿区新宿6-27-29■地上32階 地下1階 RC造■フリーレント1ヶ月