ラグゼナ平井ノース 303|仲介料無料の賃貸情報

ラグゼナ平井ノース 303
新 築 還元率UP

▶ 契約金のお得さ圧倒的。比べてみれば、REIT FIND

  • 礼金0
  • 仲介手数料無料
  • フリーレント
  • ペット可
賃料 205,000
共益費/管理費 10,000円
敷金/礼金 0ヶ月/0ヶ月
仲介/FR 0ヶ月/4ヶ月
所在階/向き 3階/北西
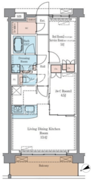
間取/面積 2LDK+SIC/53.72m2
入居日 即入居可
情報更新日 2025年10月11日

部屋設備

建物詳細を見る
  • 独立洗面台
  • 追い焚き
  • シャワートイレ
  • 浴室乾燥機
  • クローゼット
  • システムキッチン
  • カウンターキッチン
  • ガスコンロ
  • エアコン
  • シューズインクローゼット
  • フローリング

空室一覧
チェックした物件はまとめてお問い合わせ、検討中リストに追加できます。

その他13件を非表示

物件概要

建物詳細を見る
  • LINE
物件名 ラグゼナ平井ノース
所在地 東京都墨田区立花6-21-2
最寄駅 東武亀戸線東あずま駅」徒歩11分
JR中央・総武線平井駅」徒歩12分
東武亀戸線小村井駅」徒歩15分
東武亀戸線亀戸水神駅」徒歩22分
京成押上線京成曳舟駅」徒歩29分
物件特徴 REIT系ブランドマンション、デザイナーズ、ペット可
構造規模 地上5階 RC造
総戸数 53戸 築年月 2025年9月
賃料 205,000 管理費 10,000円
敷金/礼金 0ヶ月/0ヶ月 仲介手数料 0ヶ月
フリーレント 4ヶ月 更新料 1ヶ月
所在階/向き 3階/北西 間取り 2LDK+SIC
専有面積 53.72m2
部屋詳細 LDK13.4帖/洋室5帖/洋室4.5帖
契約形態 普通賃貸借契約 保証会社 利用必須
ペット飼育
敷1積増
SOHO・事務所 不可
入居日

即入居可

取引形態 媒介
問合番号 7003-303 情報更新日 2025年10月11日
キャンペーン情報 キャンペーン詳細内容やお見積り等は、即日ご案内をさせて頂きます
※キャンペーン適用には、制約条件・違約金等はございません
※次回更新予定日は、上記の情報更新日から2週間後になります

建物設備

建物詳細を見る
  • エレベーター
  • オートロック
  • 宅配ボックス
  • TVドアホン
  • 駐車場
  • バイク置き場
  • 駐輪場
  • 敷地内ゴミ置き場
  • 24時間管理
  • 防犯カメラ
  • BS
  • CS
  • CATV
  • インターネット無料

※建物周辺情報はGoogleMapを使用しており、物件の表示位置が実際の場所と多少異なる場合があります。

掲載情報について

  • ※掲載情報が現況と異なる場合は、現況を優先させていただきます。
  • ※各種キャンペーン情報は予告なく変更・終了する場合がございます。事前に必ず募集条件をご確認くださいませ。
  • ※各部屋毎に敷金・礼金・キャンペーンの内容が異なる場合がございます。詳細は各部屋ページをご確認くださいませ。
  • ※分譲マンションの場合、各所有者様毎に室内の内装・設備が変更されている場合がございます。
  • ※分譲マンションの場合、建物自体が許可していても各所有者様毎に室内のペット飼育・SOHO 利用について禁止の場合がございます。
  • ※各詳細については、メールまたはお電話にて、お気軽にお問い合わせくださいませ。
  • 還元キャンペーンバナー
  • ランキングページバナー
「中小企業からニッポンを元気にプロジェクト」公式アンバサダー前田敦子

ラグゼナ平井ノース303の
お問い合わせはこちらから

お問い合わせ

0120-139-692

電話受付 24時間 年中無休

内覧予約・空室確認・初期費用概算等
是非、お気軽にお問い合わせくださいませ。

〒103-0012 東京都中央区日本橋堀留町 1-8-11 日本橋人形町スクエア 3階
最寄駅:日比谷線・浅草線「人形町駅」徒歩3分サイト運営会社

おすすめ物件紹介

おすすめ画像1

アルファコート曳舟2

■2025年9月竣工■曳舟駅徒歩10分■総戸数61戸■東京都墨田区向島5-12-5■地上8階 RC造■フリーレント1ヶ月

おすすめ画像2

クレストコート本所吾妻橋ノース

■2025年9月竣工■本所吾妻橋駅徒歩2分■総戸数78戸■東京都墨田区吾妻橋2-7-10■地上11階 RC造

おすすめ画像3

パレスシンシア江東橋

■2025年2月竣工■錦糸町駅徒歩6分■総戸数49戸■東京都墨田区江東橋4-13-11■地上14階 RC造

おすすめ画像4

プレディアコート錦糸町スカイビュー

■2025年9月竣工■錦糸町駅徒歩9分■総戸数69戸■東京都墨田区太平1-12-4■地上14階 RC造

おすすめ画像5

プラウドフラット錦糸町ウエスト

■2025年7月竣工■両国駅徒歩10分■総戸数81戸■東京都墨田区緑4-30-10■地上13階 RC造

おすすめ画像6

ブリリアイスト墨田曳舟

■2025年7月竣工■曳舟駅徒歩4分■総戸数43戸■東京都墨田区東向島2-21-3■地上12階 RC造

おすすめ画像7

グランパセオ押上2

■2025年5月竣工■押上駅徒歩7分■総戸数31戸■東京都墨田区向島3-8-8■地上7階 RC造■フリーレント2ヶ月

おすすめ画像8

グランエール森下ウエスト

■2025年5月竣工■森下駅徒歩2分■総戸数32戸■東京都墨田区千歳3-4-2■地上9階 RC造■フリーレント1ヶ月

おすすめ画像9

オープンブルーム東向島ウエスト

■2025年3月竣工■東向島駅徒歩2分■総戸数33戸■東京都墨田区東向島4-38-11■地上6階 RC造■フリーレント2ヶ月

おすすめ画像10

グランパセオ両国4

■2025年2月竣工■両国駅徒歩10分■総戸数66戸■東京都墨田区石原2-26-16■地上7階 RC造■フリーレント2ヶ月

おすすめ画像11

アスマチメゾン両国1

■2025年3月竣工■菊川駅徒歩9分■総戸数40戸■東京都墨田区緑3-2-6■地上9階 RC造

おすすめ画像12

アーバネックス錦糸公園2

■2025年2月竣工■錦糸町駅徒歩4分■総戸数33戸■東京都墨田区錦糸2-12-6■地上12階 RC造■フリーレント1ヶ月

おすすめ画像13

ロイヤルパークス品川

■2025年1月竣工■品川駅徒歩11分■総戸数458戸■東京都港区港南3-5-21■地上28階 地下1階 RC造■フリーレント2.5ヶ月

おすすめ画像14

コンフォリア芝浦MOKU

■2024年10月竣工■田町駅徒歩9分■総戸数64戸■東京都港区芝浦4-11-16■地上9階 RC造

おすすめ画像15

ウエリスアーバン水天宮前

■2023年3月竣工■水天宮前駅徒歩9分■総戸数431戸■東京都江東区佐賀2-8-4■地上13階 RC造

おすすめ画像16

コンフォリア新宿イーストサイドタワー

■2011年12月竣工■東新宿駅徒歩2分■総戸数761戸■東京都新宿区新宿6-27-29■地上32階 地下1階 RC造■フリーレント1ヶ月

最近見た物件

すべての最近見た物件を見る
pagetop