プリマステラ 605|仲介料割引有の賃貸情報

改定
プリマステラ 605
新 築

▶ 契約金のお得さ圧倒的。比べてみれば、REIT FIND

  • 礼金0
  • 仲介料割引有
賃料 334,000
共益費/管理費 15,000円
敷金/礼金 1ヶ月/2ヶ月
仲介/FR 0.5ヶ月/0ヶ月
所在階/向き 6階/西
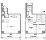
間取/面積 2LDK+WIC/63.74m2
入居日 即入居可
情報更新日 2025年10月30日

1.都内最安値での契約を、即時に提示致します。
2.初期費用のお見積りを、即時に案内致します。
3.内覧・リモート内覧を、即時に提案致します。
■全部屋対象/仲介手数料無料
(※202/802/1002/1302
  1402/1403号室は除く)
■202/802/1002/13021402/1403号室対象
■仲介手数料半額

部屋設備

建物詳細を見る
  • 独立洗面台
  • 追い焚き
  • シャワートイレ
  • 浴室乾燥機
  • クローゼット
  • システムキッチン
  • カウンターキッチン
  • ガスコンロ
  • エアコン
  • ウォークインクローゼット
  • ダブルロックキー
  • フローリング
  • 角部屋

空室一覧
チェックした物件はまとめてお問い合わせ、検討中リストに追加できます。

その他14件を非表示

物件概要

建物詳細を見る
  • LINE
物件名 プリマステラ
所在地 東京都新宿区西新宿8-3-20
最寄駅 東京メトロ丸ノ内線西新宿駅」徒歩5分
西武新宿線西武新宿駅」徒歩8分
JR山手線新大久保駅」徒歩12分
都営大江戸線都庁前駅」徒歩12分
JR山手線新宿駅」徒歩13分
物件特徴 REIT系ブランドマンション、デザイナーズ
構造規模 地上14階 RC造
総戸数 67戸 築年月 2025年8月
賃料 334,000 管理費 15,000円
敷金/礼金 1ヶ月/2ヶ月 仲介手数料 0.5ヶ月
フリーレント 0ヶ月 更新料 1ヶ月
所在階/向き 6階/西 間取り 2LDK+WIC
専有面積 63.74m2
部屋詳細 LDK15.3帖/洋室7.5帖/洋室5.5帖
契約形態 普通賃貸借契約 保証会社 利用必須
ペット飼育 不可
SOHO・事務所 不可
入居日

即入居可

取引形態 媒介
問合番号 7125-605 情報更新日 2025年10月30日
キャンペーン情報 キャンペーン詳細内容やお見積り等は、即日ご案内をさせて頂きます
※キャンペーン適用には、制約条件・違約金等はございません
※次回更新予定日は、上記の情報更新日から2週間後になります

建物設備

建物詳細を見る
  • エレベーター
  • オートロック
  • 宅配ボックス
  • TVドアホン
  • トランクルーム
  • 駐車場
  • 駐輪場
  • 敷地内ゴミ置き場
  • 24時間管理
  • 防犯カメラ
  • BS
  • CS
  • CATV
  • インターネット無料

※建物周辺情報はGoogleMapを使用しており、物件の表示位置が実際の場所と多少異なる場合があります。

掲載情報について

  • ※掲載情報が現況と異なる場合は、現況を優先させていただきます。
  • ※各種キャンペーン情報は予告なく変更・終了する場合がございます。事前に必ず募集条件をご確認くださいませ。
  • ※各部屋毎に敷金・礼金・キャンペーンの内容が異なる場合がございます。詳細は各部屋ページをご確認くださいませ。
  • ※分譲マンションの場合、各所有者様毎に室内の内装・設備が変更されている場合がございます。
  • ※分譲マンションの場合、建物自体が許可していても各所有者様毎に室内のペット飼育・SOHO 利用について禁止の場合がございます。
  • ※各詳細については、メールまたはお電話にて、お気軽にお問い合わせくださいませ。
  • 還元キャンペーンバナー
  • ランキングページバナー
「中小企業からニッポンを元気にプロジェクト」公式アンバサダー前田敦子

プリマステラ605の
お問い合わせはこちらから

お問い合わせ

0120-139-692

電話受付 24時間 年中無休

内覧予約・空室確認・初期費用概算等
是非、お気軽にお問い合わせくださいませ。

〒103-0012 東京都中央区日本橋堀留町 1-8-11 日本橋人形町スクエア 3階
最寄駅:日比谷線・浅草線「人形町駅」徒歩3分サイト運営会社

おすすめ物件紹介

おすすめ画像1

ザ・グラヴィティ新宿

おすすめ画像2

コンフォリア・リヴ北新宿

■2025年2月竣工■東中野駅徒歩9分■総戸数48戸■東京都新宿区北新宿4-13-10■地上13階 RC造

おすすめ画像3

アーバネックス早稲田

■2025年9月竣工■早稲田駅徒歩2分■総戸数38戸■東京都新宿区早稲田町69-1■地上10階 RC造■フリーレント1ヶ月

おすすめ画像4

アクシルコート早稲田

■2025年4月竣工■江戸川橋駅徒歩6分■総戸数55戸■東京都新宿区早稲田鶴巻町566■地上13階 RC造

おすすめ画像5

リビオメゾン新宿ウエスト

■2025年7月竣工■新宿西口駅徒歩4分■総戸数27戸■東京都新宿区西新宿7-14-10■地上14階 RC造

おすすめ画像6

Reframe5早稲田

■2025年7月竣工■早稲田駅徒歩4分■総戸数38戸■東京都新宿区早稲田鶴巻町508-1■地上10階 RC造

おすすめ画像7

モンテヴェルデ神楽坂弐番館

■2025年1月竣工■飯田橋駅徒歩5分■総戸数23戸■東京都新宿区新小川町9-2■地上6階 RC造

おすすめ画像8

ウェルスクエア新宿戸山

■2025年6月竣工■若松河田駅徒歩6分■総戸数27戸■東京都新宿区戸山1-2-14■地上4階 地下1階 RC造

おすすめ画像9

ルミーク早稲田

■2025年6月竣工■早稲田駅徒歩2分■総戸数16戸■東京都新宿区喜久井町50-1■地上7階 地下1階 RC造

おすすめ画像10

ザ・パークハビオ神楽坂レジデンスサウス

■2025年6月竣工■神楽坂駅徒歩8分■総戸数254戸■東京都新宿区東五軒町6-8■地上10階 RC造

おすすめ画像11

ベルファース西早稲田

■2025年3月竣工■西早稲田駅徒歩5分■総戸数35戸■東京都新宿区大久保3-2-2■地上6階 RC造■フリーレント1ヶ月

おすすめ画像12

パークアクシス新宿西落合

■2025年3月竣工■落合南長崎駅徒歩9分■総戸数40戸■東京都新宿区西落合2-7-14■地上9階 RC造■フリーレント2ヶ月

おすすめ画像13

ロイヤルパークス品川

■2025年1月竣工■品川駅徒歩11分■総戸数458戸■東京都港区港南3-5-21■地上28階 地下1階 RC造

おすすめ画像14

コンフォリア芝浦MOKU

■2024年10月竣工■田町駅徒歩9分■総戸数64戸■東京都港区芝浦4-11-16■地上9階 RC造

おすすめ画像15

ウエリスアーバン水天宮前

■2023年3月竣工■水天宮前駅徒歩9分■総戸数431戸■東京都江東区佐賀2-8-4■地上13階 RC造

おすすめ画像16

コンフォリア新宿イーストサイドタワー

■2011年12月竣工■東新宿駅徒歩2分■総戸数761戸■東京都新宿区新宿6-27-29■地上32階 地下1階 RC造■フリーレント1ヶ月

最近見た物件

すべての最近見た物件を見る
pagetop