プロシード池上 8階 成約済み物件 7139-806

プロシード池上 成約済み物件 (7139-806)

▶ 契約金のお得さ圧倒的。比べてみれば、REIT FIND

部屋設備

建物詳細を見る
  • 独立洗面台
  • 追い焚き
  • シャワートイレ
  • 浴室乾燥機
  • クローゼット
  • システムキッチン
  • カウンターキッチン
  • ガスコンロ
  • エアコン
  • フローリング
  • 最上階
  • 南向き

空室一覧
チェックした物件はまとめてお問い合わせ、検討中リストに追加できます。

現在公開中の部屋情報がありません。
最新の情報はこちらからお問い合わせください。

物件概要

建物詳細を見る
物件名 プロシード池上
所在地 東京都大田区西蒲田2-5-4
最寄駅 東急池上線池上駅」徒歩6分
東急池上線蓮沼駅」徒歩12分
JR京浜東北線蒲田駅」徒歩21分
東急池上線千鳥町駅」徒歩22分
東急多摩川線武蔵新田駅」徒歩22分
物件特徴 REIT系ブランドマンション、デザイナーズ、ペット可
構造規模 地上8階 RC造
総戸数 125戸 築年月 2025年8月
賃料 --- 管理費 ---円
敷金/礼金 ---ヶ月/---ヶ月 仲介手数料 ---ヶ月
フリーレント ---ヶ月 更新料 ---ヶ月
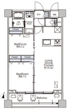
所在階/向き 8階/南 間取り 2LDK
専有面積 54.14m2
部屋詳細 LDK14.3帖/洋室6.1帖/洋室4.2帖
契約形態 普通賃貸借契約 保証会社 利用必須
ペット飼育
敷1積増
SOHO・事務所 不可
入居日

---

取引形態 媒介
問合番号 7139-806 情報更新日 2026年1月20日
キャンペーン情報 キャンペーン詳細内容やお見積り等は、即日ご案内をさせて頂きます
※キャンペーン適用には、制約条件・違約金等はございません

建物設備

建物詳細を見る
  • エレベーター
  • オートロック
  • 宅配ボックス
  • TVドアホン
  • 駐車場
  • バイク置き場
  • 駐輪場
  • ラウンジ
  • キッズルーム
  • 敷地内ゴミ置き場
  • 24時間管理
  • 防犯カメラ
  • BS
  • CS
  • CATV
  • インターネット無料

※建物周辺情報はGoogleMapを使用しており、物件の表示位置が実際の場所と多少異なる場合があります。

掲載情報について

  • ※掲載情報が現況と異なる場合は、現況を優先させていただきます。
  • ※各種キャンペーン情報は予告なく変更・終了する場合がございます。事前に必ず募集条件をご確認くださいませ。
  • ※各部屋毎に敷金・礼金・キャンペーンの内容が異なる場合がございます。詳細は各部屋ページをご確認くださいませ。
  • ※分譲マンションの場合、各所有者様毎に室内の内装・設備が変更されている場合がございます。
  • ※分譲マンションの場合、建物自体が許可していても各所有者様毎に室内のペット飼育・SOHO 利用について禁止の場合がございます。
  • ※各詳細については、メールまたはお電話にて、お気軽にお問い合わせくださいませ。
  • 還元キャンペーンバナー
  • ランキングページバナー
「中小企業からニッポンを元気にプロジェクト」公式アンバサダー前田敦子

プロシード池上の
お問い合わせはこちらから

お問い合わせ

0120-139-692

電話受付 24時間 年中無休

内覧予約・空室確認・初期費用概算等
是非、お気軽にお問い合わせくださいませ。

〒103-0012 東京都中央区日本橋堀留町 1-8-11 日本橋人形町スクエア 3階
最寄駅:日比谷線・浅草線「人形町駅」徒歩3分サイト運営会社

おすすめ物件紹介

おすすめ画像1

グランパセオ蒲田3

■2026年2月竣工■京急蒲田駅徒歩7分■総戸数26戸■東京都大田区蒲田本町2-2-4■地上10階 RC造■フリーレント2ヶ月

おすすめ画像2

ブリリアイスト洗足池の杜

■2026年3月竣工■石川台駅徒歩4分■総戸数42戸■東京都大田区東雪谷1-9-13■地上5階 木造(一部RC造)

おすすめ画像3

ザ・ライオンズフォーシア蒲田

■2026年2月竣工■蒲田駅徒歩4分■総戸数69戸■東京都大田区西蒲田8-21-8■地上15階 RC造■フリーレント2ヶ月

おすすめ画像4

スタイリオ蒲田ウエスト

■2026年3月竣工■蒲田駅徒歩4分■総戸数87戸■東京都大田区西蒲田7-50-10■地上14階 RC造■フリーレント1ヶ月

おすすめ画像5

ガーデンザヴィス南蒲田

■2025年5月竣工■京急蒲田駅徒歩5分■総戸数38戸■東京都大田区南蒲田2-4-20■地上12階 RC造■フリーレント2ヶ月

おすすめ画像6

ベルファース蒲田ウエスト

■2026年2月竣工■蒲田駅徒歩4分■総戸数87戸■東京都大田区西蒲田8-22-10■地上15階 RC造■フリーレント2ヶ月

おすすめ画像7

エストゥルース馬込

■2025年10月竣工■馬込駅徒歩6分■総戸数31戸■東京都大田区南馬込1-24-12■地上3階 RC造■フリーレント1ヶ月

おすすめ画像8

RJRプレシア蒲田

■2026年4月竣工■蒲田駅徒歩10分■総戸数130戸■東京都大田区西蒲田4-15-11■地上8階 RC造

おすすめ画像9

プライムガーデン大森

■2025年11月竣工■大森駅徒歩5分■総戸数67戸■東京都大田区大森北1-34-17■地上12階 RC造

おすすめ画像10

エスグランデ大森

■2025年9月竣工■大森町駅徒歩6分■総戸数35戸■東京都大田区大森西5-17-7■地上4階 RC造

おすすめ画像11

スタイリオ池上サウス

■2025年10月竣工■池上駅徒歩4分■総戸数49戸■東京都大田区池上6-20-2■地上5階 RC造■フリーレント1ヶ月

おすすめ画像12

プレディアコート大森山王

■2025年10月竣工■大森駅徒歩11分■総戸数40戸■東京都大田区山王3-9-4■地上11階 RC造■フリーレント1ヶ月

おすすめ画像13

ブルックサイドレジデンス木場

■2026年3月竣工■木場駅徒歩9分■総戸数563戸■東京都江東区塩浜2-8-1■地上18階 RC造

おすすめ画像14

ロイヤルパークス有明

■2026年1月竣工■有明テニスの森駅9分■総戸数642戸■東京都江東区有明1-4-43■地上15階 RC造■フリーレント2ヶ月

おすすめ画像15

ウエリスアーバン水天宮前

■2023年3月竣工■水天宮前駅徒歩9分■総戸数431戸■東京都江東区佐賀2-8-4■地上13階 RC造■2026年3月末迄フリーレント

おすすめ画像16

コンフォリア新宿イーストサイドタワー

■2011年12月竣工■東新宿駅徒歩2分■総戸数761戸■東京都新宿区新宿6-27-29■地上32階 地下1階 RC造■フリーレント1ヶ月

最近見た物件

すべての最近見た物件を見る
pagetop