内覧予約・空室確認・初期費用概算等
								是非、お気軽にお問い合わせくださいませ。
〒103-0012 東京都中央区日本橋堀留町 1-8-11 日本橋人形町スクエア 3階
								最寄駅:日比谷線・浅草線「人形町駅」徒歩3分サイト運営会社
							

 
       
       
       
       
       
       
       
       
       
       
       
       
      | 物件名 | エネシャル代官山 | ||
|---|---|---|---|
| 所在地 | 東京都渋谷区猿楽町11-8 | ||
| 最寄駅 | 東急東横線「代官山駅」徒歩3分 JR山手線「恵比寿駅」徒歩10分 東京メトロ日比谷線「恵比寿駅」徒歩10分 JR山手線「渋谷駅」徒歩14分 東京メトロ銀座線「渋谷駅」徒歩14分 | ||
| 物件特徴 | REIT系ブランドマンション、デザイナーズ、ペット可 | ||
| 構造規模 | 地上10階 RC造 | ||
| 総戸数 | 35戸 | 築年月 | 2025年1月 | 
| 賃料 | 472,000円 | 管理費 | 20,000円 | 
| 敷金/礼金 | 1ヶ月/0ヶ月 | 仲介手数料 | 0.5ヶ月 | 
| フリーレント | 0ヶ月 | 更新料 | 0ヶ月 | 
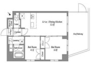
| 所在階/向き | 8階/北西 | 間取り | 2LDK+SIC | 
| 専有面積 | 66.15m2 | ||
| 部屋詳細 | LDK20帖/洋室6.4帖/洋室2.9帖 | ||
| 契約形態 | 定期借家契約 2年 | 保証会社 | 利用必須 | 
| ペット飼育 | 可 敷1積増 | SOHO・事務所 | 不可 | 
| 入居日 | 即入居可 | 取引形態 | 媒介 | 
| 問合番号 | 7395-801 | 情報更新日 | 2025年10月31日 | 
| キャンペーン情報 | キャンペーン詳細内容やお見積り等は、即日ご案内をさせて頂きます | ||
| ※キャンペーン適用には、制約条件・違約金等はございません | |||
| ※次回更新予定日は、上記の情報更新日から2週間後になります | |||
 
       
       
       
       
       
       
       
       
       
       
       
      ※建物周辺情報はGoogleMapを使用しており、物件の表示位置が実際の場所と多少異なる場合があります。
 
				■2023年1月竣工■代官山駅徒歩10分■総戸数28戸■東京都渋谷区鉢山町13-18■地上5階 地下1階 RC造
 
				■2025年8月竣工■神泉駅徒歩7分■総戸数51戸■東京都渋谷区松濤2-11-15■地上12階 RC造
 
				■2025年8月竣工■幡ヶ谷駅徒歩2分■総戸数28戸■東京都渋谷区西原2-31-3■地上6階 RC造
 
				■2025年7月竣工■広尾駅徒歩7分■総戸数20戸■東京都渋谷区恵比寿2-20-2■地上5階 地下1階 RC造
 
				■2025年2月竣工■恵比寿駅徒歩11分■総戸数50戸■東京都渋谷区広尾3-12-39■地上13階 RC造■フリーレント2ヶ月
 
				■2025年2月竣工■代々木上原駅徒歩3分■総戸数30戸■東京都渋谷区上原3-44-8■地上8階 RC造■フリーレント1ヶ月
 
				■2024年11月竣工■代官山駅徒歩5分■総戸数44戸■東京都渋谷区恵比寿南3-4-13■地上13階 RC造
 
				■2024年9月竣工■北参道駅徒歩8分■総戸数31戸■東京都渋谷区千駄ヶ谷2-28-1■地上13階 地下1階 RC造
 
				■2024年5月竣工■西新宿五丁目駅10分■総戸数39戸■東京都渋谷区本町5-14-12■地上5階 RC造
 
				■2024年3月竣工■恵比寿駅徒歩8分■総戸数15戸■東京都渋谷区広尾1-7-20■地上3階 RC造
 
				■2024年2月竣工■代々木八幡駅徒歩9分■総戸数99戸■東京都渋谷区富ヶ谷2-14-2■地上13階 RC造
 
				■2024年3月竣工■笹塚駅徒歩6分■総戸数22戸■東京都渋谷区笹塚3-19-1■地上6階 RC造
 
				■2025年1月竣工■品川駅徒歩11分■総戸数458戸■東京都港区港南3-5-21■地上28階 地下1階 RC造
 
				■2024年10月竣工■田町駅徒歩9分■総戸数64戸■東京都港区芝浦4-11-16■地上9階 RC造
 
				■2023年3月竣工■水天宮前駅徒歩9分■総戸数431戸■東京都江東区佐賀2-8-4■地上13階 RC造
 
				■2011年12月竣工■東新宿駅徒歩2分■総戸数761戸■東京都新宿区新宿6-27-29■地上32階 地下1階 RC造■フリーレント1ヶ月