グランパセオ池尻大橋 105|仲介料無料の賃貸情報

グランパセオ池尻大橋 105
新 築 還元率UP

▶ 契約金のお得さ圧倒的。比べてみれば、REIT FIND

  • 礼金0
  • 仲介手数料無料
  • フリーレント
賃料 260,000
共益費/管理費 15,000円
敷金/礼金 0ヶ月/0ヶ月
仲介/FR 0ヶ月/2ヶ月
所在階/向き 1階/南西
間取/面積 2DK/33.16m2
入居日 即入居可
情報更新日 2025年11月18日

1.都内最安値での契約を、即時に提示致します。
2.初期費用のお見積りを、即時に案内致します。
3.内覧・リモート内覧を、即時に提案致します。
■全部屋対象/仲介手数料無料
■全部屋対象/フリーレント2ヶ月

部屋設備

建物詳細を見る
  • 独立洗面台
  • 追い焚き
  • シャワートイレ
  • 浴室乾燥機
  • クローゼット
  • システムキッチン
  • ガスコンロ
  • エアコン
  • ダブルロックキー
  • フローリング
  • 角部屋
  • 南向き

空室一覧
チェックした物件はまとめてお問い合わせ、検討中リストに追加できます。

その他5件を非表示

物件概要

建物詳細を見る
  • LINE
物件名 グランパセオ池尻大橋
所在地 東京都世田谷区池尻2-21-9
最寄駅 東急田園都市線池尻大橋駅」徒歩5分
東急田園都市線三軒茶屋駅」徒歩15分
東急世田谷線三軒茶屋駅」徒歩19分
東急東横線祐天寺駅」徒歩21分
東京メトロ日比谷線中目黒駅」徒歩22分
物件特徴 REIT系ブランドマンション、デザイナーズ
構造規模 地上4階 地下1階 RC造
総戸数 15戸 築年月 2025年11月
賃料 260,000 管理費 15,000円
敷金/礼金 0ヶ月/0ヶ月 仲介手数料 0ヶ月
フリーレント 2ヶ月 更新料 1ヶ月
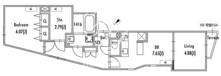
所在階/向き 1階/南西 間取り 2DK
専有面積 33.16m2
部屋詳細 DK7.65帖/洋室6.07帖/洋室4.88帖/サービスルーム2.79帖
契約形態 普通賃貸借契約 保証会社 利用必須
ペット飼育 不可
SOHO・事務所 不可
入居日

即入居可

取引形態 媒介
問合番号 7456-105 情報更新日 2025年11月18日
キャンペーン情報 キャンペーン詳細内容やお見積り等は、即日ご案内をさせて頂きます
※キャンペーン適用には、制約条件・違約金等はございません
※次回更新予定日は、上記の情報更新日から2週間後になります

建物設備

建物詳細を見る
  • エレベーター
  • オートロック
  • 宅配ボックス
  • TVドアホン
  • 内廊下
  • 24時間管理
  • 防犯カメラ
  • BS
  • CS
  • CATV
  • インターネット無料

※建物周辺情報はGoogleMapを使用しており、物件の表示位置が実際の場所と多少異なる場合があります。

掲載情報について

  • ※掲載情報が現況と異なる場合は、現況を優先させていただきます。
  • ※各種キャンペーン情報は予告なく変更・終了する場合がございます。事前に必ず募集条件をご確認くださいませ。
  • ※各部屋毎に敷金・礼金・キャンペーンの内容が異なる場合がございます。詳細は各部屋ページをご確認くださいませ。
  • ※分譲マンションの場合、各所有者様毎に室内の内装・設備が変更されている場合がございます。
  • ※分譲マンションの場合、建物自体が許可していても各所有者様毎に室内のペット飼育・SOHO 利用について禁止の場合がございます。
  • ※各詳細については、メールまたはお電話にて、お気軽にお問い合わせくださいませ。
  • 還元キャンペーンバナー
  • ランキングページバナー
「中小企業からニッポンを元気にプロジェクト」公式アンバサダー前田敦子

グランパセオ池尻大橋105の
お問い合わせはこちらから

お問い合わせ

0120-139-692

電話受付 24時間 年中無休

内覧予約・空室確認・初期費用概算等
是非、お気軽にお問い合わせくださいませ。

〒103-0012 東京都中央区日本橋堀留町 1-8-11 日本橋人形町スクエア 3階
最寄駅:日比谷線・浅草線「人形町駅」徒歩3分サイト運営会社

おすすめ物件紹介

おすすめ画像1

ウェルスクエア駒場東大前

■2025年9月竣工■駒場東大前駅徒歩9分■総戸数18戸■東京都世田谷区代沢1-6-4 ■地上3階 RC造

おすすめ画像2

プレディアコート三軒茶屋

■2025年10月竣工■松陰神社前駅徒歩7分■総戸数30戸■東京都世田谷区上馬5-30-16■地上9階 RC造

おすすめ画像3

アジールコート三宿テラス

■2025年9月竣工■三軒茶屋駅徒歩9分■総戸数58戸■東京都世田谷区三宿1-15-10■地上5階 地下1階 RC造

おすすめ画像4

nido桜丘

■2025年8月竣工■千歳船橋駅徒歩6分■総戸数46戸■東京都世田谷区桜丘5-37-21■地上4階 RC造

おすすめ画像5

アークマーク世田谷砧

■2025年6月竣工■千歳船橋駅徒歩9分■総戸数42戸■東京都世田谷区砧2-20-16■地上6階 RC造

おすすめ画像6

グレーシアフィット三軒茶屋

■2025年8月竣工■駒沢大学駅徒歩8分■総戸数49戸■東京都世田谷区上馬2-22-4■地上14階 RC造

おすすめ画像7

ルミーク三軒茶屋

■2025年7月竣工■駒沢大学駅徒歩9分■総戸数38戸■東京都世田谷区上馬1-15-4■地上14階 RC造

おすすめ画像8

グランパセオ祐天寺

■2025年5月竣工■祐天寺駅徒歩10分■総戸数33戸■東京都世田谷区下馬1-22-14■地上4階 RC造■フリーレント2ヶ月

おすすめ画像9

リビオメゾン東北沢

■2025年6月竣工■東北沢駅徒歩2分■総戸数41戸■東京都世田谷区北沢1-19-17■地上6階 地下1階 RC造■フリーレント1ヶ月

おすすめ画像10

パークアクシス下北沢

■2025年6月竣工■下北沢駅徒歩4分■総戸数60戸■東京都世田谷区代沢2-29-11■地上7階 RC造

おすすめ画像11

THE GRANDUO CHITOFUNA

■2025年3月竣工■千歳船橋駅徒歩9分■総戸数17戸■東京都世田谷区桜丘4-19-20■地上3階 RC造■フリーレント1ヶ月

おすすめ画像12

グランパセオ下北沢

■2025年2月竣工■池ノ上駅徒歩2分■総戸数25戸■東京都世田谷区北沢1-33-20■地上4階 RC造■フリーレント2ヶ月

おすすめ画像13

ロイヤルパークス品川

■2025年1月竣工■品川駅徒歩11分■総戸数458戸■東京都港区港南3-5-21■地上28階 地下1階 RC造

おすすめ画像14

コンフォリア芝浦MOKU

■2024年10月竣工■田町駅徒歩9分■総戸数64戸■東京都港区芝浦4-11-16■地上9階 RC造

おすすめ画像15

ウエリスアーバン水天宮前

■2023年3月竣工■水天宮前駅徒歩9分■総戸数431戸■東京都江東区佐賀2-8-4■地上13階 RC造■フリーレント2ヶ月

おすすめ画像16

コンフォリア新宿イーストサイドタワー

■2011年12月竣工■東新宿駅徒歩2分■総戸数761戸■東京都新宿区新宿6-27-29■地上32階 地下1階 RC造■フリーレント1ヶ月

最近見た物件

すべての最近見た物件を見る
pagetop