グランパセオ中野 406|仲介料無料の賃貸情報

NEW
グランパセオ中野 406
築5年以内 還元率UP

▶ 契約金のお得さ圧倒的。比べてみれば、REIT FIND

  • 礼金0
  • 仲介手数料無料
賃料 130,000
共益費/管理費 15,000円
敷金/礼金 0ヶ月/0ヶ月
仲介/FR 0ヶ月/0ヶ月
所在階/向き 4階/西
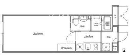
間取/面積 1K/28.27m2
入居日 5月下旬
情報更新日 2026年3月24日

部屋設備

建物詳細を見る
  • 独立洗面台
  • シャワートイレ
  • 浴室乾燥機
  • クローゼット
  • システムキッチン
  • ガスコンロ
  • エアコン
  • ダブルロックキー
  • フローリング

空室一覧
チェックした物件はまとめてお問い合わせ、検討中リストに追加できます。

物件概要

建物詳細を見る
  • LINE
物件名 グランパセオ中野
所在地 東京都中野区中野5-3-30
最寄駅 東京メトロ東西線中野駅」徒歩10分
JR中央・総武線中野駅」徒歩10分
JR中央線(快速)中野駅」徒歩10分
JR中央・総武線東中野駅」徒歩13分
都営大江戸線東中野駅」徒歩13分
物件特徴 REIT系ブランドマンション、デザイナーズ
構造規模 地上4階 RC造
総戸数 25戸 築年月 2021年9月
賃料 130,000 管理費 15,000円
敷金/礼金 0ヶ月/0ヶ月 仲介手数料 0ヶ月
フリーレント 0ヶ月 更新料 1ヶ月
所在階/向き 4階/西 間取り 1K
専有面積 28.27m2
部屋詳細 洋室8帖/K2帖
契約形態 普通賃貸借契約 保証会社 利用必須
ペット飼育 不可
SOHO・事務所 不可
入居日

5月下旬

取引形態 媒介
問合番号 7671-406 情報更新日 2026年3月24日
キャンペーン情報 キャンペーン詳細内容やお見積り等は、即日ご案内をさせて頂きます
※キャンペーン適用には、制約条件・違約金等はございません
※次回更新予定日は、上記の情報更新日から2週間後になります

建物設備

建物詳細を見る
  • オートロック
  • 宅配ボックス
  • TVドアホン
  • 駐輪場
  • 防犯カメラ
  • BS
  • CS
  • CATV
  • インターネット無料

※建物周辺情報はGoogleMapを使用しており、物件の表示位置が実際の場所と多少異なる場合があります。

掲載情報について

  • ※掲載情報が現況と異なる場合は、現況を優先させていただきます。
  • ※各種キャンペーン情報は予告なく変更・終了する場合がございます。事前に必ず募集条件をご確認くださいませ。
  • ※各部屋毎に敷金・礼金・キャンペーンの内容が異なる場合がございます。詳細は各部屋ページをご確認くださいませ。
  • ※分譲マンションの場合、各所有者様毎に室内の内装・設備が変更されている場合がございます。
  • ※分譲マンションの場合、建物自体が許可していても各所有者様毎に室内のペット飼育・SOHO 利用について禁止の場合がございます。
  • ※各詳細については、メールまたはお電話にて、お気軽にお問い合わせくださいませ。
  • 還元キャンペーンバナー
  • ランキングページバナー
「中小企業からニッポンを元気にプロジェクト」公式アンバサダー前田敦子

グランパセオ中野406の
お問い合わせはこちらから

お問い合わせ

0120-139-692

電話受付 24時間 年中無休

内覧予約・空室確認・初期費用概算等
是非、お気軽にお問い合わせくださいませ。

〒103-0012 東京都中央区日本橋堀留町 1-8-11 日本橋人形町スクエア 3階
最寄駅:日比谷線・浅草線「人形町駅」徒歩3分サイト運営会社

おすすめ物件紹介

おすすめ画像1

ワンルーフレジデンス中野

■2026年2月竣工■東中野駅徒歩11分■総戸数36戸■東京都中野区中野6-15-11■地上10階 RC造■フリーレント1ヶ月

おすすめ画像2

グランパセオ中野3

■2025年11月竣工■中野駅徒歩14分■総戸数26戸■東京都中野区野方1-8-12■地上4階 RC■フリーレント2ヶ月

おすすめ画像3

アリビス中野

■2025年11月竣工■新井薬師前駅徒歩10分■総戸数34戸■東京都中野区上高田2-1-10■地上5階 RC造

おすすめ画像4

スパシエ幡ヶ谷

■2025年9月竣工■幡ヶ谷駅徒歩11分■総戸数62戸■東京都中野区南台2-22-11■地上7階 RC造■フリーレント1ヶ月

おすすめ画像5

アリビス新江古田

■2025年3月竣工■新江古田駅徒歩10分■総戸数35戸■東京都中野区江原町1-22-14■地上3階 RC

おすすめ画像6

クレストコート中野富士見町

■2025年8月竣工■中野富士見町駅徒歩1分■総戸数59戸■東京都中野区弥生町5-27-4■地上9階 地下1階 RC造■フリーレント1ヶ月

おすすめ画像7

ラペルラ中野

■2025年9月竣工■中野駅徒歩11分■総戸数22戸■東京都中野区中野1-37-8■地上4階 RC造

おすすめ画像8

コンフォリア・リヴ東中野

■2025年6月竣工■落合駅徒歩9分■総戸数35戸■東京都中野区上高田1-24-3■地上3階 RC造■フリーレント2ヶ月

おすすめ画像9

ラティエラ中野新井

■2025年8月竣工■新井薬師前駅徒歩9分■総戸数46戸■東京都中野区新井1-27-5■地上8階 RC造

おすすめ画像10

アーバンパーク江古田の森

■2025年3月竣工■新江古田駅徒歩5分■総戸数68戸■東京都中野区江原町2-20-8■地上6階 RC造■フリーレント1ヶ月

おすすめ画像11

プライムブリス中野富士見町2

■2025年6月竣工■中野富士見町駅徒歩3分■総戸数22戸■東京都中野区本町5-44-4■地上5階 RC造■フリーレント1ヶ月

おすすめ画像12

プライムブリス中野富士見町1

■2025年6月竣工■中野富士見町駅徒歩4分■総戸数29戸■東京都中野区本町5-44-1■地上5階 RC造■フリーレント2ヶ月

おすすめ画像13

ブルックサイドレジデンス木場

■2026年3月竣工■木場駅徒歩9分■総戸数563戸■東京都江東区塩浜2-8-1■地上18階 RC造

おすすめ画像14

ロイヤルパークス有明

■2026年1月竣工■有明テニスの森駅9分■総戸数642戸■東京都江東区有明1-4-43■地上15階 RC造■フリーレント2ヶ月

おすすめ画像15

ウエリスアーバン水天宮前

■2023年3月竣工■水天宮前駅徒歩9分■総戸数431戸■東京都江東区佐賀2-8-4■地上13階 RC造■2026年3月末迄フリーレント

おすすめ画像16

コンフォリア新宿イーストサイドタワー

■2011年12月竣工■東新宿駅徒歩2分■総戸数761戸■東京都新宿区新宿6-27-29■地上32階 地下1階 RC造■フリーレント1ヶ月

pagetop