ルフォンプログレ赤羽マークス|仲介料無料

ルフォンプログレ赤羽マークス
新 築還元率UP

▶ 契約金のお得さ圧倒的。比べてみれば、REIT FIND

  • 礼金0
  • 仲介手数料無料
  • フリーレント
  • ペット可

契約金 初期費用【特別価格】
竣 工 2026年3月
最寄駅 赤羽岩淵駅徒歩2分
総戸数 40戸

住 所 東京都北区赤羽2-68-3
概 要 地上12階 RC造
■3階/4階/7階/11階住居対象
■実質フリーレント2ヶ月/相談可
■上記住居以外対象
■実質フリーレント1ヶ月/相談可
▶ REIT FIND特典でお得にご契約くださいませ。
1.都内最安値での契約を、即時に提示致します。
2.初期費用のお見積りを、即時に案内致します。
3.内覧・リモート内覧を、即時に提案致します。


■物件名フリガナ
ルフォンプログレアカバネマークス

■近隣周辺施設情報
ぽけっとランド赤羽保育園まで約130m
北区立岩淵小学校まで約約400m
明照幼稚園まで約500m
北区立赤羽小学校まで約300m
北区立赤羽岩淵中学校まで約450m
赤羽公園まで約500m
赤羽中央総合病院まで約900m
赤羽郵便局まで約600m
北区立第四岩淵小学校まで約550m
北区立赤羽三丁目公園まで約500m

今月申し込みの方限定キャンペーン

礼金0仲介手数料無料フリーレントキャンペーン中です。
1.都内最安値での契約は、是非お任せください。
2.初期費用のお見積りは、是非お任せください。
3.内覧・リモート内覧は、是非お任せください。
※諸条件・詳細等は是非お問合せ下さいませ。

空室一覧
チェックした物件はまとめてお問い合わせ、検討中リストに追加できます。

その他2件を表示

物件概要

  • LINE
物件名 ルフォンプログレ赤羽マークス
所在地 東京都北区赤羽2-68-3
最寄駅 東京メトロ南北線赤羽岩淵駅」徒歩2分
JR京浜東北線赤羽駅」徒歩8分
宇都宮線赤羽駅」徒歩8分
JR高崎線赤羽駅」徒歩8分
JR湘南新宿ライン赤羽駅」徒歩8分
物件特徴 REIT系ブランドマンション、デザイナーズ、ペット可
構造規模 地上12階 RC造
総戸数 40戸 築年月 2026年3月
賃料 154,000円 - 350,000円 管理費 15,000円 - 30,000円
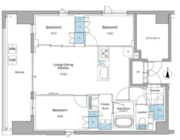
間取り 1DK - 3LDK 専有面積 26.44m2 - 58.32m2
問合番号 7722

■駐車場   2台(平置式)月額38,500円
■バイク置場 ―
■駐輪場   36台/月額330円
―――――――
■設 計   株式会社スタイレックス・アーキテクト一級建築士事務所
■施 工   アイサワ工業株式会社東京支店
■管理形式  巡回管理
―――――――
■保 険   借家人賠償付き火災保険要加入
■ペット   相談(小型犬1匹または猫1匹迄・敷1積増)
■楽 器   不可
■鍵交換代  新築の為不要
■保証会社  利用必須(※大手法人契約の場合、例外あり)
■保証会社  初回保証委託料/月額賃料等の20%~100%
■保証会社  年間継続料/0.8万円~1.0万円 or
■保証会社  月額保証料賃料等の1%~2%
―――――――
■間取り
□1DK~3LDK(26.44㎡~60.00㎡)
―――――――
■共用施設
□1階    ビジネスラウンジ

■① 駐車場・バイク置場・駐輪場の詳細は、是非お問合せ下さい。
■② 内覧のご希望時は、物件現地待ち合わせ対応をしております。
■③ 物件写真の量と質、情報更新鮮度に特化して運営しています。

建物設備

建物詳細を見る
  • エレベーター
  • オートロック
  • 宅配ボックス
  • TVドアホン
  • 駐車場
  • 駐輪場
  • ラウンジ
  • 敷地内ゴミ置き場
  • 内廊下
  • 防犯カメラ
  • BS
  • CS
  • CATV
  • インターネット無料

※建物周辺情報はGoogleMapを使用しており、物件表示位置が実際の位置と多少異なる場合がございます。

掲載情報について

  • ※掲載情報が現況と異なる場合は、現況を優先させていただきます。
  • ※各種キャンペーン情報は予告なく変更・終了する場合がございます。事前に必ず募集条件をご確認くださいませ。
  • ※各部屋毎に敷金・礼金・キャンペーンの内容が異なる場合がございます。詳細は各部屋ページをご確認くださいませ。
  • ※分譲マンションの場合、各所有者様毎に室内の内装・設備が変更されている場合がございます。
  • ※分譲マンションの場合、建物自体が許可していても各所有者様毎に室内のペット飼育・SOHO 利用について禁止の場合がございます。
  • ※各詳細については、メールまたはお電話にて、お気軽にお問い合わせくださいませ。
  • 還元キャンペーンバナー
  • ランキングページバナー
「中小企業からニッポンを元気にプロジェクト」公式アンバサダー前田敦子

ルフォンプログレ赤羽マークスの
お問い合わせはこちらから

お問い合わせ

0120-139-692

電話受付 24時間 年中無休

内覧予約・空室確認・初期費用概算等
是非、お気軽にお問い合わせくださいませ。

〒103-0012 東京都中央区日本橋堀留町 1-8-11 日本橋人形町スクエア 3階
最寄駅:日比谷線・浅草線「人形町駅」徒歩3分サイト運営会社

ご成約済みの部屋一覧

所在階 間取り 面積 賃料 共益費/管理費 敷金/礼金 仲介手数料 詳細
3F 1DK 26.44m2 ---円 ---円 ---ヶ月/---ヶ月 ---ヶ月 詳細
4F 1DK 26.44m2 ---円 ---円 ---ヶ月/---ヶ月 ---ヶ月 詳細
7F 2LDK 42.45m2 ---円 ---円 ---ヶ月/---ヶ月 ---ヶ月 詳細
10F 2LDK 42.45m2 ---円 ---円 ---ヶ月/---ヶ月 ---ヶ月 詳細
10F 1DK 26.44m2 ---円 ---円 ---ヶ月/---ヶ月 ---ヶ月 詳細
11F 3LDK 60.00m2 ---円 ---円 ---ヶ月/---ヶ月 ---ヶ月 詳細

表示

おすすめ物件紹介

おすすめ画像1

グランパセオ東十条

■2026年2月竣工■東十条駅徒歩5分■総戸数39戸■東京都北区東十条4-14-5■地上10階 RC造■フリーレント3ヶ月

おすすめ画像2

ドゥーエ王子神谷

■2026年3月竣工■王子神谷駅徒歩15分■総戸数62戸■東京都北区豊島6-5-16■地上10階 RC造

おすすめ画像3

トモア田端

■2026年3月■田端駅徒歩7分■総戸数160戸■東京都北区東田端1-4-20■地上8階 RC造■フリーレント2ヶ月

おすすめ画像4

シーズンフラッツ滝野川

■2026年3月竣工■西巣鴨駅徒歩4分■総戸数28戸■東京都北区滝野川3-4-1■地上15階 RC造■フリーレント2ヶ月

おすすめ画像5

グランエール西日暮里ノース

■2026年3月竣工■新三河島駅徒歩5分■総戸数49戸■東京都北区田端新町1-27-2■地上14階 RC造

おすすめ画像6

ミレーネ滝野川

■2026年1月竣工■西ヶ原四丁目駅徒歩5分■総戸数77戸■東京都北区滝野川1-88-5■地上5階 RC造

おすすめ画像7

プレミアムキューブ王子神谷

■2025年10月竣工■王子神谷駅徒歩12分■総戸数47戸■東京都北区豊島6-15-16■地上6階 RC造

おすすめ画像8

ジェノヴィア北池袋スカイガーデン

■2025年10月竣工■板橋駅徒歩5分■総戸数40戸■東京都北区滝野川7-25-14■地上6階 RC造

おすすめ画像9

ステラメゾン田端

■2025年10月竣工■田端駅徒歩6分■総戸数24戸■東京都北区田端1-28-4■地上4階 地下1階 RC造

おすすめ画像10

エスレジデンス王子イネーブル

■2025年9月竣工■王子駅徒歩10分■総戸数24戸■東京都北区豊島2-7-12■地上9階 RC造

おすすめ画像11

リルシア北赤羽

■2025年8月竣工■北赤羽駅徒歩9分■総戸数48戸■東京都北区浮間3-8-18■地上6階 RC造

おすすめ画像12

ロイヤルパークス赤羽ノース

■2025年9月旬竣工■志茂駅徒歩8分■総戸数474戸■東京都北区神谷3-15-5■地上10階 RC造■フリーレント1ヶ月

おすすめ画像13

ブルックサイドレジデンス木場

■2026年3月竣工■木場駅徒歩9分■総戸数563戸■東京都江東区塩浜2-8-1■地上18階 RC造

おすすめ画像14

ロイヤルパークス有明

■2026年1月竣工■有明テニスの森駅9分■総戸数642戸■東京都江東区有明1-4-43■地上15階 RC造■フリーレント2ヶ月

おすすめ画像15

ウエリスアーバン水天宮前

■2023年3月竣工■水天宮前駅徒歩9分■総戸数431戸■東京都江東区佐賀2-8-4■地上13階 RC造■2026年3月末迄フリーレント

おすすめ画像16

コンフォリア新宿イーストサイドタワー

■2011年12月竣工■東新宿駅徒歩2分■総戸数761戸■東京都新宿区新宿6-27-29■地上32階 地下1階 RC造■フリーレント1ヶ月

pagetop