コンフォリア・リヴ南六郷 505|仲介料無料の賃貸情報

NEW
コンフォリア・リヴ南六郷 505
新 築 還元率UP

▶ 契約金のお得さ圧倒的。比べてみれば、REIT FIND

  • 礼金0
  • 仲介手数料無料
  • ペット可
賃料 121,000
共益費/管理費 8,000円
敷金/礼金 1ヶ月/0ヶ月
仲介/FR 0ヶ月/0ヶ月
所在階/向き 5階/北東
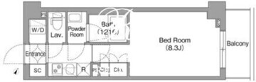
間取/面積 1K/25.20m2
入居日 即入居可
情報更新日 2026年3月7日

部屋設備

建物詳細を見る
  • 独立洗面台
  • シャワートイレ
  • 浴室乾燥機
  • クローゼット
  • システムキッチン
  • ガスコンロ
  • エアコン
  • ダブルロックキー
  • フローリング

空室一覧
チェックした物件はまとめてお問い合わせ、検討中リストに追加できます。

その他12件を非表示

物件概要

建物詳細を見る
  • LINE
物件名 コンフォリア・リヴ南六郷
所在地 東京都大田区南六郷3-17-8
最寄駅 京急本線雑色駅」徒歩10分
京急本線六郷土手駅」徒歩16分
京急空港線糀谷駅」徒歩26分
JR京浜東北線蒲田駅」徒歩32分
東急多摩川線蒲田駅」徒歩32分
物件特徴 REIT系ブランドマンション、デザイナーズ、ペット可
構造規模 地上6階 RC造
総戸数 61戸 築年月 2026年4月
賃料 121,000 管理費 8,000円
敷金/礼金 1ヶ月/0ヶ月 仲介手数料 0ヶ月
フリーレント 0ヶ月 更新料 1ヶ月
所在階/向き 5階/北東 間取り 1K
専有面積 25.20m2
部屋詳細 洋室8.3帖/K2帖
契約形態 普通賃貸借契約 保証会社 利用必須
ペット飼育
敷1積増
SOHO・事務所 不可
入居日

即入居可

取引形態 媒介
問合番号 7777-505 情報更新日 2026年3月7日
キャンペーン情報 キャンペーン詳細内容やお見積り等は、即日ご案内をさせて頂きます
※キャンペーン適用には、制約条件・違約金等はございません
※次回更新予定日は、上記の情報更新日から2週間後になります

建物設備

建物詳細を見る
  • エレベーター
  • オートロック
  • 宅配ボックス
  • TVドアホン
  • 駐車場
  • バイク置き場
  • 駐輪場
  • 敷地内ゴミ置き場
  • 防犯カメラ
  • BS
  • CS
  • CATV
  • インターネット無料

※建物周辺情報はGoogleMapを使用しており、物件の表示位置が実際の場所と多少異なる場合があります。

掲載情報について

  • ※掲載情報が現況と異なる場合は、現況を優先させていただきます。
  • ※各種キャンペーン情報は予告なく変更・終了する場合がございます。事前に必ず募集条件をご確認くださいませ。
  • ※各部屋毎に敷金・礼金・キャンペーンの内容が異なる場合がございます。詳細は各部屋ページをご確認くださいませ。
  • ※分譲マンションの場合、各所有者様毎に室内の内装・設備が変更されている場合がございます。
  • ※分譲マンションの場合、建物自体が許可していても各所有者様毎に室内のペット飼育・SOHO 利用について禁止の場合がございます。
  • ※各詳細については、メールまたはお電話にて、お気軽にお問い合わせくださいませ。
  • 還元キャンペーンバナー
  • ランキングページバナー
「中小企業からニッポンを元気にプロジェクト」公式アンバサダー前田敦子

コンフォリア・リヴ南六郷505の
お問い合わせはこちらから

お問い合わせ

0120-139-692

電話受付 24時間 年中無休

内覧予約・空室確認・初期費用概算等
是非、お気軽にお問い合わせくださいませ。

〒103-0012 東京都中央区日本橋堀留町 1-8-11 日本橋人形町スクエア 3階
最寄駅:日比谷線・浅草線「人形町駅」徒歩3分サイト運営会社

おすすめ物件紹介

おすすめ画像1

グランパセオ蒲田3

■2026年2月竣工■京急蒲田駅徒歩7分■総戸数26戸■東京都大田区蒲田本町2-2-4■地上10階 RC造■フリーレント2ヶ月

おすすめ画像2

ブリリアイスト洗足池の杜

■2026年3月竣工■石川台駅徒歩4分■総戸数42戸■東京都大田区東雪谷1-9-13■地上5階 木造(一部RC造)

おすすめ画像3

ザ・ライオンズフォーシア蒲田

■2026年2月竣工■蒲田駅徒歩4分■総戸数69戸■東京都大田区西蒲田8-21-8■地上15階 RC造■フリーレント2ヶ月

おすすめ画像4

スタイリオ蒲田ウエスト

■2026年3月竣工■蒲田駅徒歩4分■総戸数87戸■東京都大田区西蒲田7-50-10■地上14階 RC造■フリーレント1ヶ月

おすすめ画像5

ガーデンザヴィス南蒲田

■2025年5月竣工■京急蒲田駅徒歩5分■総戸数38戸■東京都大田区南蒲田2-4-20■地上12階 RC造■フリーレント2ヶ月

おすすめ画像6

ベルファース蒲田ウエスト

■2026年2月竣工■蒲田駅徒歩4分■総戸数87戸■東京都大田区西蒲田8-22-10■地上15階 RC造■フリーレント2ヶ月

おすすめ画像7

エストゥルース馬込

■2025年10月竣工■馬込駅徒歩6分■総戸数31戸■東京都大田区南馬込1-24-12■地上3階 RC造■フリーレント1ヶ月

おすすめ画像8

RJRプレシア蒲田

■2026年4月竣工■蒲田駅徒歩10分■総戸数130戸■東京都大田区西蒲田4-15-11■地上8階 RC造

おすすめ画像9

プライムガーデン大森

■2025年11月竣工■大森駅徒歩5分■総戸数67戸■東京都大田区大森北1-34-17■地上12階 RC造

おすすめ画像10

エスグランデ大森

■2025年9月竣工■大森町駅徒歩6分■総戸数35戸■東京都大田区大森西5-17-7■地上4階 RC造

おすすめ画像11

スタイリオ池上サウス

■2025年10月竣工■池上駅徒歩4分■総戸数49戸■東京都大田区池上6-20-2■地上5階 RC造■フリーレント1ヶ月

おすすめ画像12

プレディアコート大森山王

■2025年10月竣工■大森駅徒歩11分■総戸数40戸■東京都大田区山王3-9-4■地上11階 RC造■フリーレント1ヶ月

おすすめ画像13

ブルックサイドレジデンス木場

■2026年3月竣工■木場駅徒歩9分■総戸数563戸■東京都江東区塩浜2-8-1■地上18階 RC造

おすすめ画像14

ロイヤルパークス有明

■2026年1月竣工■有明テニスの森駅9分■総戸数642戸■東京都江東区有明1-4-43■地上15階 RC造■フリーレント2ヶ月

おすすめ画像15

ウエリスアーバン水天宮前

■2023年3月竣工■水天宮前駅徒歩9分■総戸数431戸■東京都江東区佐賀2-8-4■地上13階 RC造■2026年3月末迄フリーレント

おすすめ画像16

コンフォリア新宿イーストサイドタワー

■2011年12月竣工■東新宿駅徒歩2分■総戸数761戸■東京都新宿区新宿6-27-29■地上32階 地下1階 RC造■フリーレント1ヶ月

最近見た物件

すべての最近見た物件を見る
pagetop