ウエリスアーバン住吉ウエスト 401|仲介料無料の賃貸情報

NEW
ウエリスアーバン住吉ウエスト 401
新 築 還元率UP

▶ 契約金のお得さ圧倒的。比べてみれば、REIT FIND

  • 礼金0
  • 仲介手数料無料
  • フリーレント
賃料 151,000
共益費/管理費 10,000円
敷金/礼金 0ヶ月/0ヶ月
仲介/FR 0ヶ月/1ヶ月
所在階/向き 4階/西
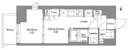
間取/面積 1DK/26.89m2
入居日 即入居可
情報更新日 2026年4月21日

部屋設備

建物詳細を見る
  • 独立洗面台
  • 追い焚き
  • シャワートイレ
  • 浴室乾燥機
  • クローゼット
  • システムキッチン
  • ガスコンロ
  • エアコン
  • ダブルロックキー
  • フローリング
  • 角部屋

空室一覧
チェックした物件はまとめてお問い合わせ、検討中リストに追加できます。

その他9件を非表示

物件概要

建物詳細を見る
  • LINE
物件名 ウエリスアーバン住吉ウエスト
所在地 東京都江東区猿江1-1-9
最寄駅 東京メトロ半蔵門線住吉駅」徒歩9分
都営新宿線住吉駅」徒歩9分
都営新宿線菊川駅」徒歩9分
東京メトロ半蔵門線清澄白河駅」徒歩16分
都営大江戸線清澄白河駅」徒歩16分
物件特徴 REIT系ブランドマンション、デザイナーズ
構造規模 地上10階 RC造
総戸数 57戸 築年月 2026年3月
賃料 151,000 管理費 10,000円
敷金/礼金 0ヶ月/0ヶ月 仲介手数料 0ヶ月
フリーレント 1ヶ月 更新料 1ヶ月
所在階/向き 4階/西 間取り 1DK
専有面積 26.89m2
部屋詳細 DK6.4帖/洋室4.5帖
契約形態 普通賃貸借契約 保証会社 利用必須
ペット飼育 不可
SOHO・事務所 不可
入居日

即入居可

取引形態 媒介
問合番号 7801-401 情報更新日 2026年4月21日
キャンペーン情報 キャンペーン詳細内容やお見積り等は、即日ご案内をさせて頂きます
※キャンペーン適用には、制約条件・違約金等はございません
※次回更新予定日は、上記の情報更新日から2週間後になります

建物設備

建物詳細を見る
  • エレベーター
  • オートロック
  • 宅配ボックス
  • TVドアホン
  • 駐車場
  • バイク置き場
  • 駐輪場
  • ラウンジ
  • 敷地内ゴミ置き場
  • 内廊下
  • 24時間管理
  • 防犯カメラ
  • BS
  • CS
  • CATV
  • インターネット無料

※建物周辺情報はGoogleMapを使用しており、物件の表示位置が実際の場所と多少異なる場合があります。

掲載情報について

  • ※掲載情報が現況と異なる場合は、現況を優先させていただきます。
  • ※各種キャンペーン情報は予告なく変更・終了する場合がございます。事前に必ず募集条件をご確認くださいませ。
  • ※各部屋毎に敷金・礼金・キャンペーンの内容が異なる場合がございます。詳細は各部屋ページをご確認くださいませ。
  • ※分譲マンションの場合、各所有者様毎に室内の内装・設備が変更されている場合がございます。
  • ※分譲マンションの場合、建物自体が許可していても各所有者様毎に室内のペット飼育・SOHO 利用について禁止の場合がございます。
  • ※各詳細については、メールまたはお電話にて、お気軽にお問い合わせくださいませ。
  • 還元キャンペーンバナー
  • ランキングページバナー
「中小企業からニッポンを元気にプロジェクト」公式アンバサダー前田敦子

ウエリスアーバン住吉ウエスト401の
お問い合わせはこちらから

お問い合わせ

0120-139-692

電話受付 24時間 年中無休

内覧予約・空室確認・初期費用概算等
是非、お気軽にお問い合わせくださいませ。

〒103-0012 東京都中央区日本橋堀留町 1-8-11 日本橋人形町スクエア 3階
最寄駅:日比谷線・浅草線「人形町駅」徒歩3分サイト運営会社

おすすめ物件紹介

おすすめ画像1

ルミーク門前仲町

■2026年3月竣工■門前仲町駅徒歩9分■総戸数34戸■東京都江東区冬木21-20■地上10階 RC造■フリーレント1ヶ月

おすすめ画像2

ウエリスアーバン住吉イースト

■2026年3月竣工■住吉駅徒歩8分■総戸数76戸■東京都江東区猿江1-1-11■地上10階 RC造■フリーレント1ヶ月

おすすめ画像3

ブリリアイスト門前仲町

■2026年2月竣工■門前仲町駅徒歩7分■総戸数60戸■東京都江東区深川2-24-4■地上10階 RC造■フリーレント1ヶ月

おすすめ画像4

OAKLANCE森下2

■2026年1月竣工■森下駅徒歩2分■総戸数82戸■東京都江東区新大橋2-10-5■地上15階 RC造■フリーレント1ヶ月

おすすめ画像5

タイズ住吉

■2026年1月竣工■住吉駅徒歩11分■総戸数20戸■東京都江東区海辺14-11■地上5階 地下1階 RC造■フリーレント1ヶ月

おすすめ画像6

クレストコート東陽町

■2026年2月竣工■東陽町駅徒歩5分■総戸数126戸■東京都江東区東陽3-22-34■地上14階 RC造■フリーレント2ヶ月

おすすめ画像7

コンフォリア・リヴ木場イースト2

■2025年11月竣工■木場駅徒歩8分■総戸数22戸■東京都江東区東陽1-29-6■地上8階 RC造

おすすめ画像8

コンフォリア・リヴ木場イースト1

■2025年11月竣工■木場駅徒歩8分■総戸数26戸■東京都江東区東陽1-28-7■地上9階 RC造

おすすめ画像9

パークアクシス新大橋

■2026年1月竣工■森下駅徒歩5分■総戸数33戸■東京都江東区新大橋2-15-6■地上12階 RC造

おすすめ画像10

ガリシア亀戸水神

■2025年11月竣工■亀戸水神駅徒歩2分■総戸数24戸■東京都江東区亀戸8-17-7■地上9階 RC造

おすすめ画像11

ルフォンリヴェント清澄白河

■2025年11月竣工■清澄白河駅徒歩3分■総戸数27戸■東京都江東区三好1-1-1■地上10階 RC造■フリーレント1ヶ月

おすすめ画像12

リヴシティ亀戸

■2025年11月■小村井駅徒歩11分■総戸数 37戸■東京都江東区亀戸3-41-3■地上8階 RC造■フリーレント1ヶ月

おすすめ画像13

ブルックサイドレジデンス木場

■2026年3月竣工■木場駅徒歩9分■総戸数563戸■東京都江東区塩浜2-8-1■地上18階 RC造■フリーレント1ヶ月

おすすめ画像14

ロイヤルパークス有明

■2026年1月竣工■有明テニスの森駅9分■総戸数642戸■東京都江東区有明1-4-43■地上15階 RC造■フリーレント3ヶ月

おすすめ画像15

ウエリスアーバン水天宮前

■2023年3月竣工■水天宮前駅徒歩9分■総戸数431戸■東京都江東区佐賀2-8-4■地上13階 RC造

おすすめ画像16

コンフォリア新宿イーストサイドタワー

■2011年12月竣工■東新宿駅徒歩2分■総戸数761戸■東京都新宿区新宿6-27-29■地上32階 地下1階 RC造■フリーレント1ヶ月

pagetop