ベルメゾン中村橋ノースNW 301|仲介料無料の賃貸情報

NEW
ベルメゾン中村橋ノースNW 301
新 築

▶ 契約金のお得さ圧倒的。比べてみれば、REIT FIND

  • 礼金0
  • 仲介手数料無料

部屋設備

建物詳細を見る
  • 独立洗面台
  • 追い焚き
  • シャワートイレ
  • 浴室乾燥機
  • クローゼット
  • システムキッチン
  • ガスコンロ
  • エアコン
  • ダブルロックキー
  • フローリング
  • 角部屋
  • 最上階
  • 南向き

空室一覧
チェックした物件はまとめてお問い合わせ、検討中リストに追加できます。

その他6件を非表示

物件概要

建物詳細を見る
  • LINE
物件名 ベルメゾン中村橋ノースNW
所在地 東京都練馬区中村北2-20-8
最寄駅 西武池袋線中村橋駅」徒歩6分
西武池袋線練馬駅」徒歩15分
都営大江戸線練馬駅」徒歩17分
西武池袋線富士見台駅」徒歩17分
都営大江戸線豊島園駅」徒歩17分
物件特徴 REIT系ブランドマンション、デザイナーズ
構造規模 地上3階 RC造
総戸数 30戸 築年月 2026年2月
賃料 311,000 管理費 10,000円
敷金/礼金 1ヶ月/0ヶ月 仲介手数料 0ヶ月
フリーレント 0ヶ月 更新料 1ヶ月
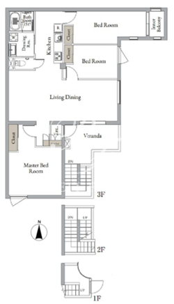
所在階/向き 3階/南 間取り 3LDK
専有面積 84.71m2
部屋詳細 LDK10帖/洋室5帖/洋室4帖/洋室3帖
契約形態 普通賃貸借契約 保証会社 利用必須
ペット飼育 不可
SOHO・事務所 不可
入居日

相談

取引形態 媒介
問合番号 7824-301 情報更新日 2026年3月22日
キャンペーン情報 キャンペーン詳細内容やお見積り等は、即日ご案内をさせて頂きます
※キャンペーン適用には、制約条件・違約金等はございません
※次回更新予定日は、上記の情報更新日から2週間後になります

建物設備

建物詳細を見る
  • 宅配ボックス
  • TVドアホン
  • 駐車場
  • バイク置き場
  • 駐輪場
  • 敷地内ゴミ置き場
  • 防犯カメラ
  • BS
  • CS
  • CATV
  • インターネット無料

※建物周辺情報はGoogleMapを使用しており、物件の表示位置が実際の場所と多少異なる場合があります。

掲載情報について

  • ※掲載情報が現況と異なる場合は、現況を優先させていただきます。
  • ※各種キャンペーン情報は予告なく変更・終了する場合がございます。事前に必ず募集条件をご確認くださいませ。
  • ※各部屋毎に敷金・礼金・キャンペーンの内容が異なる場合がございます。詳細は各部屋ページをご確認くださいませ。
  • ※分譲マンションの場合、各所有者様毎に室内の内装・設備が変更されている場合がございます。
  • ※分譲マンションの場合、建物自体が許可していても各所有者様毎に室内のペット飼育・SOHO 利用について禁止の場合がございます。
  • ※各詳細については、メールまたはお電話にて、お気軽にお問い合わせくださいませ。
  • 還元キャンペーンバナー
  • ランキングページバナー
「中小企業からニッポンを元気にプロジェクト」公式アンバサダー前田敦子

ベルメゾン中村橋ノースNW301の
お問い合わせはこちらから

お問い合わせ

0120-139-692

電話受付 24時間 年中無休

内覧予約・空室確認・初期費用概算等
是非、お気軽にお問い合わせくださいませ。

〒103-0012 東京都中央区日本橋堀留町 1-8-11 日本橋人形町スクエア 3階
最寄駅:日比谷線・浅草線「人形町駅」徒歩3分サイト運営会社

おすすめ物件紹介

最近見た物件

すべての最近見た物件を見る
pagetop