T's Cuore BLISS 自由が丘 302|仲介料無料の賃貸情報

NEW
T's Cuore BLISS 自由が丘 302
新 築 還元率UP

▶ 契約金のお得さ圧倒的。比べてみれば、REIT FIND

  • 礼金0
  • 仲介手数料無料
  • フリーレント
賃料 213,000
共益費/管理費 10,000円
敷金/礼金 1ヶ月/0ヶ月
仲介/FR 0ヶ月/1ヶ月
所在階/向き 3階/南東
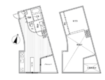
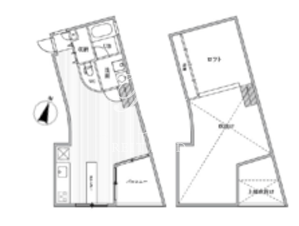
間取/面積 1R/33.26m2
入居日 即入居可
情報更新日 2026年4月1日

部屋設備

建物詳細を見る
  • 独立洗面台
  • 追い焚き
  • シャワートイレ
  • 浴室乾燥機
  • クローゼット
  • システムキッチン
  • IHコンロ
  • エアコン
  • フローリング
  • ロフト付き
  • 角部屋
  • 南向き

空室一覧
チェックした物件はまとめてお問い合わせ、検討中リストに追加できます。

物件概要

建物詳細を見る
  • LINE
物件名 T's Cuore BLISS 自由が丘
所在地 東京都目黒区自由が丘1-15-19
最寄駅 東急東横線自由が丘駅」徒歩6分
東急大井町線自由が丘駅」徒歩6分
東急目黒線奥沢駅」徒歩11分
東急東横線都立大学駅」徒歩14分
東急大井町線緑が丘駅」徒歩15分
物件特徴 REIT系ブランドマンション、デザイナーズ
構造規模 地上3階 木造
総戸数 6戸 築年月 2026年2月
賃料 213,000 管理費 10,000円
敷金/礼金 1ヶ月/0ヶ月 仲介手数料 0ヶ月
フリーレント 1ヶ月 更新料 0ヶ月
所在階/向き 3階/南東 間取り 1R
専有面積 33.26m2
部屋詳細 洋室8.5帖/ロフト5帖
契約形態 普通賃貸借契約 保証会社 利用必須
ペット飼育 不可
SOHO・事務所 不可
入居日

即入居可

取引形態 媒介
問合番号 7838-302 情報更新日 2026年4月1日
キャンペーン情報 キャンペーン詳細内容やお見積り等は、即日ご案内をさせて頂きます
※キャンペーン適用には、制約条件・違約金等はございません
※次回更新予定日は、上記の情報更新日から2週間後になります

建物設備

建物詳細を見る
  • オートロック
  • 宅配ボックス
  • TVドアホン
  • 敷地内ゴミ置き場
  • 防犯カメラ
  • BS
  • CS
  • CATV
  • インターネット無料

※建物周辺情報はGoogleMapを使用しており、物件の表示位置が実際の場所と多少異なる場合があります。

掲載情報について

  • ※掲載情報が現況と異なる場合は、現況を優先させていただきます。
  • ※各種キャンペーン情報は予告なく変更・終了する場合がございます。事前に必ず募集条件をご確認くださいませ。
  • ※各部屋毎に敷金・礼金・キャンペーンの内容が異なる場合がございます。詳細は各部屋ページをご確認くださいませ。
  • ※分譲マンションの場合、各所有者様毎に室内の内装・設備が変更されている場合がございます。
  • ※分譲マンションの場合、建物自体が許可していても各所有者様毎に室内のペット飼育・SOHO 利用について禁止の場合がございます。
  • ※各詳細については、メールまたはお電話にて、お気軽にお問い合わせくださいませ。
  • 還元キャンペーンバナー
  • ランキングページバナー
「中小企業からニッポンを元気にプロジェクト」公式アンバサダー前田敦子

T's Cuore BLISS 自由が丘302の
お問い合わせはこちらから

お問い合わせ

0120-139-692

電話受付 24時間 年中無休

内覧予約・空室確認・初期費用概算等
是非、お気軽にお問い合わせくださいませ。

〒103-0012 東京都中央区日本橋堀留町 1-8-11 日本橋人形町スクエア 3階
最寄駅:日比谷線・浅草線「人形町駅」徒歩3分サイト運営会社

おすすめ物件紹介

おすすめ画像1

デュオメゾン渋谷松濤

■2025年12月竣工■神泉駅徒歩5分■総戸数15戸■東京都目黒区駒場3-2-24■地上4階 RC造

おすすめ画像2

アジールコート都立大学

■2025年10月竣工■都立大学駅徒歩7分■総戸数45戸■東京都目黒区中根1-16-6■地上3階 地下1階 RC造■フリーレント1ヶ月

おすすめ画像3

ブランシエスタ目黒中央町

■2025年3月竣工■学芸大学駅徒歩11分■総戸数101戸■東京都目黒区中央町1-3-20■地上7階 RC造一部木造

おすすめ画像4

デュオフラッツ池尻大橋

■2025年10月竣工■池尻大橋駅徒歩7分■総戸数32戸■東京都目黒区大橋1-6-4■地上12階 RC造■フリーレント2ヶ月

おすすめ画像5

ウェルスクエア中目黒2

■2025年7月竣工■中目黒駅徒歩7分■総戸数17戸■東京都目黒区上目黒3-20-19 ■地上3階 RC造

おすすめ画像6

ラペルラ自由が丘

■2025年5月竣工■緑が丘駅徒歩10分■総戸数28戸■東京都目黒区緑が丘2-1-9■地上3階 地下1階 RC造■フリーレント1ヶ月

おすすめ画像7

アジールコート池尻大橋

■2025年4月竣工■池尻大橋駅徒歩11分■総戸数41戸■東京都目黒区青葉台3-14-14■地上5階 地下1階 RC造■フリーレント1ヶ月

おすすめ画像8

スタンズ柿の木坂

■2025年2月竣工■都立大学駅徒歩9分■総戸数35戸■東京都目黒区柿の木坂1-21-14■地上3階 地下1階 RC造

おすすめ画像9

ブリリアイスト池尻大橋

■2025年1月竣工■池尻大橋駅徒歩4分■総戸数197戸■東京都目黒区大橋2-17-5■地上7階 地下1階 RC造■フリーレント1ヶ月

おすすめ画像10

ルミークアン目黒

■2024年11月竣工■目黒駅徒歩4分■総戸数15戸■東京都目黒区目黒1-5-11■地上3階 地下2階 RC

おすすめ画像11

JP noie 碑文谷南

■2024年12月竣工■西小山駅徒歩14分■総戸数29戸■東京都目黒区南1-3-16■地上5階 RC造

おすすめ画像12

コンフォリア・リヴ目黒碑文谷

■2024年9月竣工■西小山駅徒歩13分■総戸数31戸■東京都目黒区碑文谷1-10-3■地上5階 RC造

おすすめ画像13

ブルックサイドレジデンス木場

■2026年3月竣工■木場駅徒歩9分■総戸数563戸■東京都江東区塩浜2-8-1■地上18階 RC造■フリーレント2ヶ月

おすすめ画像14

ロイヤルパークス有明

■2026年1月竣工■有明テニスの森駅9分■総戸数642戸■東京都江東区有明1-4-43■地上15階 RC造■フリーレント2ヶ月

おすすめ画像15

ウエリスアーバン水天宮前

■2023年3月竣工■水天宮前駅徒歩9分■総戸数431戸■東京都江東区佐賀2-8-4■地上13階 RC造■2026年3月末迄フリーレント

おすすめ画像16

コンフォリア新宿イーストサイドタワー

■2011年12月竣工■東新宿駅徒歩2分■総戸数761戸■東京都新宿区新宿6-27-29■地上32階 地下1階 RC造■フリーレント1ヶ月

pagetop