アクシアエムーシティ武蔵小山 B101|仲介料無料の賃貸情報

NEW
アクシアエムーシティ武蔵小山 B101
新 築 還元率UP

▶ 契約金のお得さ圧倒的。比べてみれば、REIT FIND

  • 礼金0
  • 仲介手数料無料

部屋設備

建物詳細を見る
  • 独立洗面台
  • シャワートイレ
  • 浴室乾燥機
  • クローゼット
  • システムキッチン
  • IHコンロ
  • エアコン
  • フローリング

空室一覧
チェックした物件はまとめてお問い合わせ、検討中リストに追加できます。

その他1件を非表示

物件概要

建物詳細を見る
  • LINE
物件名 アクシアエムーシティ武蔵小山
所在地 東京都品川区小山5-6-14
最寄駅 東急目黒線西小山駅」徒歩5分
東急目黒線武蔵小山駅」徒歩7分
東急目黒線洗足駅」徒歩15分
東急池上線戸越銀座駅」徒歩21分
東急池上線荏原中延駅」徒歩21分
物件特徴 REIT系ブランドマンション、デザイナーズ
構造規模 地上3階 地下1階 RC造
総戸数 35戸 築年月 2026年7月
賃料 104,000 管理費 5,000円
敷金/礼金 0ヶ月/0ヶ月 仲介手数料 0ヶ月
フリーレント 0ヶ月 更新料 1ヶ月
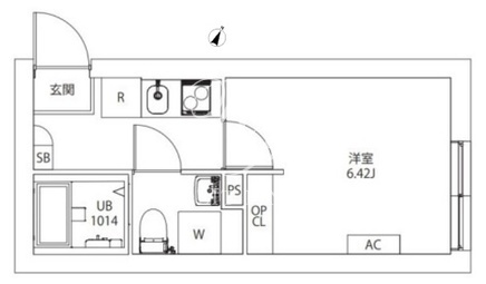
所在階/向き 地下1階/北東 間取り 1K
専有面積 20.00m2
部屋詳細 洋室6.42帖/K2帖
契約形態 普通賃貸借契約 保証会社 利用必須
ペット飼育 不可
SOHO・事務所 不可
入居日

8月中旬

取引形態 媒介
問合番号 7930-B101 情報更新日 2026年4月4日
キャンペーン情報 キャンペーン詳細内容やお見積り等は、即日ご案内をさせて頂きます
※キャンペーン適用には、制約条件・違約金等はございません
※次回更新予定日は、上記の情報更新日から2週間後になります

建物設備

建物詳細を見る
  • オートロック
  • 宅配ボックス
  • TVドアホン
  • 敷地内ゴミ置き場
  • 防犯カメラ
  • BS
  • CS
  • CATV
  • インターネット無料

※建物周辺情報はGoogleMapを使用しており、物件の表示位置が実際の場所と多少異なる場合があります。

掲載情報について

  • ※掲載情報が現況と異なる場合は、現況を優先させていただきます。
  • ※各種キャンペーン情報は予告なく変更・終了する場合がございます。事前に必ず募集条件をご確認くださいませ。
  • ※各部屋毎に敷金・礼金・キャンペーンの内容が異なる場合がございます。詳細は各部屋ページをご確認くださいませ。
  • ※分譲マンションの場合、各所有者様毎に室内の内装・設備が変更されている場合がございます。
  • ※分譲マンションの場合、建物自体が許可していても各所有者様毎に室内のペット飼育・SOHO 利用について禁止の場合がございます。
  • ※各詳細については、メールまたはお電話にて、お気軽にお問い合わせくださいませ。
  • 還元キャンペーンバナー
  • ランキングページバナー
「中小企業からニッポンを元気にプロジェクト」公式アンバサダー前田敦子

アクシアエムーシティ武蔵小山B101の
お問い合わせはこちらから

お問い合わせ

0120-139-692

電話受付 24時間 年中無休

内覧予約・空室確認・初期費用概算等
是非、お気軽にお問い合わせくださいませ。

〒103-0012 東京都中央区日本橋堀留町 1-8-11 日本橋人形町スクエア 3階
最寄駅:日比谷線・浅草線「人形町駅」徒歩3分サイト運営会社

おすすめ物件紹介

おすすめ画像1

ザ・パークハビオ五反田

■2022年11月竣工■五反田駅徒歩2分■総戸数61戸■東京都品川区西五反田2-17-6■地上14階 RC造

おすすめ画像2

コンフォリア・リヴ大崎

■2026年3月竣工■大崎駅徒歩10分■総戸数35戸■東京都品川区西品川2-2-33■地上6階 RC造

おすすめ画像3

グランパセオ大崎戸越銀座1

■2026年1月竣工■大崎駅徒歩9分■総戸数12戸■東京都品川区西品川3-14-3■地上4階 地下1階 RC造■フリーレント2ヶ月

おすすめ画像4

プライマル品川大井町

■2026年2月竣工■大井町駅徒歩9分■総戸数38戸■東京都品川区大井4-17-16■地上9階 RC造

おすすめ画像5

ブランシエスタ品川大井町パークエッジ

■2025年11月竣工■青物横丁駅徒歩5分■総戸数48戸■東京都品川区南品川6-7-16■地上7階 RC造■フリーレント1ヶ月

おすすめ画像6

アルティザ五反田

■2025年11月竣工■不動前駅徒歩9分■総戸数31戸■東京都品川区西五反田3-8-17■上12階 RC造

おすすめ画像7

コンフォリア戸越公園

■2025年7月竣工■戸越駅徒歩10分■総戸数44戸■東京都品川区豊町1-8-3■地上4階 地下1階 RC造

おすすめ画像8

アイフラット品川戸越パークサイド

■2025年10月竣工■戸越公園駅徒歩5分■総戸数44戸■東京都品川区戸越4-4-24■地上7階 RC造■フリーレント1ヶ月

おすすめ画像9

コンフォリア・リヴ南品川

■2025年3月竣工■青物横丁駅徒歩5分■総戸数140戸■東京都品川区南品川3-6-14■地上10階 RC造

おすすめ画像10

アークマーク東大井

■2025年8月竣工■立会川駅徒歩6分■総戸数62戸■東京都品川区東大井3-13-6■地上5階 RC造

おすすめ画像11

シーズンフラッツ大井町

■2025年7月竣工■立会川駅徒歩6分■総戸数69戸■東京都品川区東大井3-16-5■地上14階 RC造■フリーレント2ヶ月

おすすめ画像12

オーガスタレジデンス大森

■2025年8月竣工■大森駅徒歩10分■総戸数84戸■東京都品川区南大井3-1-4■地上9階 RC造

おすすめ画像13

ブルックサイドレジデンス木場

■2026年3月竣工■木場駅徒歩9分■総戸数563戸■東京都江東区塩浜2-8-1■地上18階 RC造■フリーレント1ヶ月

おすすめ画像14

ロイヤルパークス有明

■2026年1月竣工■有明テニスの森駅9分■総戸数642戸■東京都江東区有明1-4-43■地上15階 RC造■フリーレント2ヶ月

おすすめ画像15

ウエリスアーバン水天宮前

■2023年3月竣工■水天宮前駅徒歩9分■総戸数431戸■東京都江東区佐賀2-8-4■地上13階 RC造■2026年3月末迄フリーレント

おすすめ画像16

コンフォリア新宿イーストサイドタワー

■2011年12月竣工■東新宿駅徒歩2分■総戸数761戸■東京都新宿区新宿6-27-29■地上32階 地下1階 RC造■フリーレント1ヶ月

pagetop