ジェノヴィア六町 208|仲介料無料の賃貸情報

NEW
ジェノヴィア六町 208
新 築 還元率UP

▶ 契約金のお得さ圧倒的。比べてみれば、REIT FIND

  • 礼金0
  • 仲介手数料無料
  • ペット可

部屋設備

建物詳細を見る
  • 独立洗面台
  • 追い焚き
  • シャワートイレ
  • 浴室乾燥機
  • クローゼット
  • システムキッチン
  • カウンターキッチン
  • ガスコンロ
  • エアコン
  • フローリング

空室一覧
チェックした物件はまとめてお問い合わせ、検討中リストに追加できます。

物件概要

建物詳細を見る
  • LINE
物件名 ジェノヴィア六町
所在地 東京都足立区加平2-3-16
最寄駅 つくばエクスプレス六町駅」徒歩9分
つくばエクスプレス青井駅」徒歩13分
東京メトロ千代田線北綾瀬駅」徒歩21分
東京メトロ千代田線綾瀬駅」徒歩33分
JR常磐線(上野~取手)綾瀬駅」徒歩33分
物件特徴 REIT系ブランドマンション、デザイナーズ、ペット可
構造規模 地上5階 RC造
総戸数 38戸 築年月 2026年2月
賃料 157,000 管理費 15,000円
敷金/礼金 0ヶ月/0ヶ月 仲介手数料 0ヶ月
フリーレント 0ヶ月 更新料 1ヶ月
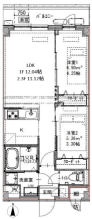
所在階/向き 2階/北 間取り 2LDK
専有面積 44.43m2
部屋詳細 LDK11.12帖/洋室4.25帖/洋室3.3帖
契約形態 普通賃貸借契約 保証会社 利用必須
ペット飼育
SOHO・事務所 不可
入居日

即入居可

取引形態 媒介
問合番号 7975-208 情報更新日 2026年4月21日
キャンペーン情報 キャンペーン詳細内容やお見積り等は、即日ご案内をさせて頂きます
※キャンペーン適用には、制約条件・違約金等はございません
※次回更新予定日は、上記の情報更新日から2週間後になります

建物設備

建物詳細を見る
  • エレベーター
  • オートロック
  • 宅配ボックス
  • TVドアホン
  • 敷地内ゴミ置き場
  • 防犯カメラ
  • BS
  • CS
  • CATV
  • インターネット無料

※建物周辺情報はGoogleMapを使用しており、物件の表示位置が実際の場所と多少異なる場合があります。

掲載情報について

  • ※掲載情報が現況と異なる場合は、現況を優先させていただきます。
  • ※各種キャンペーン情報は予告なく変更・終了する場合がございます。事前に必ず募集条件をご確認くださいませ。
  • ※各部屋毎に敷金・礼金・キャンペーンの内容が異なる場合がございます。詳細は各部屋ページをご確認くださいませ。
  • ※分譲マンションの場合、各所有者様毎に室内の内装・設備が変更されている場合がございます。
  • ※分譲マンションの場合、建物自体が許可していても各所有者様毎に室内のペット飼育・SOHO 利用について禁止の場合がございます。
  • ※各詳細については、メールまたはお電話にて、お気軽にお問い合わせくださいませ。
  • 還元キャンペーンバナー
  • ランキングページバナー
「中小企業からニッポンを元気にプロジェクト」公式アンバサダー前田敦子

ジェノヴィア六町208の
お問い合わせはこちらから

お問い合わせ

0120-139-692

電話受付 24時間 年中無休

内覧予約・空室確認・初期費用概算等
是非、お気軽にお問い合わせくださいませ。

〒103-0012 東京都中央区日本橋堀留町 1-8-11 日本橋人形町スクエア 3階
最寄駅:日比谷線・浅草線「人形町駅」徒歩3分サイト運営会社

おすすめ物件紹介

おすすめ画像1

アーバンパーク谷在家

■2025年10月竣工■谷在家駅徒歩3分■総戸数42戸■東京都足立区皿沼2-1-16■地上15階 RC造

おすすめ画像2

クレストコート北千住レジデンス

■2026年2月竣工■北千住駅徒歩7分■総戸数46戸■東京都足立区千住4-29-3■地上11階 RC造

おすすめ画像3

エスレジデンス綾瀬rivie

■2023年8月竣工■綾瀬駅徒歩3分■総戸数33戸■東京都足立区綾瀬3-16-2■地上12階 RC造

おすすめ画像4

テラス北千住

■2025年12月竣工■北千住駅徒歩8分■総戸数64戸■東京都足立区千住中居町8-1■地上15階 RC造■フリーレント2ヶ月

おすすめ画像5

アリビス五反野

■2025年11月竣工■五反野駅徒歩8分■総戸数61戸■東京都足立区梅田2-5-1■地上12階 RC造

おすすめ画像6

アルファコート谷在家

■2025年6月竣工■谷在家駅徒歩5分■総戸数41戸■東京都足立区谷在家2-21-2■地上11階 RC造■フリーレント2ヶ月

おすすめ画像7

コンフォリア竹ノ塚イースト

■2025年11月竣工■竹ノ塚駅徒歩3分■総戸数54戸■東京都足立区竹の塚6-16-11■地上11階 RC造

おすすめ画像8

グランパセオ谷在家

■2025年9月竣工■谷在家駅徒歩9分■総戸数90戸■東京都足立区皿沼3-6-4■地上8階 RC造■フリーレント2ヶ月

おすすめ画像9

ラグゼナ北千住2

■2026年3月竣工■京成関屋駅徒歩5分■総戸数47戸■東京都足立区千住曙町22-13■地上14階 RC造■フリーレント2ヶ月

おすすめ画像10

ルミーク北千住

■2025年9月竣工■北千住駅徒歩9分■総戸数33戸■東京都足立区千住中居町29-17■地上5階 RC造

おすすめ画像11

ザ・パークハビオ北千住

■2025年7月竣工■北千住駅徒歩4分■総戸数147戸■東京都足立区千住3-32■地上14階 RC造■フリーレント1ヶ月

おすすめ画像12

アーバンパーク綾瀬ウエスト

■2025年3月竣工■綾瀬駅徒歩8分■総戸数45戸■東京都足立区西綾瀬4-1-3■地上9階 RC造

おすすめ画像13

ブルックサイドレジデンス木場

■2026年3月竣工■木場駅徒歩9分■総戸数563戸■東京都江東区塩浜2-8-1■地上18階 RC造■フリーレント1ヶ月

おすすめ画像14

ロイヤルパークス有明

■2026年1月竣工■有明テニスの森駅9分■総戸数642戸■東京都江東区有明1-4-43■地上15階 RC造■フリーレント3ヶ月

おすすめ画像15

ウエリスアーバン水天宮前

■2023年3月竣工■水天宮前駅徒歩9分■総戸数431戸■東京都江東区佐賀2-8-4■地上13階 RC造

おすすめ画像16

コンフォリア新宿イーストサイドタワー

■2011年12月竣工■東新宿駅徒歩2分■総戸数761戸■東京都新宿区新宿6-27-29■地上32階 地下1階 RC造■フリーレント1ヶ月

最近見た物件

すべての最近見た物件を見る
pagetop