カスタリア初台 5階 成約済み物件 958-502

カスタリア初台 成約済み物件 (958-502)

▶ 契約金のお得さ圧倒的。比べてみれば、REIT FIND

賃料 ---
共益費/管理費 ---円
敷金/礼金 ---ヶ月/---ヶ月
仲介/FR ---ヶ月/---ヶ月
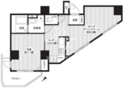
所在階/向き 5階/南東
間取/面積 1K/28.89m2
入居日 ---
情報更新日 2021年11月9日

部屋設備

建物詳細を見る
  • 独立洗面台
  • シャワートイレ
  • 浴室乾燥機
  • クローゼット
  • システムキッチン
  • ガスコンロ
  • エアコン
  • ダブルロックキー
  • フローリング
  • 角部屋
  • 南向き

空室一覧
チェックした物件はまとめてお問い合わせ、検討中リストに追加できます。

現在公開中の部屋情報がありません。
最新の情報はこちらからお問い合わせください。

物件概要

建物詳細を見る
物件名 カスタリア初台
所在地 東京都渋谷区本町1-10-3
最寄駅 京王新線初台駅」徒歩4分
京王新線幡ヶ谷駅」徒歩10分
小田急線参宮橋駅」徒歩16分
小田急線代々木八幡駅」徒歩16分
東京メトロ千代田線代々木上原駅」徒歩18分
物件特徴 REIT系ブランドマンション、デザイナーズ
構造規模 地上14階 RC造
総戸数 81戸 築年月 2006年11月
賃料 --- 管理費 ---円
敷金/礼金 ---ヶ月/---ヶ月 仲介手数料 ---ヶ月
フリーレント ---ヶ月 更新料 ---ヶ月
所在階/向き 5階/南東 間取り 1K
専有面積 28.89m2
部屋詳細 洋室8.5帖/K3.1帖
契約形態 普通賃貸借契約 保証会社 利用必須
ペット飼育 不可
SOHO・事務所 不可
入居日

---

取引形態 媒介
問合番号 958-502 情報更新日 2021年11月9日
キャンペーン情報 キャンペーン詳細内容やお見積り等は、即日ご案内をさせて頂きます
※キャンペーン適用には、制約条件・違約金等はございません

建物設備

建物詳細を見る
  • エレベーター
  • オートロック
  • 宅配ボックス
  • TVドアホン
  • 駐車場
  • バイク置き場
  • 駐輪場
  • 敷地内ゴミ置き場
  • 内廊下
  • 24時間管理
  • 防犯カメラ
  • BS
  • CS
  • CATV
  • インターネット無料

※建物周辺情報はGoogleMapを使用しており、物件の表示位置が実際の場所と多少異なる場合があります。

掲載情報について

  • ※掲載情報が現況と異なる場合は、現況を優先させていただきます。
  • ※各種キャンペーン情報は予告なく変更・終了する場合がございます。事前に必ず募集条件をご確認くださいませ。
  • ※各部屋毎に敷金・礼金・キャンペーンの内容が異なる場合がございます。詳細は各部屋ページをご確認くださいませ。
  • ※分譲マンションの場合、各所有者様毎に室内の内装・設備が変更されている場合がございます。
  • ※分譲マンションの場合、建物自体が許可していても各所有者様毎に室内のペット飼育・SOHO 利用について禁止の場合がございます。
  • ※各詳細については、メールまたはお電話にて、お気軽にお問い合わせくださいませ。
  • 還元キャンペーンバナー
  • ランキングページバナー
「中小企業からニッポンを元気にプロジェクト」公式アンバサダー前田敦子

カスタリア初台の
お問い合わせはこちらから

お問い合わせ

0120-139-692

電話受付 24時間 年中無休

内覧予約・空室確認・初期費用概算等
是非、お気軽にお問い合わせくださいませ。

〒103-0012 東京都中央区日本橋堀留町 1-8-11 日本橋人形町スクエア 3階
最寄駅:日比谷線・浅草線「人形町駅」徒歩3分サイト運営会社

おすすめ物件紹介

おすすめ画像1

アーバンパークグラン代官山

■2023年1月竣工■代官山駅徒歩10分■総戸数28戸■東京都渋谷区鉢山町13-18■地上5階 地下1階 RC造

おすすめ画像2

グランパセオ代々木上原2

■2025年8月竣工■東北沢駅徒歩3分■総戸数12戸■東京都渋谷区大山町8-5■地上3階 地下1階 RC造

おすすめ画像3

アジールコート松濤

■2025年8月竣工■神泉駅徒歩7分■総戸数51戸■東京都渋谷区松濤2-11-15■地上12階 RC造

おすすめ画像4

アイフラット渋谷西原

■2025年8月竣工■幡ヶ谷駅徒歩2分■総戸数28戸■東京都渋谷区西原2-31-3■地上6階 RC造

おすすめ画像5

コートモデリア広尾Tokyo

■2025年7月竣工■広尾駅徒歩7分■総戸数20戸■東京都渋谷区恵比寿2-20-2■地上5階 地下1階 RC造

おすすめ画像6

グランパセオ広尾

■2025年2月竣工■恵比寿駅徒歩11分■総戸数50戸■東京都渋谷区広尾3-12-39■地上13階 RC造■フリーレント1ヶ月

おすすめ画像7

アイフラット代々木上原

■2025年2月竣工■代々木上原駅徒歩3分■総戸数30戸■東京都渋谷区上原3-44-8■地上8階 RC造

おすすめ画像8

プライムガーデン恵比寿南

■2024年11月竣工■代官山駅徒歩5分■総戸数44戸■東京都渋谷区恵比寿南3-4-13■地上13階 RC造

おすすめ画像9

レーヴシティ千駄ヶ谷

■2024年9月竣工■北参道駅徒歩8分■総戸数31戸■東京都渋谷区千駄ヶ谷2-28-1■地上13階 地下1階 RC造

おすすめ画像10

オープンブルーム渋谷本町

■2024年5月竣工■西新宿五丁目駅10分■総戸数39戸■東京都渋谷区本町5-14-12■地上5階 RC造

おすすめ画像11

エルファーロ広尾

■2024年3月竣工■恵比寿駅徒歩8分■総戸数15戸■東京都渋谷区広尾1-7-20■地上3階 RC造

おすすめ画像12

オーキッドレジデンス渋谷富ヶ谷

■2024年2月竣工■代々木八幡駅徒歩9分■総戸数99戸■東京都渋谷区富ヶ谷2-14-2■地上13階 RC造

おすすめ画像13

ロイヤルパークス品川

■2025年1月竣工■品川駅徒歩11分■総戸数458戸■東京都港区港南3-5-21■地上28階 地下1階 RC造

おすすめ画像14

コンフォリア芝浦MOKU

■2024年10月竣工■田町駅徒歩9分■総戸数64戸■東京都港区芝浦4-11-16■地上9階 RC造

おすすめ画像15

ウエリスアーバン水天宮前

■2023年3月竣工■水天宮前駅徒歩9分■総戸数431戸■東京都江東区佐賀2-8-4■地上13階 RC造■フリーレント2ヶ月

おすすめ画像16

コンフォリア新宿イーストサイドタワー

■2011年12月竣工■東新宿駅徒歩2分■総戸数761戸■東京都新宿区新宿6-27-29■地上32階 地下1階 RC造■フリーレント1ヶ月

pagetop