ウエリスアーバン住吉ウエスト|仲介料無料

ウエリスアーバン住吉ウエスト
新 築還元率UP

▶ 契約金のお得さ圧倒的。比べてみれば、REIT FIND

  • 礼金0
  • 仲介手数料無料
  • フリーレント

契約金 初期費用【特別価格】
竣 工 2026年3月
最寄駅 住吉駅徒歩9分
総戸数 57戸

住 所 東京都江東区猿江1-1-9
概 要 地上10階 RC造
■全部屋対象/実質フリーレント2ヶ月/相談可
▶ REIT FIND特典でお得にご契約くださいませ。
1.都内最安値での契約を、即時に提示致します。
2.初期費用のお見積りを、即時に案内致します。
3.内覧・リモート内覧を、即時に提案致します。


■物件名フリガナ
ウエリスアーバンスミヨシウエスト
ウエリスアーバン住吉WEST

■近隣周辺施設情報
江東区立東川小学校まで約280m
江東区立深川第七中学校まで約570m
キッズスマイル江東猿江まで約170m
東京都立墨田工業高校まで約710m
セブンイレブン江東住吉2丁目店まで約540m
小林内科クリニックまで約490m
どらっぐぱぱす住吉店まで約460m
東京東信用金庫森下駅前支店三ツ目通り出張所まで約740m
ローソン住吉新大橋通店まで約420m
くすりの福太郎住吉2丁目店まで約490m

今月申し込みの方限定キャンペーン

礼金0仲介手数料無料フリーレントキャンペーン中です。
1.都内最安値での契約は、是非お任せください。
2.初期費用のお見積りは、是非お任せください。
3.内覧・リモート内覧は、是非お任せください。
※諸条件・詳細等は是非お問合せ下さいませ。

空室一覧
チェックした物件はまとめてお問い合わせ、検討中リストに追加できます。

その他9件を表示

物件概要

  • LINE
物件名 ウエリスアーバン住吉ウエスト
所在地 東京都江東区猿江1-1-9
最寄駅 東京メトロ半蔵門線住吉駅」徒歩9分
都営新宿線住吉駅」徒歩9分
都営新宿線菊川駅」徒歩9分
東京メトロ半蔵門線清澄白河駅」徒歩16分
都営大江戸線清澄白河駅」徒歩16分
物件特徴 REIT系ブランドマンション、デザイナーズ
構造規模 地上10階 RC造
総戸数 57戸 築年月 2026年3月
賃料 151,000円 - 310,000円 管理費 10,000円 - 15,000円
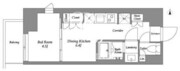
間取り 1DK - 2LDK 専有面積 26.89m2 - 53.79m2
問合番号 7801

■駐車場   有/月額44,000円(701・901・1001号室のみ貸出)
■バイク置場 有/月額4,400円
■駐輪場   有/無料
―――――――
■設 計   株式会社ナカノフドー建設東京本店一級建築士事務所
■施 工   株式会社ナカノフドー建設東京本店
■管理形式  巡回管理
―――――――
■保 険   借家人賠償付き火災保険要加入
■ペット   不可
■楽 器   不可
■鍵交換代  新築の為不要
■保証会社  利用必須(※大手法人契約の場合、例外あり)
■保証会社  初回保証委託料/月額賃料等の20%~100%
■保証会社  年間継続料/0.8万円~1.0万円 or
■保証会社  月額保証料賃料等の1%~2%
―――――――
■間取り
□1DK~2LDK(26.89㎡~48.05㎡)

■① 駐車場・バイク置場・駐輪場の詳細は、是非お問合せ下さい。
■② 内覧のご希望時は、物件現地待ち合わせ対応をしております。
■③ 物件写真の量と質、情報更新鮮度に特化して運営しています。

建物設備

建物詳細を見る
  • エレベーター
  • オートロック
  • 宅配ボックス
  • TVドアホン
  • 駐車場
  • バイク置き場
  • 駐輪場
  • ラウンジ
  • 敷地内ゴミ置き場
  • 24時間管理
  • 防犯カメラ
  • BS
  • CS
  • CATV
  • インターネット無料

※建物周辺情報はGoogleMapを使用しており、物件表示位置が実際の位置と多少異なる場合がございます。

掲載情報について

  • ※掲載情報が現況と異なる場合は、現況を優先させていただきます。
  • ※各種キャンペーン情報は予告なく変更・終了する場合がございます。事前に必ず募集条件をご確認くださいませ。
  • ※各部屋毎に敷金・礼金・キャンペーンの内容が異なる場合がございます。詳細は各部屋ページをご確認くださいませ。
  • ※分譲マンションの場合、各所有者様毎に室内の内装・設備が変更されている場合がございます。
  • ※分譲マンションの場合、建物自体が許可していても各所有者様毎に室内のペット飼育・SOHO 利用について禁止の場合がございます。
  • ※各詳細については、メールまたはお電話にて、お気軽にお問い合わせくださいませ。
  • 還元キャンペーンバナー
  • ランキングページバナー
「中小企業からニッポンを元気にプロジェクト」公式アンバサダー前田敦子

ウエリスアーバン住吉ウエストの
お問い合わせはこちらから

お問い合わせ

0120-139-692

電話受付 24時間 年中無休

内覧予約・空室確認・初期費用概算等
是非、お気軽にお問い合わせくださいませ。

〒103-0012 東京都中央区日本橋堀留町 1-8-11 日本橋人形町スクエア 3階
最寄駅:日比谷線・浅草線「人形町駅」徒歩3分サイト運営会社

ご成約済みの部屋一覧

所在階 間取り 面積 賃料 共益費/管理費 敷金/礼金 仲介手数料 詳細
1F 1LDK 32.96m2 ---円 ---円 ---ヶ月/---ヶ月 ---ヶ月 詳細
1F 1DK 26.89m2 ---円 ---円 ---ヶ月/---ヶ月 ---ヶ月 詳細
3F 1DK 26.89m2 ---円 ---円 ---ヶ月/---ヶ月 ---ヶ月 詳細
3F 1DK 26.89m2 ---円 ---円 ---ヶ月/---ヶ月 ---ヶ月 詳細
3F 1DK 26.89m2 ---円 ---円 ---ヶ月/---ヶ月 ---ヶ月 詳細
3F 1DK 26.89m2 ---円 ---円 ---ヶ月/---ヶ月 ---ヶ月 詳細
5F 1DK 26.89m2 ---円 ---円 ---ヶ月/---ヶ月 ---ヶ月 詳細
5F 1DK 26.89m2 ---円 ---円 ---ヶ月/---ヶ月 ---ヶ月 詳細
5F 1DK 26.89m2 ---円 ---円 ---ヶ月/---ヶ月 ---ヶ月 詳細
9F 2LDK 46.45m2 ---円 ---円 ---ヶ月/---ヶ月 ---ヶ月 詳細

表示

おすすめ物件紹介

おすすめ画像1

ルミーク門前仲町

■2026年3月竣工■門前仲町駅徒歩9分■総戸数34戸■東京都江東区冬木21-20■地上10階 RC造■フリーレント1ヶ月

おすすめ画像2

ウエリスアーバン住吉イースト

■2026年3月竣工■住吉駅徒歩8分■総戸数76戸■東京都江東区猿江1-1-11■地上10階 RC造■フリーレント1ヶ月

おすすめ画像3

ブリリアイスト門前仲町

■2026年2月竣工■門前仲町駅徒歩7分■総戸数60戸■東京都江東区深川2-24-4■地上10階 RC造

おすすめ画像4

OAKLANCE森下2

■2026年1月竣工■森下駅徒歩2分■総戸数82戸■東京都江東区新大橋2-10-5■地上15階 RC造■フリーレント1ヶ月

おすすめ画像5

タイズ住吉

■2026年1月竣工■住吉駅徒歩11分■総戸数20戸■東京都江東区海辺14-11■地上5階 地下1階 RC造■フリーレント1ヶ月

おすすめ画像6

クレストコート東陽町

■2026年2月竣工■東陽町駅徒歩5分■総戸数126戸■東京都江東区東陽3-22-34■地上14階 RC造■フリーレント2ヶ月

おすすめ画像7

コンフォリア・リヴ木場イースト2

■2025年11月竣工■木場駅徒歩8分■総戸数22戸■東京都江東区東陽1-29-6■地上8階 RC造

おすすめ画像8

コンフォリア・リヴ木場イースト1

■2025年11月竣工■木場駅徒歩8分■総戸数26戸■東京都江東区東陽1-28-7■地上9階 RC造

おすすめ画像9

パークアクシス新大橋

■2026年1月竣工■森下駅徒歩5分■総戸数33戸■東京都江東区新大橋2-15-6■地上12階 RC造

おすすめ画像10

ガリシア亀戸水神

■2025年11月竣工■亀戸水神駅徒歩2分■総戸数24戸■東京都江東区亀戸8-17-7■地上9階 RC造

おすすめ画像11

ルフォンリヴェント清澄白河

■2025年11月竣工■清澄白河駅徒歩3分■総戸数27戸■東京都江東区三好1-1-1■地上10階 RC造■フリーレント1ヶ月

おすすめ画像12

リヴシティ亀戸

■2025年11月■小村井駅徒歩11分■総戸数 37戸■東京都江東区亀戸3-41-3■地上8階 RC造■フリーレント1ヶ月

おすすめ画像13

ブルックサイドレジデンス木場

■2026年3月竣工■木場駅徒歩9分■総戸数563戸■東京都江東区塩浜2-8-1■地上18階 RC造■フリーレント1ヶ月

おすすめ画像14

ロイヤルパークス有明

■2026年1月竣工■有明テニスの森駅9分■総戸数642戸■東京都江東区有明1-4-43■地上15階 RC造■フリーレント2ヶ月

おすすめ画像15

ウエリスアーバン水天宮前

■2023年3月竣工■水天宮前駅徒歩9分■総戸数431戸■東京都江東区佐賀2-8-4■地上13階 RC造■2026年3月末迄フリーレント

おすすめ画像16

コンフォリア新宿イーストサイドタワー

■2011年12月竣工■東新宿駅徒歩2分■総戸数761戸■東京都新宿区新宿6-27-29■地上32階 地下1階 RC造■フリーレント1ヶ月

最近見た物件

すべての最近見た物件を見る
pagetop