パークアクシス日本橋ステージ|仲介料無料

パークアクシス日本橋ステージ
還元率UP

▶ 契約金のお得さ圧倒的。比べてみれば、REIT FIND

  • 仲介手数料無料

契約金 初期費用【特別価格】
竣 工 2004年8月
最寄駅 水天宮前駅徒歩2分
総戸数 185戸

住 所 東京都中央区日本橋蛎殻町1-37-12
概 要 地上14階地下1階 RC造
▶ REIT FIND特典でお得にご契約くださいませ。
1.都内最安値での契約を、即時に提示致します。
2.初期費用のお見積りを、即時に案内致します。
3.内覧・リモート内覧を、即時に提案致します。


■物件名フリガナ
パークアクシスニホンバシステージ
Park Axis 日本橋STAGE

■近隣周辺施設情報
箱崎川第二公園まで約220m
日本橋保育園まで330m
中央区立有馬小学校まで430m
ピーコックストアトルナーレ日本橋浜町店まで約570m
山村病院まで約800m
中央区立日本橋中学校まで約1590m
ファミリーマート日本橋かきがら町店まで約120m
みちのく銀行東京支店まで約290m
まいばすけっと日本橋蛎殻町店まで約90m
トモズ水天宮前店まで約270m
マツモトキヨシ水天宮駅前店まで約300m
東京シティターミナル内郵便局まで約200m

今月申し込みの方限定キャンペーン

仲介手数料無料キャンペーン中です。
1.都内最安値での契約は、是非お任せください。
2.初期費用のお見積りは、是非お任せください。
3.内覧・リモート内覧は、是非お任せください。
※諸条件・詳細等は是非お問合せ下さいませ。

空室一覧
チェックした物件はまとめてお問い合わせ、検討中リストに追加できます。

物件概要

  • LINE
物件名 パークアクシス日本橋ステージ
所在地 東京都中央区日本橋蛎殻町1-37-12
最寄駅 東京メトロ半蔵門線水天宮前駅」徒歩2分
東京メトロ日比谷線人形町駅」徒歩5分
都営浅草線人形町駅」徒歩5分
東京メトロ東西線茅場町駅」徒歩8分
東京メトロ日比谷線茅場町駅」徒歩8分
物件特徴 REIT系ブランドマンション、デザイナーズ
構造規模 地上14階 地下1階 RC造
総戸数 185戸 築年月 2004年8月
賃料 286,000円 - 335,000円 管理費 0円 - 0円
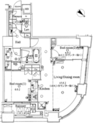
間取り 1LDK - 2LDK 専有面積 57.70m2 - 64.05m2
問合番号 514

■駐車場   43台(機械式)月額38,500円
■バイク置場 8台
■駐輪場   184台
―――――――
■設 計   三井住友建設株式会社
■施 工   三井住友建設株式会社
■管理形式  通勤管理
―――――――
■保 険   借家人賠償付き火災保険要加入
■ペット   不可
■楽 器   ピアノ相談可
■鍵交換代  初回契約時16,500円(税込)
■保証会社  利用必須(※大手法人契約の場合、例外あり)
■保証会社  初回保証委託料/月額賃料等の20%~100%
■保証会社  年間継続料/0.8万円~1.0万円 or
■保証会社  月額保証料賃料等の1%~2%  
―――――――
■間取り
□1R/32.27㎡~41.9㎡/24戸
□1K/30.01㎡~38.89㎡/50戸
□1LDK/41.14㎡~62.76㎡/46戸
□2LDK/64.05㎡/13戸
□3LDK/85.68㎡~88.8㎡/26戸
―――――――
■共用施設  
□1階    ラウンジ
□1階    コンシェルジュデスク/コンシェルジュサービス

■① 駐車場・バイク置場・駐輪場の詳細は、是非お問合せ下さい。
■② 内覧のご希望時は、物件現地待ち合わせ対応をしております。
■③ 物件写真の量と質、情報更新鮮度に特化して運営しています。

建物設備

建物詳細を見る
  • エレベーター
  • オートロック
  • 宅配ボックス
  • TVドアホン
  • 駐車場
  • バイク置き場
  • 駐輪場
  • ラウンジ
  • コンシェルジュ
  • 敷地内ゴミ置き場
  • 内廊下
  • 24時間管理
  • 防犯カメラ
  • BS
  • CS
  • CATV
  • インターネット
  • 楽器可

※建物周辺情報はGoogleMapを使用しており、物件表示位置が実際の位置と多少異なる場合がございます。

掲載情報について

  • ※掲載情報が現況と異なる場合は、現況を優先させていただきます。
  • ※各種キャンペーン情報は予告なく変更・終了する場合がございます。事前に必ず募集条件をご確認くださいませ。
  • ※各部屋毎に敷金・礼金・キャンペーンの内容が異なる場合がございます。詳細は各部屋ページをご確認くださいませ。
  • ※分譲マンションの場合、各所有者様毎に室内の内装・設備が変更されている場合がございます。
  • ※分譲マンションの場合、建物自体が許可していても各所有者様毎に室内のペット飼育・SOHO 利用について禁止の場合がございます。
  • ※各詳細については、メールまたはお電話にて、お気軽にお問い合わせくださいませ。
  • 還元キャンペーンバナー
  • ランキングページバナー
「中小企業からニッポンを元気にプロジェクト」公式アンバサダー前田敦子

パークアクシス日本橋ステージの
お問い合わせはこちらから

お問い合わせ

0120-139-692

電話受付 24時間 年中無休

内覧予約・空室確認・初期費用概算等
是非、お気軽にお問い合わせくださいませ。

〒103-0012 東京都中央区日本橋堀留町 1-8-11 日本橋人形町スクエア 3階
最寄駅:日比谷線・浅草線「人形町駅」徒歩3分サイト運営会社

ご成約済みの部屋一覧

所在階 間取り 面積 賃料 共益費/管理費 敷金/礼金 仲介手数料 詳細
2F 3LDK 88.80m2 ---円 ---円 ---ヶ月/---ヶ月 ---ヶ月 詳細
2F 1K 30.01m2 ---円 ---円 ---ヶ月/---ヶ月 ---ヶ月 詳細
2F 1K 30.17m2 ---円 ---円 ---ヶ月/---ヶ月 ---ヶ月 詳細
2F 1K 34.34m2 ---円 ---円 ---ヶ月/---ヶ月 ---ヶ月 詳細
2F 1K 30.21m2 ---円 ---円 ---ヶ月/---ヶ月 ---ヶ月 詳細
2F 1K 31.09m2 ---円 ---円 ---ヶ月/---ヶ月 ---ヶ月 詳細
2F 1R 35.44m2 ---円 ---円 ---ヶ月/---ヶ月 ---ヶ月 詳細
2F 1R 32.27m2 ---円 ---円 ---ヶ月/---ヶ月 ---ヶ月 詳細
2F 1K 38.89m2 ---円 ---円 ---ヶ月/---ヶ月 ---ヶ月 詳細
3F 1LDK 60.14m2 ---円 ---円 ---ヶ月/---ヶ月 ---ヶ月 詳細
3F 2LDK 65.50m2 ---円 ---円 ---ヶ月/---ヶ月 ---ヶ月 詳細
3F 2LDK 78.74m2 ---円 ---円 ---ヶ月/---ヶ月 ---ヶ月 詳細
3F 1LDK 45.49m2 ---円 ---円 ---ヶ月/---ヶ月 ---ヶ月 詳細
3F 1K 30.01m2 ---円 ---円 ---ヶ月/---ヶ月 ---ヶ月 詳細
3F 1K 30.17m2 ---円 ---円 ---ヶ月/---ヶ月 ---ヶ月 詳細
3F 1K 34.34m2 ---円 ---円 ---ヶ月/---ヶ月 ---ヶ月 詳細
3F 1K 30.21m2 ---円 ---円 ---ヶ月/---ヶ月 ---ヶ月 詳細
3F 1R 41.90m2 ---円 ---円 ---ヶ月/---ヶ月 ---ヶ月 詳細
3F 1R 32.27m2 ---円 ---円 ---ヶ月/---ヶ月 ---ヶ月 詳細
4F 1LDK 60.14m2 ---円 ---円 ---ヶ月/---ヶ月 ---ヶ月 詳細
4F 3LDK 88.80m2 ---円 ---円 ---ヶ月/---ヶ月 ---ヶ月 詳細
4F 2LDK 65.50m2 ---円 ---円 ---ヶ月/---ヶ月 ---ヶ月 詳細
4F 1K 30.01m2 ---円 ---円 ---ヶ月/---ヶ月 ---ヶ月 詳細
4F 1K 34.34m2 ---円 ---円 ---ヶ月/---ヶ月 ---ヶ月 詳細
4F 1K 30.21m2 ---円 ---円 ---ヶ月/---ヶ月 ---ヶ月 詳細
4F 1R 35.44m2 ---円 ---円 ---ヶ月/---ヶ月 ---ヶ月 詳細
4F 1K 38.89m2 ---円 ---円 ---ヶ月/---ヶ月 ---ヶ月 詳細
5F 1LDK 60.14m2 ---円 ---円 ---ヶ月/---ヶ月 ---ヶ月 詳細
5F 2LDK 78.74m2 ---円 ---円 ---ヶ月/---ヶ月 ---ヶ月 詳細
5F 1LDK 45.49m2 ---円 ---円 ---ヶ月/---ヶ月 ---ヶ月 詳細
5F 1K 30.17m2 ---円 ---円 ---ヶ月/---ヶ月 ---ヶ月 詳細
5F 1K 34.34m2 ---円 ---円 ---ヶ月/---ヶ月 ---ヶ月 詳細
5F 1K 30.21m2 ---円 ---円 ---ヶ月/---ヶ月 ---ヶ月 詳細
5F 1K 31.09m2 ---円 ---円 ---ヶ月/---ヶ月 ---ヶ月 詳細
5F 1R 41.90m2 ---円 ---円 ---ヶ月/---ヶ月 ---ヶ月 詳細
5F 1R 35.44m2 ---円 ---円 ---ヶ月/---ヶ月 ---ヶ月 詳細
5F 2LDK 64.05m2 ---円 ---円 ---ヶ月/---ヶ月 ---ヶ月 詳細
5F 1K 38.89m2 ---円 ---円 ---ヶ月/---ヶ月 ---ヶ月 詳細
6F 2LDK 65.50m2 ---円 ---円 ---ヶ月/---ヶ月 ---ヶ月 詳細
6F 1LDK 45.49m2 ---円 ---円 ---ヶ月/---ヶ月 ---ヶ月 詳細
6F 1K 30.01m2 ---円 ---円 ---ヶ月/---ヶ月 ---ヶ月 詳細
6F 1K 30.17m2 ---円 ---円 ---ヶ月/---ヶ月 ---ヶ月 詳細
6F 1R 41.90m2 ---円 ---円 ---ヶ月/---ヶ月 ---ヶ月 詳細
6F 1R 35.44m2 ---円 ---円 ---ヶ月/---ヶ月 ---ヶ月 詳細
6F 1R 32.27m2 ---円 ---円 ---ヶ月/---ヶ月 ---ヶ月 詳細
6F 1K 38.89m2 ---円 ---円 ---ヶ月/---ヶ月 ---ヶ月 詳細
7F 3LDK 88.80m2 ---円 ---円 ---ヶ月/---ヶ月 ---ヶ月 詳細
7F 2LDK 65.50m2 ---円 ---円 ---ヶ月/---ヶ月 ---ヶ月 詳細
7F 1LDK 45.49m2 ---円 ---円 ---ヶ月/---ヶ月 ---ヶ月 詳細
7F 1K 30.01m2 ---円 ---円 ---ヶ月/---ヶ月 ---ヶ月 詳細
7F 1K 30.17m2 ---円 ---円 ---ヶ月/---ヶ月 ---ヶ月 詳細
7F 1K 30.21m2 ---円 ---円 ---ヶ月/---ヶ月 ---ヶ月 詳細
7F 1K 31.09m2 ---円 ---円 ---ヶ月/---ヶ月 ---ヶ月 詳細
7F 1R 41.90m2 ---円 ---円 ---ヶ月/---ヶ月 ---ヶ月 詳細
7F 1R 32.27m2 ---円 ---円 ---ヶ月/---ヶ月 ---ヶ月 詳細
7F 1K 38.89m2 ---円 ---円 ---ヶ月/---ヶ月 ---ヶ月 詳細
8F 1LDK 60.14m2 ---円 ---円 ---ヶ月/---ヶ月 ---ヶ月 詳細
8F 2LDK 65.50m2 ---円 ---円 ---ヶ月/---ヶ月 ---ヶ月 詳細
8F 1LDK 45.49m2 ---円 ---円 ---ヶ月/---ヶ月 ---ヶ月 詳細
8F 3LDK 87.93m2 ---円 ---円 ---ヶ月/---ヶ月 ---ヶ月 詳細
8F 1LDK 60.18m2 ---円 ---円 ---ヶ月/---ヶ月 ---ヶ月 詳細
8F 1K 30.21m2 ---円 ---円 ---ヶ月/---ヶ月 ---ヶ月 詳細
8F 1R 35.44m2 ---円 ---円 ---ヶ月/---ヶ月 ---ヶ月 詳細
8F 2LDK 64.05m2 ---円 ---円 ---ヶ月/---ヶ月 ---ヶ月 詳細
8F 1R 32.27m2 ---円 ---円 ---ヶ月/---ヶ月 ---ヶ月 詳細
9F 3LDK 88.80m2 ---円 ---円 ---ヶ月/---ヶ月 ---ヶ月 詳細
9F 2LDK 65.50m2 ---円 ---円 ---ヶ月/---ヶ月 ---ヶ月 詳細
9F 3LDK 87.93m2 ---円 ---円 ---ヶ月/---ヶ月 ---ヶ月 詳細
9F 1K 34.34m2 ---円 ---円 ---ヶ月/---ヶ月 ---ヶ月 詳細
9F 1R 41.90m2 ---円 ---円 ---ヶ月/---ヶ月 ---ヶ月 詳細
9F 1R 35.44m2 ---円 ---円 ---ヶ月/---ヶ月 ---ヶ月 詳細
9F 2LDK 64.50m2 ---円 ---円 ---ヶ月/---ヶ月 ---ヶ月 詳細
9F 1R 32.27m2 ---円 ---円 ---ヶ月/---ヶ月 ---ヶ月 詳細
10F 3LDK 87.91m2 ---円 ---円 ---ヶ月/---ヶ月 ---ヶ月 詳細
10F 1LDK 60.18m2 ---円 ---円 ---ヶ月/---ヶ月 ---ヶ月 詳細
10F 1K 34.34m2 ---円 ---円 ---ヶ月/---ヶ月 ---ヶ月 詳細
10F 1LDK 41.14m2 ---円 ---円 ---ヶ月/---ヶ月 ---ヶ月 詳細
10F 1LDK 62.76m2 ---円 ---円 ---ヶ月/---ヶ月 ---ヶ月 詳細
11F 2LDK 65.50m2 ---円 ---円 ---ヶ月/---ヶ月 ---ヶ月 詳細
11F 2LDK 78.74m2 ---円 ---円 ---ヶ月/---ヶ月 ---ヶ月 詳細
11F 1LDK 45.49m2 ---円 ---円 ---ヶ月/---ヶ月 ---ヶ月 詳細
11F 1LDK 60.18m2 ---円 ---円 ---ヶ月/---ヶ月 ---ヶ月 詳細
11F 1K 34.34m2 ---円 ---円 ---ヶ月/---ヶ月 ---ヶ月 詳細
11F 1LDK 45.50m2 ---円 ---円 ---ヶ月/---ヶ月 ---ヶ月 詳細
12F 1LDK 45.49m2 ---円 ---円 ---ヶ月/---ヶ月 ---ヶ月 詳細
12F 1LDK 60.18m2 ---円 ---円 ---ヶ月/---ヶ月 ---ヶ月 詳細
12F 1LDK 41.14m2 ---円 ---円 ---ヶ月/---ヶ月 ---ヶ月 詳細
12F 1LDK 45.50m2 ---円 ---円 ---ヶ月/---ヶ月 ---ヶ月 詳細
13F 1LDK 57.70m2 ---円 ---円 ---ヶ月/---ヶ月 ---ヶ月 詳細
13F 1LDK 45.49m2 ---円 ---円 ---ヶ月/---ヶ月 ---ヶ月 詳細
13F 1K 34.34m2 ---円 ---円 ---ヶ月/---ヶ月 ---ヶ月 詳細
13F 1LDK 41.41m2 ---円 ---円 ---ヶ月/---ヶ月 ---ヶ月 詳細
13F 1LDK 62.76m2 ---円 ---円 ---ヶ月/---ヶ月 ---ヶ月 詳細
13F 1LDK 45.50m2 ---円 ---円 ---ヶ月/---ヶ月 ---ヶ月 詳細
14F 2LDK 65.50m2 ---円 ---円 ---ヶ月/---ヶ月 ---ヶ月 詳細
14F 2LDK 78.74m2 ---円 ---円 ---ヶ月/---ヶ月 ---ヶ月 詳細
14F 3LDK 87.93m2 ---円 ---円 ---ヶ月/---ヶ月 ---ヶ月 詳細
14F 1LDK 60.18m2 ---円 ---円 ---ヶ月/---ヶ月 ---ヶ月 詳細
14F 1K 37.09m2 ---円 ---円 ---ヶ月/---ヶ月 ---ヶ月 詳細
14F 1LDK 45.50m2 ---円 ---円 ---ヶ月/---ヶ月 ---ヶ月 詳細

表示

おすすめ物件紹介

おすすめ画像1

コンフォリア・リヴ茅場町

■2026年4月竣工■茅場町駅徒歩3分■総戸数28戸■東京都中央区新川1-1-6■地上10階 RC造

おすすめ画像2

コンフォリア・リヴ八丁堀

■2026年2月竣工■八丁堀駅徒歩4分■総戸数53戸■東京都中央区入船2-5-11■地上12階 RC造

おすすめ画像3

アーバネックス日本橋茅場町

■2026年2月竣工■水天宮前駅徒歩4分■総戸数37戸■東京都中央区日本橋蛎殻町1-1-1■地上11階 RC造■フリーレント2ヶ月

おすすめ画像4

アクシルコート日本橋本町

■2026年1月竣工■小伝馬町駅徒歩3分■総戸数150戸■東京都中央区日本橋本町4-12-11■地上12階 RC造

おすすめ画像5

ザ・パークハビオ日本橋茅場町

■2026年2月竣工■茅場町駅徒歩3分■総戸数81戸■東京都中央区日本橋茅場町2-2-5■地上10階 RC造■フリーレント1ヶ月

おすすめ画像6

トラッド日本橋人形町

■2025年7月竣工■人形町駅徒歩2分■総戸数26戸■東京都中央区日本橋人形町1-17-10■地上12階 RC造

おすすめ画像7

デュオフラッツ日本橋水天宮

■2025年8月竣工■水天宮前駅徒歩2分■総戸数34戸■東京都中央区日本橋蛎殻町1-28-3■地上14階 RC造■フリーレント1ヶ月

おすすめ画像8

ザ・パークハビオ日本橋三越前

■2025年3月竣工■人形町駅徒歩5分■総戸数54戸■東京都中央区日本橋堀留町1-1-5■地上10階 RC造

おすすめ画像9

アーバネックス日本橋馬喰町2

■2025年3月竣工■馬喰町駅徒歩1分■総戸数23戸■東京都中央区日本橋馬喰町1-4-3■地上12階 RC造

おすすめ画像10

プライムガーデン銀座八丁堀

■2025年3月竣工■八丁堀駅徒歩4分■総戸数72戸■東京都中央区入船1-4-5■地上12階 RC造■フリーレント1ヶ月

おすすめ画像11

グランパセオ銀座築地

■2024年11月竣工■築地市場駅徒歩5分■総戸数84戸■東京都中央区築地6-23-2■地上12階 RC造■フリーレント2ヶ月

おすすめ画像12

パークアクシス東日本橋

■2024年12月竣工■馬喰横山駅徒歩2分■総戸数144戸■東京都中央区東日本橋3-4-17■地上12階 RC造■フリーレント1ヶ月

おすすめ画像13

ブルックサイドレジデンス木場

■2026年3月竣工■木場駅徒歩9分■総戸数563戸■東京都江東区塩浜2-8-1■地上18階 RC造

おすすめ画像14

ロイヤルパークス有明

■2026年1月竣工■有明テニスの森駅9分■総戸数642戸■東京都江東区有明1-4-43■地上15階 RC造■フリーレント2ヶ月

おすすめ画像15

ウエリスアーバン水天宮前

■2023年3月竣工■水天宮前駅徒歩9分■総戸数431戸■東京都江東区佐賀2-8-4■地上13階 RC造■2026年3月末迄フリーレント

おすすめ画像16

コンフォリア新宿イーストサイドタワー

■2011年12月竣工■東新宿駅徒歩2分■総戸数761戸■東京都新宿区新宿6-27-29■地上32階 地下1階 RC造■フリーレント1ヶ月

閲覧中のブランドマンションシリーズ一覧

pagetop