ザ東京タワーズミッドタワー|仲介料無料

ザ東京タワーズミッドタワー
還元率UP

▶ 契約金のお得さ圧倒的。比べてみれば、REIT FIND

  • 礼金0
  • 仲介手数料無料
  • フリーレント
  • ペット可

契約金 初期費用【特別価格】
竣 工 2008年1月
最寄駅 勝どき駅徒歩5分
総戸数 1461戸

住 所 東京都中央区勝どき6-3-2
概 要 制震構造 地上58階 地下2階 RC造
■407/411/522/924/1108号室対象
■実質フリーレント2.5ヶ月/相談可
■上記以外号室対象
■実質フリーレント0.5ヶ月/相談可
▶ REIT FIND特典でお得にご契約くださいませ。
1.都内最安値での契約を、即時に提示致します。
2.初期費用のお見積りを、即時に案内致します。
3.内覧・リモート内覧を、即時に提案致します。


■物件名フリガナ
ザトウキョウタワーズミッドタワー
THE TOKYO TOWERS MIDTOWER

■物件情報更新日
2026年4月20日現在

賃料設定は不動産投資において重要な要素であり、ザ東京タワーズミッドタワーのような高級物件でも市場価格に基づいて適切に設定することが求められます。具体的には、地域の賃料相場や経済状況を定期的に分析し、競争力を維持するための柔軟な価格調整を行うことが大切です。また、賃料に見合った付加価値を提供することで、入居者にとって魅力的な選択肢となります。例えば、最新のセキュリティシステムやフィットネス設備の充実などが、賃料に対する付加価値として貢献します。その結果、安定した収益を継続的に確保できるでしょう。ザ東京タワーズミッドタワーにおいて、入居者の満足度を向上させる施策は、長期的な賃貸経営の成功に直結します。快適な居住空間の提供はもちろんですが、そのためには物件管理の質を高め、迅速な対応を心掛けることが重要です。例えば、設備の迅速な修理対応や、清掃サービスの充実が挙げられます。また、コミュニティイベントを通じて住民同士の交流を促進し、居住者の幸福度を高めることも有効です。これらの施策を通じて、居住者のライフスタイルに寄り添ったサービスを提供し、不動産の価値を高めることができます。ザ東京タワーズミッドタワーで競争力を維持するためには、周辺環境と連携した戦略が鍵となります。まず、地域の魅力を活かしたマーケティング活動を展開することが効果的です。例えば、周辺の商業施設や交通アクセスの良さをアピールすることで、物件の立地価値を強調することができます。また、定期的な市場調査を通じて、賃貸価格の見直しや新たなサービスの導入をタイムリーに行うことも大切です。さらに、入居者とのコミュニケーションを強化し、フィードバックを基に物件の改善を図ることで、長期的な関係を築くことが可能です。これらの取り組みにより、ザ東京タワーズミッドタワーは継続的な競争力を持ち続けることができるでしょう。ザ東京タワーズミッドタワーの不動産投資において、物件の付加価値を高めることは重要な戦略の一部です。まず、物件自体の魅力を引き出すために、インテリアデザインの見直しや最新設備の導入を検討することが考えられます。例えば、スマートホーム技術を導入することで、入居者の生活をより快適にし、物件の競争力を向上させることができます。また、共有スペースやアメニティの改善も考慮するべき要素です。フィットネスセンターやカフェスペースを充実させることで、入居者にとっての魅力を増し、他の物件との差別化を図ることが可能です。これにより、賃貸需要を高め、安定した収益を確保することが期待できます。不動産の売却タイミングは、投資の成功に大きな影響を与える要因です。THE TOKYO TOWERS MIDTOWERは、その優れた立地条件により、安定した需要を見込めるため、売却を検討する際の時間的選択肢が広がります。市場の動向を定期的にチェックし、景気や地域の開発計画を考慮に入れることで、最適な売却時期を見極めることができます。また、長期的な視点からも、賃貸需要や資産価値の成長を見据えた柔軟な売却戦略が求められます。不動産ポートフォリオの最適化は、投資家が長期的な資産価値を最大化するために重要な戦略です。THE TOKYO TOWERS MIDTOWERは、都心に位置するため、地域の不動産価値の安定性が投資ポートフォリオを支える基盤となります。ポートフォリオの多様化により、リスク分散が可能となり、安定したキャッシュフローの確保が期待できます。また、物件のリノベーションや市場動向の分析を通じて、資産価値の向上を目指すことができます。不動産の価値を持続的に高めるためには、リノベーションが欠かせません。THE TOKYO TOWERS MIDTOWERでは、居住者のニーズに応じた柔軟なリノベーションプランを提供しています。例えば、最新のライフスタイルに対応した内装の更新や、環境に配慮した設備の導入が進められています。これにより、物件の魅力が増し、賃貸需要の増加や物件価値の向上につながります。また、リノベーションは建物全体の耐久性を高め、長期的な資産価値の維持をサポートします。投資家にとっては、こうした戦略的なリノベーションによる価値向上が、将来的な不動産運用の成功を左右すると言えるでしょう。THE TOKYO TOWERS MIDTOWERは、資産管理の効率化においても優れた選択肢です。特に、最新の技術を活用した管理システムにより、日常のメンテナンス業務を自動化することが可能です。これにより、オーナーは不動産の健全性を維持しつつ、人的コストを大幅に削減することができます。また、建物内部の効率的な動線設計は、日々の運用における無駄を最小限に抑え、資産価値の維持向上に寄与します。さらに、定期的な設備の点検やアップデートが実施されるため、将来的な価値損失を防ぎます。

今月申し込みの方限定キャンペーン

礼金0仲介手数料無料フリーレントキャンペーン中です。
1.都内最安値での契約は、是非お任せください。
2.初期費用のお見積りは、是非お任せください。
3.内覧・リモート内覧は、是非お任せください。
※諸条件・詳細等は是非お問合せ下さいませ。

空室一覧
チェックした物件はまとめてお問い合わせ、検討中リストに追加できます。

その他15件を表示

物件概要

  • LINE
物件名 ザ東京タワーズミッドタワー
所在地 東京都中央区勝どき6-3-2
最寄駅 都営大江戸線勝どき駅」徒歩5分
東京メトロ有楽町線月島駅」徒歩15分
都営大江戸線月島駅」徒歩15分
東京メトロ日比谷線築地駅」徒歩23分
都営大江戸線汐留駅」徒歩25分
物件特徴 REIT系ブランドマンション、タワーマンション、デザイナーズ、分譲賃貸、ペット可
構造規模 制震構造 地上58階 地下2階 RC造
総戸数 1,461戸 築年月 2008年1月
賃料 210,000円 - 448,000円 管理費 10,000円 - 20,000円
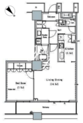
間取り 1R - 2LDK 専有面積 44.50m2 - 99.83m2
問合番号 55

■駐車場   3階~30階迄賃貸・244台(機械式)
       月額27,500円~44,000円
       31階~58階迄分譲の為異なる
■バイク置場 3階~30階迄賃貸・36台/月額1,100円~4,400円
       31階~58階迄分譲の為異なる
■駐輪場   3階~30階迄賃貸・1,230台/1住戸1台無料
       31階~58階迄分譲の為異なる
―――――――
■設 計   住友商事株式会社一級建築士事務所
■施 工   前田建設工業株式会社・大成建設株式会社
■管理形式  常駐管理
―――――――
■保 険   借家人賠償付き火災保険要加入
■ペット   各部屋毎に異なる
■楽 器   各部屋毎に異なる
■鍵交換代  各部屋毎に異なる
■保証会社  利用必須(※大手法人契約の場合、例外あり)
■保証会社  初回保証委託料/月額賃料等の20%~100%
■保証会社  年間継続料/0.8万円~1.0万円 or
■保証会社  月額保証料賃料等の1%~2%
―――――――
■間取り
□1R~3SLDK(46.38㎡~120.17㎡)
―――――――
■共用施設  
□1階    スーパーマルエツ勝どき六丁目店/24時間営業
□1階    コンシェルジュデスク/コンシェルジュサービス
□2階    カンファレンスルーム/4タイプ
       利用時間9時~22時/貸切3時間1,100円
□3階    ミーティングルーム1/8名迄
       利用時間9時~22時/貸切3時間1,100円
□3階    ミーティングルーム2/12名迄
       利用時間9時~22時/貸切3時間1,100円
□4階    シアタールーム/6名迄
       利用時間9時~22時/貸切3時間1,100円
□4階    トランクルーム月額8,800円
□11階   キッズルーム/10名迄
       利用時間9時~18時/貸切3時間迄・通常無料
□16階   ライブラリールーム/10名迄
       利用時間9時~18時/通常無料
□21階   パーティールーム/10名迄
       利用時間9時~22時/貸切3時間2,200円
□26階   ゲストルーム/レインボーブリッジビュー
       利用時間15時~翌10時/1泊5,500円
□別棟    シーサイドアネックス
       利用時間・平日7時~22時/1,100円
       利用時間・土日祝10時~22時/1,100円
       25M屋内プール・ジャグジー・フィットネスジム
       ゴルフレンジ・ビューラウンジ・サウナ

■① 駐車場・バイク置場・駐輪場の詳細は、是非お問合せ下さい。
■② 内覧のご希望時は、物件現地待ち合わせ対応をしております。
■③ 物件写真の量と質、情報更新鮮度に特化して運営しています。

建物設備

建物詳細を見る
  • エレベーター
  • オートロック
  • 宅配ボックス
  • TVドアホン
  • トランクルーム
  • ペット足洗い場
  • 駐車場
  • バイク置き場
  • 駐輪場
  • ラウンジ
  • キッズルーム
  • コンシェルジュ
  • フィットネス
  • プール
  • ゲストルーム
  • パーティールーム
  • スパ
  • ゴルフレンジ
  • シアタールーム
  • 各階ゴミ置き場
  • 内廊下
  • オール電化
  • 24時間管理
  • 防犯カメラ
  • BS
  • CS
  • CATV
  • インターネット
  • 楽器可
  • 制震構造

※建物周辺情報はGoogleMapを使用しており、物件表示位置が実際の位置と多少異なる場合がございます。

掲載情報について

  • ※掲載情報が現況と異なる場合は、現況を優先させていただきます。
  • ※各種キャンペーン情報は予告なく変更・終了する場合がございます。事前に必ず募集条件をご確認くださいませ。
  • ※各部屋毎に敷金・礼金・キャンペーンの内容が異なる場合がございます。詳細は各部屋ページをご確認くださいませ。
  • ※分譲マンションの場合、各所有者様毎に室内の内装・設備が変更されている場合がございます。
  • ※分譲マンションの場合、建物自体が許可していても各所有者様毎に室内のペット飼育・SOHO 利用について禁止の場合がございます。
  • ※各詳細については、メールまたはお電話にて、お気軽にお問い合わせくださいませ。
  • 還元キャンペーンバナー
  • ランキングページバナー
「中小企業からニッポンを元気にプロジェクト」公式アンバサダー前田敦子

ザ東京タワーズミッドタワーの
お問い合わせはこちらから

お問い合わせ

0120-139-692

電話受付 24時間 年中無休

内覧予約・空室確認・初期費用概算等
是非、お気軽にお問い合わせくださいませ。

〒103-0012 東京都中央区日本橋堀留町 1-8-11 日本橋人形町スクエア 3階
最寄駅:日比谷線・浅草線「人形町駅」徒歩3分サイト運営会社

ご成約済みの部屋一覧

所在階 間取り 面積 賃料 共益費/管理費 敷金/礼金 仲介手数料 詳細
3F 1LDK 82.52m2 ---円 ---円 ---ヶ月/---ヶ月 ---ヶ月 詳細
3F 1R 63.08m2 ---円 ---円 ---ヶ月/---ヶ月 ---ヶ月 詳細
3F 3LDK 87.89m2 ---円 ---円 ---ヶ月/---ヶ月 ---ヶ月 詳細
3F 1SLDK 67.48m2 ---円 ---円 ---ヶ月/---ヶ月 ---ヶ月 詳細
3F 2LDK 75.27m2 ---円 ---円 ---ヶ月/---ヶ月 ---ヶ月 詳細
3F 3LDK 87.07m2 ---円 ---円 ---ヶ月/---ヶ月 ---ヶ月 詳細
3F 3LDK 105.18m2 ---円 ---円 ---ヶ月/---ヶ月 ---ヶ月 詳細
3F 2LDK 104.46m2 ---円 ---円 ---ヶ月/---ヶ月 ---ヶ月 詳細
4F 1LDK 55.97m2 ---円 ---円 ---ヶ月/---ヶ月 ---ヶ月 詳細
4F 2LDK 83.75m2 ---円 ---円 ---ヶ月/---ヶ月 ---ヶ月 詳細
4F 1SLDK 88.81m2 ---円 ---円 ---ヶ月/---ヶ月 ---ヶ月 詳細
4F 1SLDK 76.64m2 ---円 ---円 ---ヶ月/---ヶ月 ---ヶ月 詳細
4F 1LDK 78.14m2 ---円 ---円 ---ヶ月/---ヶ月 ---ヶ月 詳細
4F 2LDK 99.63m2 ---円 ---円 ---ヶ月/---ヶ月 ---ヶ月 詳細
4F 2LDK 85.72m2 ---円 ---円 ---ヶ月/---ヶ月 ---ヶ月 詳細
4F 2LDK 68.56m2 ---円 ---円 ---ヶ月/---ヶ月 ---ヶ月 詳細
4F 2LDK 104.46m2 ---円 ---円 ---ヶ月/---ヶ月 ---ヶ月 詳細
5F 1R 48.35m2 ---円 ---円 ---ヶ月/---ヶ月 ---ヶ月 詳細
5F 1LDK 56.55m2 ---円 ---円 ---ヶ月/---ヶ月 ---ヶ月 詳細
5F 1LDK 52.98m2 ---円 ---円 ---ヶ月/---ヶ月 ---ヶ月 詳細
5F 1LDK 55.52m2 ---円 ---円 ---ヶ月/---ヶ月 ---ヶ月 詳細
5F 1LDK 66.91m2 ---円 ---円 ---ヶ月/---ヶ月 ---ヶ月 詳細
5F 1LDK 58.42m2 ---円 ---円 ---ヶ月/---ヶ月 ---ヶ月 詳細
5F 1LDK 53.38m2 ---円 ---円 ---ヶ月/---ヶ月 ---ヶ月 詳細
5F 1LDK 52.29m2 ---円 ---円 ---ヶ月/---ヶ月 ---ヶ月 詳細
5F 1LDK 66.91m2 ---円 ---円 ---ヶ月/---ヶ月 ---ヶ月 詳細
5F 2LDK 87.85m2 ---円 ---円 ---ヶ月/---ヶ月 ---ヶ月 詳細
5F 2LDK 84.96m2 ---円 ---円 ---ヶ月/---ヶ月 ---ヶ月 詳細
5F 1R 44.50m2 ---円 ---円 ---ヶ月/---ヶ月 ---ヶ月 詳細
5F 3LDK 97.80m2 ---円 ---円 ---ヶ月/---ヶ月 ---ヶ月 詳細
5F 2SLDK 93.32m2 ---円 ---円 ---ヶ月/---ヶ月 ---ヶ月 詳細
5F 3LDK 78.28m2 ---円 ---円 ---ヶ月/---ヶ月 ---ヶ月 詳細
6F 1R 48.35m2 ---円 ---円 ---ヶ月/---ヶ月 ---ヶ月 詳細
6F 1LDK 56.55m2 ---円 ---円 ---ヶ月/---ヶ月 ---ヶ月 詳細
6F 1LDK 52.98m2 ---円 ---円 ---ヶ月/---ヶ月 ---ヶ月 詳細
6F 1LDK 52.78m2 ---円 ---円 ---ヶ月/---ヶ月 ---ヶ月 詳細
6F 1LDK 55.52m2 ---円 ---円 ---ヶ月/---ヶ月 ---ヶ月 詳細
6F 1LDK 56.84m2 ---円 ---円 ---ヶ月/---ヶ月 ---ヶ月 詳細
6F 1LDK 66.91m2 ---円 ---円 ---ヶ月/---ヶ月 ---ヶ月 詳細
6F 1LDK 52.29m2 ---円 ---円 ---ヶ月/---ヶ月 ---ヶ月 詳細
6F 1LDK 53.38m2 ---円 ---円 ---ヶ月/---ヶ月 ---ヶ月 詳細
6F 1LDK 58.42m2 ---円 ---円 ---ヶ月/---ヶ月 ---ヶ月 詳細
6F 1LDK 53.38m2 ---円 ---円 ---ヶ月/---ヶ月 ---ヶ月 詳細
6F 1LDK 66.91m2 ---円 ---円 ---ヶ月/---ヶ月 ---ヶ月 詳細
6F 2LDK 87.85m2 ---円 ---円 ---ヶ月/---ヶ月 ---ヶ月 詳細
6F 2SLDK 83.54m2 ---円 ---円 ---ヶ月/---ヶ月 ---ヶ月 詳細
6F 3LDK 88.40m2 ---円 ---円 ---ヶ月/---ヶ月 ---ヶ月 詳細
6F 2LDK 104.16m2 ---円 ---円 ---ヶ月/---ヶ月 ---ヶ月 詳細
6F 1LDK 74.29m2 ---円 ---円 ---ヶ月/---ヶ月 ---ヶ月 詳細
6F 1LDK 82.37m2 ---円 ---円 ---ヶ月/---ヶ月 ---ヶ月 詳細
6F 1LDK 58.42m2 ---円 ---円 ---ヶ月/---ヶ月 ---ヶ月 詳細
6F 1LDK 67.72m2 ---円 ---円 ---ヶ月/---ヶ月 ---ヶ月 詳細
7F 1R 48.35m2 ---円 ---円 ---ヶ月/---ヶ月 ---ヶ月 詳細
7F 1LDK 52.98m2 ---円 ---円 ---ヶ月/---ヶ月 ---ヶ月 詳細
7F 1LDK 56.84m2 ---円 ---円 ---ヶ月/---ヶ月 ---ヶ月 詳細
7F 2LDK 87.85m2 ---円 ---円 ---ヶ月/---ヶ月 ---ヶ月 詳細
7F 1LDK 66.91m2 ---円 ---円 ---ヶ月/---ヶ月 ---ヶ月 詳細
7F 1LDK 52.29m2 ---円 ---円 ---ヶ月/---ヶ月 ---ヶ月 詳細
7F 1LDK 53.38m2 ---円 ---円 ---ヶ月/---ヶ月 ---ヶ月 詳細
7F 1LDK 58.42m2 ---円 ---円 ---ヶ月/---ヶ月 ---ヶ月 詳細
7F 1LDK 58.42m2 ---円 ---円 ---ヶ月/---ヶ月 ---ヶ月 詳細
7F 1LDK 52.29m2 ---円 ---円 ---ヶ月/---ヶ月 ---ヶ月 詳細
7F 1LDK 66.91m2 ---円 ---円 ---ヶ月/---ヶ月 ---ヶ月 詳細
7F 2LDK 87.85m2 ---円 ---円 ---ヶ月/---ヶ月 ---ヶ月 詳細
7F 3LDK 90.96m2 ---円 ---円 ---ヶ月/---ヶ月 ---ヶ月 詳細
7F 1LDK 58.42m2 ---円 ---円 ---ヶ月/---ヶ月 ---ヶ月 詳細
7F 1LDK 58.42m2 ---円 ---円 ---ヶ月/---ヶ月 ---ヶ月 詳細
7F 1LDK 67.72m2 ---円 ---円 ---ヶ月/---ヶ月 ---ヶ月 詳細
7F 3LDK 84.26m2 ---円 ---円 ---ヶ月/---ヶ月 ---ヶ月 詳細
8F 1LDK 56.30m2 ---円 ---円 ---ヶ月/---ヶ月 ---ヶ月 詳細
8F 1R 48.35m2 ---円 ---円 ---ヶ月/---ヶ月 ---ヶ月 詳細
8F 1LDK 52.98m2 ---円 ---円 ---ヶ月/---ヶ月 ---ヶ月 詳細
8F 1LDK 52.78m2 ---円 ---円 ---ヶ月/---ヶ月 ---ヶ月 詳細
8F 1LDK 55.52m2 ---円 ---円 ---ヶ月/---ヶ月 ---ヶ月 詳細
8F 1LDK 56.84m2 ---円 ---円 ---ヶ月/---ヶ月 ---ヶ月 詳細
8F 2LDK 87.85m2 ---円 ---円 ---ヶ月/---ヶ月 ---ヶ月 詳細
8F 1LDK 53.38m2 ---円 ---円 ---ヶ月/---ヶ月 ---ヶ月 詳細
8F 1LDK 58.42m2 ---円 ---円 ---ヶ月/---ヶ月 ---ヶ月 詳細
8F 1LDK 53.38m2 ---円 ---円 ---ヶ月/---ヶ月 ---ヶ月 詳細
8F 1LDK 66.91m2 ---円 ---円 ---ヶ月/---ヶ月 ---ヶ月 詳細
8F 2LDK 87.85m2 ---円 ---円 ---ヶ月/---ヶ月 ---ヶ月 詳細
8F 3LDK 90.96m2 ---円 ---円 ---ヶ月/---ヶ月 ---ヶ月 詳細
8F 2SLDK 83.54m2 ---円 ---円 ---ヶ月/---ヶ月 ---ヶ月 詳細
8F 3LDK 88.40m2 ---円 ---円 ---ヶ月/---ヶ月 ---ヶ月 詳細
8F 2LDK 104.16m2 ---円 ---円 ---ヶ月/---ヶ月 ---ヶ月 詳細
8F 1LDK 74.29m2 ---円 ---円 ---ヶ月/---ヶ月 ---ヶ月 詳細
8F 1LDK 58.42m2 ---円 ---円 ---ヶ月/---ヶ月 ---ヶ月 詳細
8F 1LDK 67.72m2 ---円 ---円 ---ヶ月/---ヶ月 ---ヶ月 詳細
8F 3LDK 84.26m2 ---円 ---円 ---ヶ月/---ヶ月 ---ヶ月 詳細
9F 2LDK 89.27m2 ---円 ---円 ---ヶ月/---ヶ月 ---ヶ月 詳細
9F 1LDK 56.30m2 ---円 ---円 ---ヶ月/---ヶ月 ---ヶ月 詳細
9F 1LDK 56.55m2 ---円 ---円 ---ヶ月/---ヶ月 ---ヶ月 詳細
9F 1LDK 52.98m2 ---円 ---円 ---ヶ月/---ヶ月 ---ヶ月 詳細
9F 1LDK 52.78m2 ---円 ---円 ---ヶ月/---ヶ月 ---ヶ月 詳細
9F 1LDK 56.84m2 ---円 ---円 ---ヶ月/---ヶ月 ---ヶ月 詳細
9F 1LDK 66.91m2 ---円 ---円 ---ヶ月/---ヶ月 ---ヶ月 詳細
9F 1LDK 52.29m2 ---円 ---円 ---ヶ月/---ヶ月 ---ヶ月 詳細
9F 1LDK 53.38m2 ---円 ---円 ---ヶ月/---ヶ月 ---ヶ月 詳細
9F 1LDK 53.38m2 ---円 ---円 ---ヶ月/---ヶ月 ---ヶ月 詳細
9F 1LDK 52.29m2 ---円 ---円 ---ヶ月/---ヶ月 ---ヶ月 詳細
9F 2LDK 87.85m2 ---円 ---円 ---ヶ月/---ヶ月 ---ヶ月 詳細
9F 3LDK 90.96m2 ---円 ---円 ---ヶ月/---ヶ月 ---ヶ月 詳細
9F 2LDK 76.31m2 ---円 ---円 ---ヶ月/---ヶ月 ---ヶ月 詳細
9F 3LDK 88.40m2 ---円 ---円 ---ヶ月/---ヶ月 ---ヶ月 詳細
9F 3LDK 84.26m2 ---円 ---円 ---ヶ月/---ヶ月 ---ヶ月 詳細
10F 2LDK 89.27m2 ---円 ---円 ---ヶ月/---ヶ月 ---ヶ月 詳細
10F 1LDK 56.30m2 ---円 ---円 ---ヶ月/---ヶ月 ---ヶ月 詳細
10F 1R 48.35m2 ---円 ---円 ---ヶ月/---ヶ月 ---ヶ月 詳細
10F 1LDK 52.78m2 ---円 ---円 ---ヶ月/---ヶ月 ---ヶ月 詳細
10F 2LDK 87.85m2 ---円 ---円 ---ヶ月/---ヶ月 ---ヶ月 詳細
10F 1LDK 52.29m2 ---円 ---円 ---ヶ月/---ヶ月 ---ヶ月 詳細
10F 1LDK 58.42m2 ---円 ---円 ---ヶ月/---ヶ月 ---ヶ月 詳細
10F 1LDK 58.42m2 ---円 ---円 ---ヶ月/---ヶ月 ---ヶ月 詳細
10F 1LDK 53.38m2 ---円 ---円 ---ヶ月/---ヶ月 ---ヶ月 詳細
10F 1LDK 52.29m2 ---円 ---円 ---ヶ月/---ヶ月 ---ヶ月 詳細
10F 1LDK 66.91m2 ---円 ---円 ---ヶ月/---ヶ月 ---ヶ月 詳細
10F 2LDK 87.85m2 ---円 ---円 ---ヶ月/---ヶ月 ---ヶ月 詳細
10F 2SLDK 83.54m2 ---円 ---円 ---ヶ月/---ヶ月 ---ヶ月 詳細
10F 2LDK 76.31m2 ---円 ---円 ---ヶ月/---ヶ月 ---ヶ月 詳細
10F 3LDK 88.40m2 ---円 ---円 ---ヶ月/---ヶ月 ---ヶ月 詳細
10F 1LDK 74.29m2 ---円 ---円 ---ヶ月/---ヶ月 ---ヶ月 詳細
10F 1LDK 58.42m2 ---円 ---円 ---ヶ月/---ヶ月 ---ヶ月 詳細
10F 1LDK 58.42m2 ---円 ---円 ---ヶ月/---ヶ月 ---ヶ月 詳細
10F 1LDK 67.72m2 ---円 ---円 ---ヶ月/---ヶ月 ---ヶ月 詳細
10F 3LDK 84.26m2 ---円 ---円 ---ヶ月/---ヶ月 ---ヶ月 詳細
11F 1LDK 81.93m2 ---円 ---円 ---ヶ月/---ヶ月 ---ヶ月 詳細
11F 2LDK 69.12m2 ---円 ---円 ---ヶ月/---ヶ月 ---ヶ月 詳細
11F 1LDK 54.21m2 ---円 ---円 ---ヶ月/---ヶ月 ---ヶ月 詳細
11F 1LDK 51.78m2 ---円 ---円 ---ヶ月/---ヶ月 ---ヶ月 詳細
11F 1DK 47.57m2 ---円 ---円 ---ヶ月/---ヶ月 ---ヶ月 詳細
11F 1LDK 51.78m2 ---円 ---円 ---ヶ月/---ヶ月 ---ヶ月 詳細
11F 1LDK 54.21m2 ---円 ---円 ---ヶ月/---ヶ月 ---ヶ月 詳細
11F 1LDK 70.90m2 ---円 ---円 ---ヶ月/---ヶ月 ---ヶ月 詳細
11F 1LDK 55.77m2 ---円 ---円 ---ヶ月/---ヶ月 ---ヶ月 詳細
11F 1LDK 47.07m2 ---円 ---円 ---ヶ月/---ヶ月 ---ヶ月 詳細
11F 1LDK 53.81m2 ---円 ---円 ---ヶ月/---ヶ月 ---ヶ月 詳細
11F 1LDK 81.93m2 ---円 ---円 ---ヶ月/---ヶ月 ---ヶ月 詳細
11F 2LDK 72.75m2 ---円 ---円 ---ヶ月/---ヶ月 ---ヶ月 詳細
11F 1LDK 51.78m2 ---円 ---円 ---ヶ月/---ヶ月 ---ヶ月 詳細
11F 1DK 47.57m2 ---円 ---円 ---ヶ月/---ヶ月 ---ヶ月 詳細
11F 1LDK 51.78m2 ---円 ---円 ---ヶ月/---ヶ月 ---ヶ月 詳細
11F 2LDK 72.75m2 ---円 ---円 ---ヶ月/---ヶ月 ---ヶ月 詳細
11F 1LDK 55.03m2 ---円 ---円 ---ヶ月/---ヶ月 ---ヶ月 詳細
11F 1LDK 53.81m2 ---円 ---円 ---ヶ月/---ヶ月 ---ヶ月 詳細
11F 1LDK 53.81m2 ---円 ---円 ---ヶ月/---ヶ月 ---ヶ月 詳細
11F 1DK 46.38m2 ---円 ---円 ---ヶ月/---ヶ月 ---ヶ月 詳細
11F 1LDK 52.32m2 ---円 ---円 ---ヶ月/---ヶ月 ---ヶ月 詳細
11F 1LDK 65.59m2 ---円 ---円 ---ヶ月/---ヶ月 ---ヶ月 詳細
12F 1LDK 81.93m2 ---円 ---円 ---ヶ月/---ヶ月 ---ヶ月 詳細
12F 2LDK 69.12m2 ---円 ---円 ---ヶ月/---ヶ月 ---ヶ月 詳細
12F 1LDK 54.21m2 ---円 ---円 ---ヶ月/---ヶ月 ---ヶ月 詳細
12F 1LDK 51.78m2 ---円 ---円 ---ヶ月/---ヶ月 ---ヶ月 詳細
12F 1DK 47.57m2 ---円 ---円 ---ヶ月/---ヶ月 ---ヶ月 詳細
12F 2LDK 72.94m2 ---円 ---円 ---ヶ月/---ヶ月 ---ヶ月 詳細
12F 2LDK 90.52m2 ---円 ---円 ---ヶ月/---ヶ月 ---ヶ月 詳細
12F 1LDK 55.77m2 ---円 ---円 ---ヶ月/---ヶ月 ---ヶ月 詳細
12F 1LDK 53.81m2 ---円 ---円 ---ヶ月/---ヶ月 ---ヶ月 詳細
12F 1LDK 53.81m2 ---円 ---円 ---ヶ月/---ヶ月 ---ヶ月 詳細
12F 1DK 46.38m2 ---円 ---円 ---ヶ月/---ヶ月 ---ヶ月 詳細
12F 1LDK 65.59m2 ---円 ---円 ---ヶ月/---ヶ月 ---ヶ月 詳細
12F 1LDK 81.93m2 ---円 ---円 ---ヶ月/---ヶ月 ---ヶ月 詳細
12F 2LDK 72.75m2 ---円 ---円 ---ヶ月/---ヶ月 ---ヶ月 詳細
12F 1R 50.59m2 ---円 ---円 ---ヶ月/---ヶ月 ---ヶ月 詳細
12F 1DK 47.57m2 ---円 ---円 ---ヶ月/---ヶ月 ---ヶ月 詳細
12F 1LDK 51.78m2 ---円 ---円 ---ヶ月/---ヶ月 ---ヶ月 詳細
12F 1R 50.59m2 ---円 ---円 ---ヶ月/---ヶ月 ---ヶ月 詳細
12F 2LDK 72.75m2 ---円 ---円 ---ヶ月/---ヶ月 ---ヶ月 詳細
12F 1LDK 55.03m2 ---円 ---円 ---ヶ月/---ヶ月 ---ヶ月 詳細
12F 1LDK 53.81m2 ---円 ---円 ---ヶ月/---ヶ月 ---ヶ月 詳細
12F 1LDK 53.81m2 ---円 ---円 ---ヶ月/---ヶ月 ---ヶ月 詳細
12F 1DK 46.38m2 ---円 ---円 ---ヶ月/---ヶ月 ---ヶ月 詳細
12F 1LDK 65.59m2 ---円 ---円 ---ヶ月/---ヶ月 ---ヶ月 詳細
13F 2LDK 69.12m2 ---円 ---円 ---ヶ月/---ヶ月 ---ヶ月 詳細
13F 1LDK 54.21m2 ---円 ---円 ---ヶ月/---ヶ月 ---ヶ月 詳細
13F 1LDK 51.78m2 ---円 ---円 ---ヶ月/---ヶ月 ---ヶ月 詳細
13F 1DK 47.57m2 ---円 ---円 ---ヶ月/---ヶ月 ---ヶ月 詳細
13F 1LDK 54.21m2 ---円 ---円 ---ヶ月/---ヶ月 ---ヶ月 詳細
13F 1LDK 81.93m2 ---円 ---円 ---ヶ月/---ヶ月 ---ヶ月 詳細
13F 1LDK 65.59m2 ---円 ---円 ---ヶ月/---ヶ月 ---ヶ月 詳細
13F 1LDK 52.32m2 ---円 ---円 ---ヶ月/---ヶ月 ---ヶ月 詳細
13F 1DK 46.38m2 ---円 ---円 ---ヶ月/---ヶ月 ---ヶ月 詳細
13F 1LDK 53.81m2 ---円 ---円 ---ヶ月/---ヶ月 ---ヶ月 詳細
13F 1LDK 53.81m2 ---円 ---円 ---ヶ月/---ヶ月 ---ヶ月 詳細
13F 1DK 46.38m2 ---円 ---円 ---ヶ月/---ヶ月 ---ヶ月 詳細
13F 1LDK 52.32m2 ---円 ---円 ---ヶ月/---ヶ月 ---ヶ月 詳細
13F 2LDK 72.75m2 ---円 ---円 ---ヶ月/---ヶ月 ---ヶ月 詳細
13F 1LDK 51.78m2 ---円 ---円 ---ヶ月/---ヶ月 ---ヶ月 詳細
13F 1DK 47.57m2 ---円 ---円 ---ヶ月/---ヶ月 ---ヶ月 詳細
13F 1LDK 51.78m2 ---円 ---円 ---ヶ月/---ヶ月 ---ヶ月 詳細
13F 1R 50.59m2 ---円 ---円 ---ヶ月/---ヶ月 ---ヶ月 詳細
13F 2LDK 57.90m2 ---円 ---円 ---ヶ月/---ヶ月 ---ヶ月 詳細
13F 1LDK 59.81m2 ---円 ---円 ---ヶ月/---ヶ月 ---ヶ月 詳細
14F 2LDK 69.12m2 ---円 ---円 ---ヶ月/---ヶ月 ---ヶ月 詳細
14F 1LDK 54.21m2 ---円 ---円 ---ヶ月/---ヶ月 ---ヶ月 詳細
14F 1LDK 51.78m2 ---円 ---円 ---ヶ月/---ヶ月 ---ヶ月 詳細
14F 1LDK 51.78m2 ---円 ---円 ---ヶ月/---ヶ月 ---ヶ月 詳細
14F 1LDK 54.21m2 ---円 ---円 ---ヶ月/---ヶ月 ---ヶ月 詳細
14F 2LDK 69.12m2 ---円 ---円 ---ヶ月/---ヶ月 ---ヶ月 詳細
14F 1LDK 65.59m2 ---円 ---円 ---ヶ月/---ヶ月 ---ヶ月 詳細
14F 1DK 46.38m2 ---円 ---円 ---ヶ月/---ヶ月 ---ヶ月 詳細
14F 1LDK 53.81m2 ---円 ---円 ---ヶ月/---ヶ月 ---ヶ月 詳細
14F 1LDK 53.81m2 ---円 ---円 ---ヶ月/---ヶ月 ---ヶ月 詳細
14F 1LDK 52.32m2 ---円 ---円 ---ヶ月/---ヶ月 ---ヶ月 詳細
14F 1R 50.59m2 ---円 ---円 ---ヶ月/---ヶ月 ---ヶ月 詳細
14F 1DK 47.57m2 ---円 ---円 ---ヶ月/---ヶ月 ---ヶ月 詳細
14F 1LDK 51.78m2 ---円 ---円 ---ヶ月/---ヶ月 ---ヶ月 詳細
14F 1R 50.59m2 ---円 ---円 ---ヶ月/---ヶ月 ---ヶ月 詳細
14F 2LDK 72.75m2 ---円 ---円 ---ヶ月/---ヶ月 ---ヶ月 詳細
14F 2LDK 92.48m2 ---円 ---円 ---ヶ月/---ヶ月 ---ヶ月 詳細
14F 1LDK 55.03m2 ---円 ---円 ---ヶ月/---ヶ月 ---ヶ月 詳細
14F 2LDK 57.90m2 ---円 ---円 ---ヶ月/---ヶ月 ---ヶ月 詳細
14F 2LDK 66.61m2 ---円 ---円 ---ヶ月/---ヶ月 ---ヶ月 詳細
14F 1LDK 59.81m2 ---円 ---円 ---ヶ月/---ヶ月 ---ヶ月 詳細
14F 1DK 46.38m2 ---円 ---円 ---ヶ月/---ヶ月 ---ヶ月 詳細
14F 1LDK 52.32m2 ---円 ---円 ---ヶ月/---ヶ月 ---ヶ月 詳細
15F 1LDK 54.21m2 ---円 ---円 ---ヶ月/---ヶ月 ---ヶ月 詳細
15F 1LDK 51.78m2 ---円 ---円 ---ヶ月/---ヶ月 ---ヶ月 詳細
15F 1DK 47.57m2 ---円 ---円 ---ヶ月/---ヶ月 ---ヶ月 詳細
15F 1LDK 51.78m2 ---円 ---円 ---ヶ月/---ヶ月 ---ヶ月 詳細
15F 1LDK 54.21m2 ---円 ---円 ---ヶ月/---ヶ月 ---ヶ月 詳細
15F 2LDK 87.66m2 ---円 ---円 ---ヶ月/---ヶ月 ---ヶ月 詳細
15F 1DK 46.38m2 ---円 ---円 ---ヶ月/---ヶ月 ---ヶ月 詳細
15F 1LDK 53.81m2 ---円 ---円 ---ヶ月/---ヶ月 ---ヶ月 詳細
15F 1LDK 53.81m2 ---円 ---円 ---ヶ月/---ヶ月 ---ヶ月 詳細
15F 1LDK 52.32m2 ---円 ---円 ---ヶ月/---ヶ月 ---ヶ月 詳細
15F 2LDK 72.75m2 ---円 ---円 ---ヶ月/---ヶ月 ---ヶ月 詳細
15F 1R 50.59m2 ---円 ---円 ---ヶ月/---ヶ月 ---ヶ月 詳細
15F 1LDK 51.78m2 ---円 ---円 ---ヶ月/---ヶ月 ---ヶ月 詳細
15F 1LDK 51.78m2 ---円 ---円 ---ヶ月/---ヶ月 ---ヶ月 詳細
15F 1R 50.59m2 ---円 ---円 ---ヶ月/---ヶ月 ---ヶ月 詳細
15F 2LDK 72.75m2 ---円 ---円 ---ヶ月/---ヶ月 ---ヶ月 詳細
15F 2LDK 98.21m2 ---円 ---円 ---ヶ月/---ヶ月 ---ヶ月 詳細
15F 1LDK 55.03m2 ---円 ---円 ---ヶ月/---ヶ月 ---ヶ月 詳細
15F 2LDK 66.61m2 ---円 ---円 ---ヶ月/---ヶ月 ---ヶ月 詳細
15F 1DK 46.38m2 ---円 ---円 ---ヶ月/---ヶ月 ---ヶ月 詳細
15F 1LDK 52.32m2 ---円 ---円 ---ヶ月/---ヶ月 ---ヶ月 詳細
15F 1LDK 65.59m2 ---円 ---円 ---ヶ月/---ヶ月 ---ヶ月 詳細
16F 1LDK 54.21m2 ---円 ---円 ---ヶ月/---ヶ月 ---ヶ月 詳細
16F 1DK 47.57m2 ---円 ---円 ---ヶ月/---ヶ月 ---ヶ月 詳細
16F 2LDK 87.66m2 ---円 ---円 ---ヶ月/---ヶ月 ---ヶ月 詳細
16F 1LDK 65.59m2 ---円 ---円 ---ヶ月/---ヶ月 ---ヶ月 詳細
16F 1LDK 52.32m2 ---円 ---円 ---ヶ月/---ヶ月 ---ヶ月 詳細
16F 1DK 46.38m2 ---円 ---円 ---ヶ月/---ヶ月 ---ヶ月 詳細
16F 1LDK 53.81m2 ---円 ---円 ---ヶ月/---ヶ月 ---ヶ月 詳細
16F 1LDK 52.32m2 ---円 ---円 ---ヶ月/---ヶ月 ---ヶ月 詳細
16F 1LDK 65.59m2 ---円 ---円 ---ヶ月/---ヶ月 ---ヶ月 詳細
16F 1R 50.59m2 ---円 ---円 ---ヶ月/---ヶ月 ---ヶ月 詳細
16F 1LDK 51.78m2 ---円 ---円 ---ヶ月/---ヶ月 ---ヶ月 詳細
16F 1DK 47.57m2 ---円 ---円 ---ヶ月/---ヶ月 ---ヶ月 詳細
16F 1LDK 51.78m2 ---円 ---円 ---ヶ月/---ヶ月 ---ヶ月 詳細
16F 3LDK 105.61m2 ---円 ---円 ---ヶ月/---ヶ月 ---ヶ月 詳細
16F 1LDK 51.71m2 ---円 ---円 ---ヶ月/---ヶ月 ---ヶ月 詳細
16F 1LDK 50.75m2 ---円 ---円 ---ヶ月/---ヶ月 ---ヶ月 詳細
16F 1LDK 65.59m2 ---円 ---円 ---ヶ月/---ヶ月 ---ヶ月 詳細
17F 2LDK 69.12m2 ---円 ---円 ---ヶ月/---ヶ月 ---ヶ月 詳細
17F 1LDK 54.21m2 ---円 ---円 ---ヶ月/---ヶ月 ---ヶ月 詳細
17F 1LDK 54.21m2 ---円 ---円 ---ヶ月/---ヶ月 ---ヶ月 詳細
17F 2LDK 69.12m2 ---円 ---円 ---ヶ月/---ヶ月 ---ヶ月 詳細
17F 1LDK 65.59m2 ---円 ---円 ---ヶ月/---ヶ月 ---ヶ月 詳細
17F 1LDK 52.32m2 ---円 ---円 ---ヶ月/---ヶ月 ---ヶ月 詳細
17F 1DK 46.38m2 ---円 ---円 ---ヶ月/---ヶ月 ---ヶ月 詳細
17F 1LDK 53.81m2 ---円 ---円 ---ヶ月/---ヶ月 ---ヶ月 詳細
17F 1LDK 53.81m2 ---円 ---円 ---ヶ月/---ヶ月 ---ヶ月 詳細
17F 1DK 46.38m2 ---円 ---円 ---ヶ月/---ヶ月 ---ヶ月 詳細
17F 1LDK 52.32m2 ---円 ---円 ---ヶ月/---ヶ月 ---ヶ月 詳細
17F 1LDK 65.59m2 ---円 ---円 ---ヶ月/---ヶ月 ---ヶ月 詳細
17F 2LDK 72.75m2 ---円 ---円 ---ヶ月/---ヶ月 ---ヶ月 詳細
17F 1R 50.59m2 ---円 ---円 ---ヶ月/---ヶ月 ---ヶ月 詳細
17F 1LDK 51.78m2 ---円 ---円 ---ヶ月/---ヶ月 ---ヶ月 詳細
17F 1DK 47.57m2 ---円 ---円 ---ヶ月/---ヶ月 ---ヶ月 詳細
17F 1LDK 51.78m2 ---円 ---円 ---ヶ月/---ヶ月 ---ヶ月 詳細
17F 1R 50.59m2 ---円 ---円 ---ヶ月/---ヶ月 ---ヶ月 詳細
17F 3LDK 105.61m2 ---円 ---円 ---ヶ月/---ヶ月 ---ヶ月 詳細
17F 2LDK 72.98m2 ---円 ---円 ---ヶ月/---ヶ月 ---ヶ月 詳細
17F 1LDK 50.75m2 ---円 ---円 ---ヶ月/---ヶ月 ---ヶ月 詳細
17F 1LDK 55.43m2 ---円 ---円 ---ヶ月/---ヶ月 ---ヶ月 詳細
17F 1LDK 52.32m2 ---円 ---円 ---ヶ月/---ヶ月 ---ヶ月 詳細
17F 1LDK 65.59m2 ---円 ---円 ---ヶ月/---ヶ月 ---ヶ月 詳細
18F 2LDK 69.12m2 ---円 ---円 ---ヶ月/---ヶ月 ---ヶ月 詳細
18F 1LDK 51.78m2 ---円 ---円 ---ヶ月/---ヶ月 ---ヶ月 詳細
18F 1LDK 54.21m2 ---円 ---円 ---ヶ月/---ヶ月 ---ヶ月 詳細
18F 2LDK 69.12m2 ---円 ---円 ---ヶ月/---ヶ月 ---ヶ月 詳細
18F 1LDK 65.59m2 ---円 ---円 ---ヶ月/---ヶ月 ---ヶ月 詳細
18F 1LDK 52.32m2 ---円 ---円 ---ヶ月/---ヶ月 ---ヶ月 詳細
18F 1DK 46.38m2 ---円 ---円 ---ヶ月/---ヶ月 ---ヶ月 詳細
18F 1LDK 53.81m2 ---円 ---円 ---ヶ月/---ヶ月 ---ヶ月 詳細
18F 1LDK 53.81m2 ---円 ---円 ---ヶ月/---ヶ月 ---ヶ月 詳細
18F 1DK 46.38m2 ---円 ---円 ---ヶ月/---ヶ月 ---ヶ月 詳細
18F 2LDK 87.66m2 ---円 ---円 ---ヶ月/---ヶ月 ---ヶ月 詳細
18F 2LDK 72.75m2 ---円 ---円 ---ヶ月/---ヶ月 ---ヶ月 詳細
18F 1R 50.59m2 ---円 ---円 ---ヶ月/---ヶ月 ---ヶ月 詳細
18F 1LDK 51.78m2 ---円 ---円 ---ヶ月/---ヶ月 ---ヶ月 詳細
18F 1DK 47.57m2 ---円 ---円 ---ヶ月/---ヶ月 ---ヶ月 詳細
18F 1LDK 51.78m2 ---円 ---円 ---ヶ月/---ヶ月 ---ヶ月 詳細
18F 1R 50.59m2 ---円 ---円 ---ヶ月/---ヶ月 ---ヶ月 詳細
18F 2LDK 98.21m2 ---円 ---円 ---ヶ月/---ヶ月 ---ヶ月 詳細
18F 2LDK 57.90m2 ---円 ---円 ---ヶ月/---ヶ月 ---ヶ月 詳細
18F 2LDK 66.61m2 ---円 ---円 ---ヶ月/---ヶ月 ---ヶ月 詳細
18F 1LDK 59.81m2 ---円 ---円 ---ヶ月/---ヶ月 ---ヶ月 詳細
18F 1LDK 52.32m2 ---円 ---円 ---ヶ月/---ヶ月 ---ヶ月 詳細
18F 1LDK 65.59m2 ---円 ---円 ---ヶ月/---ヶ月 ---ヶ月 詳細
19F 2LDK 87.66m2 ---円 ---円 ---ヶ月/---ヶ月 ---ヶ月 詳細
19F 1LDK 54.21m2 ---円 ---円 ---ヶ月/---ヶ月 ---ヶ月 詳細
19F 1LDK 51.78m2 ---円 ---円 ---ヶ月/---ヶ月 ---ヶ月 詳細
19F 1LDK 54.21m2 ---円 ---円 ---ヶ月/---ヶ月 ---ヶ月 詳細
19F 2LDK 87.66m2 ---円 ---円 ---ヶ月/---ヶ月 ---ヶ月 詳細
19F 1LDK 65.59m2 ---円 ---円 ---ヶ月/---ヶ月 ---ヶ月 詳細
19F 1LDK 52.32m2 ---円 ---円 ---ヶ月/---ヶ月 ---ヶ月 詳細
19F 1DK 46.38m2 ---円 ---円 ---ヶ月/---ヶ月 ---ヶ月 詳細
19F 1LDK 53.81m2 ---円 ---円 ---ヶ月/---ヶ月 ---ヶ月 詳細
19F 1LDK 53.81m2 ---円 ---円 ---ヶ月/---ヶ月 ---ヶ月 詳細
19F 1DK 46.38m2 ---円 ---円 ---ヶ月/---ヶ月 ---ヶ月 詳細
19F 1LDK 52.32m2 ---円 ---円 ---ヶ月/---ヶ月 ---ヶ月 詳細
19F 2LDK 87.66m2 ---円 ---円 ---ヶ月/---ヶ月 ---ヶ月 詳細
19F 1R 50.59m2 ---円 ---円 ---ヶ月/---ヶ月 ---ヶ月 詳細
19F 1LDK 51.78m2 ---円 ---円 ---ヶ月/---ヶ月 ---ヶ月 詳細
19F 1DK 47.57m2 ---円 ---円 ---ヶ月/---ヶ月 ---ヶ月 詳細
19F 2LDK 72.75m2 ---円 ---円 ---ヶ月/---ヶ月 ---ヶ月 詳細
19F 1LDK 55.03m2 ---円 ---円 ---ヶ月/---ヶ月 ---ヶ月 詳細
19F 2LDK 66.61m2 ---円 ---円 ---ヶ月/---ヶ月 ---ヶ月 詳細
19F 1LDK 59.81m2 ---円 ---円 ---ヶ月/---ヶ月 ---ヶ月 詳細
19F 1DK 46.38m2 ---円 ---円 ---ヶ月/---ヶ月 ---ヶ月 詳細
19F 1LDK 65.59m2 ---円 ---円 ---ヶ月/---ヶ月 ---ヶ月 詳細
20F 2LDK 69.12m2 ---円 ---円 ---ヶ月/---ヶ月 ---ヶ月 詳細
20F 1LDK 54.21m2 ---円 ---円 ---ヶ月/---ヶ月 ---ヶ月 詳細
20F 1DK 47.57m2 ---円 ---円 ---ヶ月/---ヶ月 ---ヶ月 詳細
20F 1LDK 51.78m2 ---円 ---円 ---ヶ月/---ヶ月 ---ヶ月 詳細
20F 1LDK 54.21m2 ---円 ---円 ---ヶ月/---ヶ月 ---ヶ月 詳細
20F 2LDK 69.12m2 ---円 ---円 ---ヶ月/---ヶ月 ---ヶ月 詳細
20F 2LDK 87.66m2 ---円 ---円 ---ヶ月/---ヶ月 ---ヶ月 詳細
20F 1LDK 65.59m2 ---円 ---円 ---ヶ月/---ヶ月 ---ヶ月 詳細
20F 1LDK 52.32m2 ---円 ---円 ---ヶ月/---ヶ月 ---ヶ月 詳細
20F 1LDK 53.81m2 ---円 ---円 ---ヶ月/---ヶ月 ---ヶ月 詳細
20F 1LDK 53.81m2 ---円 ---円 ---ヶ月/---ヶ月 ---ヶ月 詳細
20F 1DK 46.38m2 ---円 ---円 ---ヶ月/---ヶ月 ---ヶ月 詳細
20F 1LDK 65.59m2 ---円 ---円 ---ヶ月/---ヶ月 ---ヶ月 詳細
20F 2LDK 87.66m2 ---円 ---円 ---ヶ月/---ヶ月 ---ヶ月 詳細
20F 2LDK 72.75m2 ---円 ---円 ---ヶ月/---ヶ月 ---ヶ月 詳細
20F 1R 50.59m2 ---円 ---円 ---ヶ月/---ヶ月 ---ヶ月 詳細
20F 1LDK 51.78m2 ---円 ---円 ---ヶ月/---ヶ月 ---ヶ月 詳細
20F 1DK 47.57m2 ---円 ---円 ---ヶ月/---ヶ月 ---ヶ月 詳細
20F 1LDK 51.78m2 ---円 ---円 ---ヶ月/---ヶ月 ---ヶ月 詳細
20F 1R 50.59m2 ---円 ---円 ---ヶ月/---ヶ月 ---ヶ月 詳細
20F 2LDK 72.75m2 ---円 ---円 ---ヶ月/---ヶ月 ---ヶ月 詳細
20F 1LDK 55.03m2 ---円 ---円 ---ヶ月/---ヶ月 ---ヶ月 詳細
20F 2LDK 57.90m2 ---円 ---円 ---ヶ月/---ヶ月 ---ヶ月 詳細
20F 2LDK 66.61m2 ---円 ---円 ---ヶ月/---ヶ月 ---ヶ月 詳細
20F 1LDK 59.81m2 ---円 ---円 ---ヶ月/---ヶ月 ---ヶ月 詳細
20F 1DK 46.38m2 ---円 ---円 ---ヶ月/---ヶ月 ---ヶ月 詳細
20F 1LDK 52.32m2 ---円 ---円 ---ヶ月/---ヶ月 ---ヶ月 詳細
20F 1LDK 65.59m2 ---円 ---円 ---ヶ月/---ヶ月 ---ヶ月 詳細
21F 2LDK 99.83m2 ---円 ---円 ---ヶ月/---ヶ月 ---ヶ月 詳細
21F 1LDK 50.95m2 ---円 ---円 ---ヶ月/---ヶ月 ---ヶ月 詳細
21F 1LDK 53.74m2 ---円 ---円 ---ヶ月/---ヶ月 ---ヶ月 詳細
21F 1DK 48.10m2 ---円 ---円 ---ヶ月/---ヶ月 ---ヶ月 詳細
21F 1LDK 63.07m2 ---円 ---円 ---ヶ月/---ヶ月 ---ヶ月 詳細
21F 1DK 48.10m2 ---円 ---円 ---ヶ月/---ヶ月 ---ヶ月 詳細
21F 1LDK 53.74m2 ---円 ---円 ---ヶ月/---ヶ月 ---ヶ月 詳細
21F 1LDK 50.95m2 ---円 ---円 ---ヶ月/---ヶ月 ---ヶ月 詳細
21F 3LDK 89.69m2 ---円 ---円 ---ヶ月/---ヶ月 ---ヶ月 詳細
21F 3LDK 86.85m2 ---円 ---円 ---ヶ月/---ヶ月 ---ヶ月 詳細
21F 2LDK 85.82m2 ---円 ---円 ---ヶ月/---ヶ月 ---ヶ月 詳細
21F 3LDK 89.69m2 ---円 ---円 ---ヶ月/---ヶ月 ---ヶ月 詳細
21F 1SLDK 71.29m2 ---円 ---円 ---ヶ月/---ヶ月 ---ヶ月 詳細
21F 2LDK 91.38m2 ---円 ---円 ---ヶ月/---ヶ月 ---ヶ月 詳細
21F 2LDK 70.38m2 ---円 ---円 ---ヶ月/---ヶ月 ---ヶ月 詳細
21F 1LDK 55.52m2 ---円 ---円 ---ヶ月/---ヶ月 ---ヶ月 詳細
21F 1SLDK 78.18m2 ---円 ---円 ---ヶ月/---ヶ月 ---ヶ月 詳細
21F 1LDK 55.52m2 ---円 ---円 ---ヶ月/---ヶ月 ---ヶ月 詳細
21F 1LDK 55.52m2 ---円 ---円 ---ヶ月/---ヶ月 ---ヶ月 詳細
21F 2LDK 70.38m2 ---円 ---円 ---ヶ月/---ヶ月 ---ヶ月 詳細
22F 2LDK 99.83m2 ---円 ---円 ---ヶ月/---ヶ月 ---ヶ月 詳細
22F 1LDK 53.74m2 ---円 ---円 ---ヶ月/---ヶ月 ---ヶ月 詳細
22F 1LDK 63.07m2 ---円 ---円 ---ヶ月/---ヶ月 ---ヶ月 詳細
22F 1DK 48.10m2 ---円 ---円 ---ヶ月/---ヶ月 ---ヶ月 詳細
22F 1LDK 53.74m2 ---円 ---円 ---ヶ月/---ヶ月 ---ヶ月 詳細
22F 3LDK 100.88m2 ---円 ---円 ---ヶ月/---ヶ月 ---ヶ月 詳細
22F 3LDK 86.85m2 ---円 ---円 ---ヶ月/---ヶ月 ---ヶ月 詳細
22F 2LDK 85.82m2 ---円 ---円 ---ヶ月/---ヶ月 ---ヶ月 詳細
22F 3LDK 86.85m2 ---円 ---円 ---ヶ月/---ヶ月 ---ヶ月 詳細
22F 3LDK 89.69m2 ---円 ---円 ---ヶ月/---ヶ月 ---ヶ月 詳細
22F 3LDK 104.36m2 ---円 ---円 ---ヶ月/---ヶ月 ---ヶ月 詳細
22F 3LDK 96.03m2 ---円 ---円 ---ヶ月/---ヶ月 ---ヶ月 詳細
22F 1LDK 52.45m2 ---円 ---円 ---ヶ月/---ヶ月 ---ヶ月 詳細
22F 1LDK 52.45m2 ---円 ---円 ---ヶ月/---ヶ月 ---ヶ月 詳細
22F 1SLDK 71.29m2 ---円 ---円 ---ヶ月/---ヶ月 ---ヶ月 詳細
22F 2LDK 91.38m2 ---円 ---円 ---ヶ月/---ヶ月 ---ヶ月 詳細
22F 1LDK 55.52m2 ---円 ---円 ---ヶ月/---ヶ月 ---ヶ月 詳細
22F 1SLDK 78.18m2 ---円 ---円 ---ヶ月/---ヶ月 ---ヶ月 詳細
22F 2LDK 70.38m2 ---円 ---円 ---ヶ月/---ヶ月 ---ヶ月 詳細
23F 2LDK 99.83m2 ---円 ---円 ---ヶ月/---ヶ月 ---ヶ月 詳細
23F 1LDK 50.95m2 ---円 ---円 ---ヶ月/---ヶ月 ---ヶ月 詳細
23F 1LDK 53.74m2 ---円 ---円 ---ヶ月/---ヶ月 ---ヶ月 詳細
23F 1DK 48.10m2 ---円 ---円 ---ヶ月/---ヶ月 ---ヶ月 詳細
23F 1R 52.16m2 ---円 ---円 ---ヶ月/---ヶ月 ---ヶ月 詳細
23F 1DK 47.38m2 ---円 ---円 ---ヶ月/---ヶ月 ---ヶ月 詳細
23F 3LDK 89.69m2 ---円 ---円 ---ヶ月/---ヶ月 ---ヶ月 詳細
23F 3LDK 86.85m2 ---円 ---円 ---ヶ月/---ヶ月 ---ヶ月 詳細
23F 3LDK 86.85m2 ---円 ---円 ---ヶ月/---ヶ月 ---ヶ月 詳細
23F 1SLDK 70.38m2 ---円 ---円 ---ヶ月/---ヶ月 ---ヶ月 詳細
23F 2LDK 86.67m2 ---円 ---円 ---ヶ月/---ヶ月 ---ヶ月 詳細
23F 2LDK 69.04m2 ---円 ---円 ---ヶ月/---ヶ月 ---ヶ月 詳細
23F 1DK 52.45m2 ---円 ---円 ---ヶ月/---ヶ月 ---ヶ月 詳細
23F 1DK 52.45m2 ---円 ---円 ---ヶ月/---ヶ月 ---ヶ月 詳細
23F 2LDK 69.04m2 ---円 ---円 ---ヶ月/---ヶ月 ---ヶ月 詳細
23F 2LDK 91.38m2 ---円 ---円 ---ヶ月/---ヶ月 ---ヶ月 詳細
23F 1LDK 55.52m2 ---円 ---円 ---ヶ月/---ヶ月 ---ヶ月 詳細
23F 1SLDK 78.18m2 ---円 ---円 ---ヶ月/---ヶ月 ---ヶ月 詳細
23F 2LDK 70.38m2 ---円 ---円 ---ヶ月/---ヶ月 ---ヶ月 詳細
24F 1LDK 55.52m2 ---円 ---円 ---ヶ月/---ヶ月 ---ヶ月 詳細
24F 2LDK 99.83m2 ---円 ---円 ---ヶ月/---ヶ月 ---ヶ月 詳細
24F 1LDK 50.95m2 ---円 ---円 ---ヶ月/---ヶ月 ---ヶ月 詳細
24F 1LDK 53.74m2 ---円 ---円 ---ヶ月/---ヶ月 ---ヶ月 詳細
24F 1DK 48.10m2 ---円 ---円 ---ヶ月/---ヶ月 ---ヶ月 詳細
24F 1R 48.29m2 ---円 ---円 ---ヶ月/---ヶ月 ---ヶ月 詳細
24F 1DK 51.44m2 ---円 ---円 ---ヶ月/---ヶ月 ---ヶ月 詳細
24F 1DK 47.38m2 ---円 ---円 ---ヶ月/---ヶ月 ---ヶ月 詳細
24F 3LDK 100.88m2 ---円 ---円 ---ヶ月/---ヶ月 ---ヶ月 詳細
24F 3LDK 89.69m2 ---円 ---円 ---ヶ月/---ヶ月 ---ヶ月 詳細
24F 2LDK 85.82m2 ---円 ---円 ---ヶ月/---ヶ月 ---ヶ月 詳細
24F 3LDK 86.85m2 ---円 ---円 ---ヶ月/---ヶ月 ---ヶ月 詳細
24F 1SLDK 70.38m2 ---円 ---円 ---ヶ月/---ヶ月 ---ヶ月 詳細
24F 2LDK 96.34m2 ---円 ---円 ---ヶ月/---ヶ月 ---ヶ月 詳細
24F 2LDK 86.67m2 ---円 ---円 ---ヶ月/---ヶ月 ---ヶ月 詳細
24F 2LDK 69.04m2 ---円 ---円 ---ヶ月/---ヶ月 ---ヶ月 詳細
24F 1LDK 52.45m2 ---円 ---円 ---ヶ月/---ヶ月 ---ヶ月 詳細
24F 1DK 52.45m2 ---円 ---円 ---ヶ月/---ヶ月 ---ヶ月 詳細
24F 1SLDK 71.29m2 ---円 ---円 ---ヶ月/---ヶ月 ---ヶ月 詳細
24F 2LDK 91.38m2 ---円 ---円 ---ヶ月/---ヶ月 ---ヶ月 詳細
24F 1SLDK 70.38m2 ---円 ---円 ---ヶ月/---ヶ月 ---ヶ月 詳細
24F 1LDK 55.52m2 ---円 ---円 ---ヶ月/---ヶ月 ---ヶ月 詳細
24F 1LDK 55.52m2 ---円 ---円 ---ヶ月/---ヶ月 ---ヶ月 詳細
24F 1SLDK 78.18m2 ---円 ---円 ---ヶ月/---ヶ月 ---ヶ月 詳細
25F 2LDK 99.83m2 ---円 ---円 ---ヶ月/---ヶ月 ---ヶ月 詳細
25F 1LDK 50.95m2 ---円 ---円 ---ヶ月/---ヶ月 ---ヶ月 詳細
25F 1LDK 53.74m2 ---円 ---円 ---ヶ月/---ヶ月 ---ヶ月 詳細
25F 1DK 47.38m2 ---円 ---円 ---ヶ月/---ヶ月 ---ヶ月 詳細
25F 3LDK 89.69m2 ---円 ---円 ---ヶ月/---ヶ月 ---ヶ月 詳細
25F 2LDK 85.82m2 ---円 ---円 ---ヶ月/---ヶ月 ---ヶ月 詳細
25F 1SLDK 70.38m2 ---円 ---円 ---ヶ月/---ヶ月 ---ヶ月 詳細
25F 2LDK 96.34m2 ---円 ---円 ---ヶ月/---ヶ月 ---ヶ月 詳細
25F 1LDK 52.45m2 ---円 ---円 ---ヶ月/---ヶ月 ---ヶ月 詳細
25F 1DK 52.45m2 ---円 ---円 ---ヶ月/---ヶ月 ---ヶ月 詳細
25F 1SLDK 71.29m2 ---円 ---円 ---ヶ月/---ヶ月 ---ヶ月 詳細
25F 1LDK 55.52m2 ---円 ---円 ---ヶ月/---ヶ月 ---ヶ月 詳細
25F 1LDK 55.52m2 ---円 ---円 ---ヶ月/---ヶ月 ---ヶ月 詳細
25F 1LDK 55.52m2 ---円 ---円 ---ヶ月/---ヶ月 ---ヶ月 詳細
25F 1LDK 55.52m2 ---円 ---円 ---ヶ月/---ヶ月 ---ヶ月 詳細
25F 2LDK 70.38m2 ---円 ---円 ---ヶ月/---ヶ月 ---ヶ月 詳細
26F 1LDK 50.95m2 ---円 ---円 ---ヶ月/---ヶ月 ---ヶ月 詳細
26F 1LDK 53.74m2 ---円 ---円 ---ヶ月/---ヶ月 ---ヶ月 詳細
26F 1LDK 63.07m2 ---円 ---円 ---ヶ月/---ヶ月 ---ヶ月 詳細
26F 1DK 48.10m2 ---円 ---円 ---ヶ月/---ヶ月 ---ヶ月 詳細
26F 3LDK 89.69m2 ---円 ---円 ---ヶ月/---ヶ月 ---ヶ月 詳細
26F 1LDK 71.60m2 ---円 ---円 ---ヶ月/---ヶ月 ---ヶ月 詳細
26F 2LDK 96.34m2 ---円 ---円 ---ヶ月/---ヶ月 ---ヶ月 詳細
26F 2LDK 86.67m2 ---円 ---円 ---ヶ月/---ヶ月 ---ヶ月 詳細
26F 2LDK 69.04m2 ---円 ---円 ---ヶ月/---ヶ月 ---ヶ月 詳細
26F 2LDK 69.04m2 ---円 ---円 ---ヶ月/---ヶ月 ---ヶ月 詳細
26F 1SLDK 71.29m2 ---円 ---円 ---ヶ月/---ヶ月 ---ヶ月 詳細
26F 2LDK 63.07m2 ---円 ---円 ---ヶ月/---ヶ月 ---ヶ月 詳細
26F 2LDK 63.07m2 ---円 ---円 ---ヶ月/---ヶ月 ---ヶ月 詳細
26F 2LDK 70.38m2 ---円 ---円 ---ヶ月/---ヶ月 ---ヶ月 詳細
27F 2LDK 99.83m2 ---円 ---円 ---ヶ月/---ヶ月 ---ヶ月 詳細
27F 1LDK 50.95m2 ---円 ---円 ---ヶ月/---ヶ月 ---ヶ月 詳細
27F 1LDK 53.74m2 ---円 ---円 ---ヶ月/---ヶ月 ---ヶ月 詳細
27F 1DK 48.10m2 ---円 ---円 ---ヶ月/---ヶ月 ---ヶ月 詳細
27F 1LDK 63.07m2 ---円 ---円 ---ヶ月/---ヶ月 ---ヶ月 詳細
27F 1DK 48.10m2 ---円 ---円 ---ヶ月/---ヶ月 ---ヶ月 詳細
27F 1LDK 53.74m2 ---円 ---円 ---ヶ月/---ヶ月 ---ヶ月 詳細
27F 1DK 48.50m2 ---円 ---円 ---ヶ月/---ヶ月 ---ヶ月 詳細
27F 1LDK 57.48m2 ---円 ---円 ---ヶ月/---ヶ月 ---ヶ月 詳細
27F 3LDK 87.96m2 ---円 ---円 ---ヶ月/---ヶ月 ---ヶ月 詳細
27F 2LDK 96.07m2 ---円 ---円 ---ヶ月/---ヶ月 ---ヶ月 詳細
27F 2LDK 69.04m2 ---円 ---円 ---ヶ月/---ヶ月 ---ヶ月 詳細
27F 1LDK 52.45m2 ---円 ---円 ---ヶ月/---ヶ月 ---ヶ月 詳細
27F 1LDK 52.45m2 ---円 ---円 ---ヶ月/---ヶ月 ---ヶ月 詳細
27F 2LDK 69.04m2 ---円 ---円 ---ヶ月/---ヶ月 ---ヶ月 詳細
27F 1SLDK 71.29m2 ---円 ---円 ---ヶ月/---ヶ月 ---ヶ月 詳細
27F 2LDK 91.38m2 ---円 ---円 ---ヶ月/---ヶ月 ---ヶ月 詳細
27F 1LDK 55.52m2 ---円 ---円 ---ヶ月/---ヶ月 ---ヶ月 詳細
27F 1LDK 55.52m2 ---円 ---円 ---ヶ月/---ヶ月 ---ヶ月 詳細
27F 1LDK 55.52m2 ---円 ---円 ---ヶ月/---ヶ月 ---ヶ月 詳細
28F 1LDK 53.74m2 ---円 ---円 ---ヶ月/---ヶ月 ---ヶ月 詳細
28F 1DK 48.10m2 ---円 ---円 ---ヶ月/---ヶ月 ---ヶ月 詳細
28F 1R 48.29m2 ---円 ---円 ---ヶ月/---ヶ月 ---ヶ月 詳細
28F 1DK 46.38m2 ---円 ---円 ---ヶ月/---ヶ月 ---ヶ月 詳細
28F 1R 52.16m2 ---円 ---円 ---ヶ月/---ヶ月 ---ヶ月 詳細
28F 1DK 47.38m2 ---円 ---円 ---ヶ月/---ヶ月 ---ヶ月 詳細
28F 3LDK 100.88m2 ---円 ---円 ---ヶ月/---ヶ月 ---ヶ月 詳細
28F 3LDK 86.85m2 ---円 ---円 ---ヶ月/---ヶ月 ---ヶ月 詳細
28F 2LDK 85.82m2 ---円 ---円 ---ヶ月/---ヶ月 ---ヶ月 詳細
28F 3LDK 86.85m2 ---円 ---円 ---ヶ月/---ヶ月 ---ヶ月 詳細
28F 1SLDK 70.38m2 ---円 ---円 ---ヶ月/---ヶ月 ---ヶ月 詳細
28F 2LDK 86.67m2 ---円 ---円 ---ヶ月/---ヶ月 ---ヶ月 詳細
28F 1DK 52.45m2 ---円 ---円 ---ヶ月/---ヶ月 ---ヶ月 詳細
28F 1SLDK 71.29m2 ---円 ---円 ---ヶ月/---ヶ月 ---ヶ月 詳細
28F 2LDK 91.38m2 ---円 ---円 ---ヶ月/---ヶ月 ---ヶ月 詳細
28F 2LDK 70.38m2 ---円 ---円 ---ヶ月/---ヶ月 ---ヶ月 詳細
28F 1LDK 55.52m2 ---円 ---円 ---ヶ月/---ヶ月 ---ヶ月 詳細
28F 1LDK 55.52m2 ---円 ---円 ---ヶ月/---ヶ月 ---ヶ月 詳細
28F 1SLDK 78.18m2 ---円 ---円 ---ヶ月/---ヶ月 ---ヶ月 詳細
28F 1LDK 55.52m2 ---円 ---円 ---ヶ月/---ヶ月 ---ヶ月 詳細
28F 2LDK 70.38m2 ---円 ---円 ---ヶ月/---ヶ月 ---ヶ月 詳細
29F 1LDK 50.95m2 ---円 ---円 ---ヶ月/---ヶ月 ---ヶ月 詳細
29F 1LDK 53.74m2 ---円 ---円 ---ヶ月/---ヶ月 ---ヶ月 詳細
29F 1R 48.29m2 ---円 ---円 ---ヶ月/---ヶ月 ---ヶ月 詳細
29F 1R 52.16m2 ---円 ---円 ---ヶ月/---ヶ月 ---ヶ月 詳細
29F 1DK 47.38m2 ---円 ---円 ---ヶ月/---ヶ月 ---ヶ月 詳細
29F 3LDK 100.88m2 ---円 ---円 ---ヶ月/---ヶ月 ---ヶ月 詳細
29F 3LDK 89.69m2 ---円 ---円 ---ヶ月/---ヶ月 ---ヶ月 詳細
29F 2LDK 85.82m2 ---円 ---円 ---ヶ月/---ヶ月 ---ヶ月 詳細
29F 3LDK 86.85m2 ---円 ---円 ---ヶ月/---ヶ月 ---ヶ月 詳細
29F 1SLDK 70.38m2 ---円 ---円 ---ヶ月/---ヶ月 ---ヶ月 詳細
29F 2LDK 96.34m2 ---円 ---円 ---ヶ月/---ヶ月 ---ヶ月 詳細
29F 2LDK 86.67m2 ---円 ---円 ---ヶ月/---ヶ月 ---ヶ月 詳細
29F 1LDK 52.45m2 ---円 ---円 ---ヶ月/---ヶ月 ---ヶ月 詳細
29F 1DK 52.45m2 ---円 ---円 ---ヶ月/---ヶ月 ---ヶ月 詳細
29F 2LDK 69.04m2 ---円 ---円 ---ヶ月/---ヶ月 ---ヶ月 詳細
29F 1SLDK 71.29m2 ---円 ---円 ---ヶ月/---ヶ月 ---ヶ月 詳細
29F 2LDK 91.38m2 ---円 ---円 ---ヶ月/---ヶ月 ---ヶ月 詳細
29F 1LDK 55.52m2 ---円 ---円 ---ヶ月/---ヶ月 ---ヶ月 詳細
29F 1LDK 55.52m2 ---円 ---円 ---ヶ月/---ヶ月 ---ヶ月 詳細
29F 1SLDK 78.18m2 ---円 ---円 ---ヶ月/---ヶ月 ---ヶ月 詳細
29F 1LDK 55.52m2 ---円 ---円 ---ヶ月/---ヶ月 ---ヶ月 詳細
29F 1LDK 55.52m2 ---円 ---円 ---ヶ月/---ヶ月 ---ヶ月 詳細
30F 2LDK 99.83m2 ---円 ---円 ---ヶ月/---ヶ月 ---ヶ月 詳細
30F 1LDK 53.74m2 ---円 ---円 ---ヶ月/---ヶ月 ---ヶ月 詳細
30F 1R 48.29m2 ---円 ---円 ---ヶ月/---ヶ月 ---ヶ月 詳細
30F 1DK 51.44m2 ---円 ---円 ---ヶ月/---ヶ月 ---ヶ月 詳細
30F 1DK 47.38m2 ---円 ---円 ---ヶ月/---ヶ月 ---ヶ月 詳細
30F 3LDK 100.88m2 ---円 ---円 ---ヶ月/---ヶ月 ---ヶ月 詳細
30F 3LDK 86.85m2 ---円 ---円 ---ヶ月/---ヶ月 ---ヶ月 詳細
30F 1SLDK 70.38m2 ---円 ---円 ---ヶ月/---ヶ月 ---ヶ月 詳細
30F 2LDK 96.34m2 ---円 ---円 ---ヶ月/---ヶ月 ---ヶ月 詳細
30F 2LDK 69.04m2 ---円 ---円 ---ヶ月/---ヶ月 ---ヶ月 詳細
30F 1LDK 52.45m2 ---円 ---円 ---ヶ月/---ヶ月 ---ヶ月 詳細
30F 1LDK 52.45m2 ---円 ---円 ---ヶ月/---ヶ月 ---ヶ月 詳細
30F 1SLDK 71.29m2 ---円 ---円 ---ヶ月/---ヶ月 ---ヶ月 詳細
30F 2LDK 91.38m2 ---円 ---円 ---ヶ月/---ヶ月 ---ヶ月 詳細
30F 1LDK 55.52m2 ---円 ---円 ---ヶ月/---ヶ月 ---ヶ月 詳細
30F 1SLDK 78.18m2 ---円 ---円 ---ヶ月/---ヶ月 ---ヶ月 詳細
30F 1LDK 55.52m2 ---円 ---円 ---ヶ月/---ヶ月 ---ヶ月 詳細
30F 1LDK 55.52m2 ---円 ---円 ---ヶ月/---ヶ月 ---ヶ月 詳細
30F 2LDK 70.38m2 ---円 ---円 ---ヶ月/---ヶ月 ---ヶ月 詳細
34F 1LDK 65.14m2 ---円 ---円 ---ヶ月/---ヶ月 ---ヶ月 詳細

表示

おすすめ物件紹介

おすすめ画像1

コンフォリア・リヴ茅場町

■2026年4月竣工■茅場町駅徒歩3分■総戸数28戸■東京都中央区新川1-1-6■地上10階 RC造

おすすめ画像2

コンフォリア・リヴ八丁堀

■2026年2月竣工■八丁堀駅徒歩4分■総戸数53戸■東京都中央区入船2-5-11■地上12階 RC造

おすすめ画像3

アーバネックス日本橋茅場町

■2026年2月竣工■水天宮前駅徒歩4分■総戸数37戸■東京都中央区日本橋蛎殻町1-1-1■地上11階 RC造■フリーレント2ヶ月

おすすめ画像4

アクシルコート日本橋本町

■2026年1月竣工■小伝馬町駅徒歩3分■総戸数150戸■東京都中央区日本橋本町4-12-11■地上12階 RC造

おすすめ画像5

ザ・パークハビオ日本橋茅場町

■2026年2月竣工■茅場町駅徒歩3分■総戸数81戸■東京都中央区日本橋茅場町2-2-5■地上10階 RC造■フリーレント1ヶ月

おすすめ画像6

トラッド日本橋人形町

■2025年7月竣工■人形町駅徒歩2分■総戸数26戸■東京都中央区日本橋人形町1-17-10■地上12階 RC造

おすすめ画像7

デュオフラッツ日本橋水天宮

■2025年8月竣工■水天宮前駅徒歩2分■総戸数34戸■東京都中央区日本橋蛎殻町1-28-3■地上14階 RC造■フリーレント1ヶ月

おすすめ画像8

ザ・パークハビオ日本橋三越前

■2025年3月竣工■人形町駅徒歩5分■総戸数54戸■東京都中央区日本橋堀留町1-1-5■地上10階 RC造

おすすめ画像9

アーバネックス日本橋馬喰町2

■2025年3月竣工■馬喰町駅徒歩1分■総戸数23戸■東京都中央区日本橋馬喰町1-4-3■地上12階 RC造

おすすめ画像10

プライムガーデン銀座八丁堀

■2025年3月竣工■八丁堀駅徒歩4分■総戸数72戸■東京都中央区入船1-4-5■地上12階 RC造■フリーレント1ヶ月

おすすめ画像11

グランパセオ銀座築地

■2024年11月竣工■築地市場駅徒歩5分■総戸数84戸■東京都中央区築地6-23-2■地上12階 RC造■フリーレント2ヶ月

おすすめ画像12

パークアクシス東日本橋

■2024年12月竣工■馬喰横山駅徒歩2分■総戸数144戸■東京都中央区東日本橋3-4-17■地上12階 RC造■フリーレント1ヶ月

おすすめ画像13

ブルックサイドレジデンス木場

■2026年3月竣工■木場駅徒歩9分■総戸数563戸■東京都江東区塩浜2-8-1■地上18階 RC造■フリーレント1ヶ月

おすすめ画像14

ロイヤルパークス有明

■2026年1月竣工■有明テニスの森駅9分■総戸数642戸■東京都江東区有明1-4-43■地上15階 RC造■フリーレント3ヶ月

おすすめ画像15

ウエリスアーバン水天宮前

■2023年3月竣工■水天宮前駅徒歩9分■総戸数431戸■東京都江東区佐賀2-8-4■地上13階 RC造

おすすめ画像16

コンフォリア新宿イーストサイドタワー

■2011年12月竣工■東新宿駅徒歩2分■総戸数761戸■東京都新宿区新宿6-27-29■地上32階 地下1階 RC造■フリーレント1ヶ月

最近見た物件

すべての最近見た物件を見る

タワーマンション一覧

pagetop